2022年湖南产品力测评,品质入围项目共20个,将分为4组进行路演报告的展示。
提示
项目展示顺序
本期湖南品质入围项目路演3/4,顺序如下:
(11)嘉宇北部湾(长沙)
(12)金地都会风华(长沙)
(13)金地峯范 (长沙)
(14)金地湖山樾(长沙)
(15)建工象山国际 (长沙)
项目排名不分先后
按照拼音首字母排序展示
11
嘉宇北部湾(长沙)
项目概况:嘉宇·北部湾是湖南蜀溪春房地产开发有限公司开发的一个改善型城市综合体项目,以“再造一座北城”为目标,“ 山·水·洲·城”为理念,从尊重生态、保护自然出发,以“公共空间最大化”为设计原则,结合规划的1.5公里湘江风光带、350亩李家湖水上公园,为城市提供一个富有活力、绿色自然的公共场所。项目集高层住宅、酒店式公寓、写字楼、星级酒店、商业MALL于一体,建筑类型丰富。
位置图及鸟瞰图

主力户型:嘉宇北部湾目前主推130和146平米户型。130㎡户型,户型周正,动静分区,6.8米南向阳台,2米进深,主卧3.4米,有套间,带衣帽间;146㎡户型,户型周正,动静分区,南北通透,南北双阳台,7.3米南向阳台,2米进深,卫生间干湿分离,3开间朝南。
130㎡ ( 4房2厅2卫)

146㎡ ( 4房2厅2卫)

设计理念:嘉宇房产成立15年,积累了丰富的品质住宅建造经验,并不断改进,从最初的嘉宇盛世华章到嘉宇保利大都汇项目,嘉宇旗下的项目已经全面推广全新第三代精工工艺建造体系。全面提升了包括:组团回家门厅系统、人脸识别入户系统、停车自动识别自助缴费系统等系统,全面提升社区居住品质。
样板间实景图


社区空间:嘉宇·北部湾以“再造一座北城”为目标,“ 山·水·洲·城”为理念,从尊重生态、保护自然出发,以“公共空间最大化”为设计原则。
园林实景图

12
金地都会风华 (长沙)
项目概况:金地都会风华择址千亿省府红星核心地段,伫立地铁7号线(建设中)万芙南路站之上,并配建约12万方天虹购物旗舰店(建设中),自建砂子塘品牌小学(已引进),打造建面约75万㎡TOD城市综合体,业态涵盖住宅、公寓、商铺及购物中心,住宅总户数1707户。
位置图及鸟瞰图

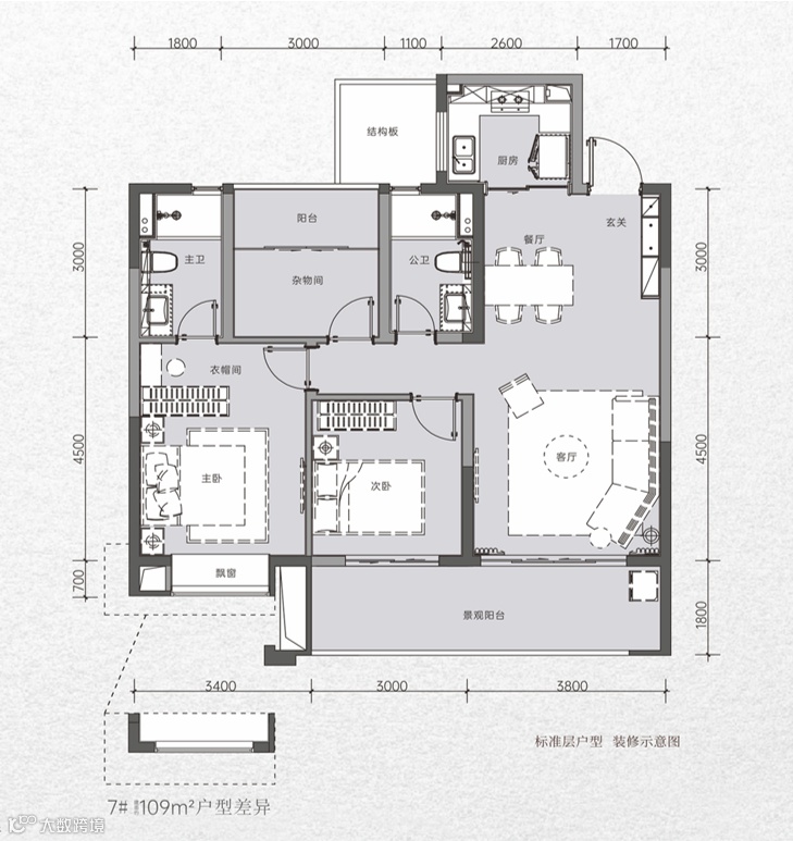
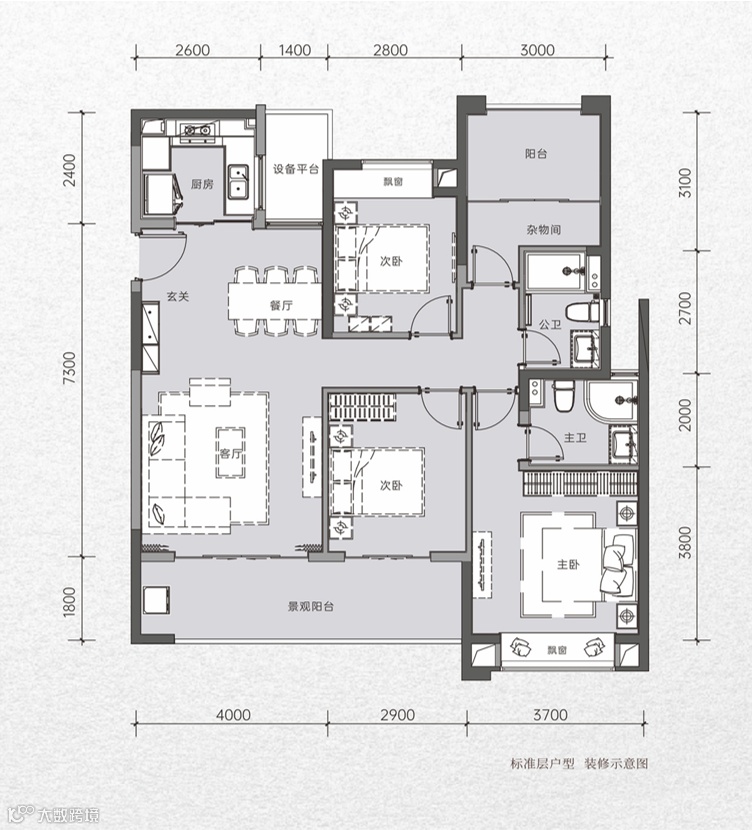
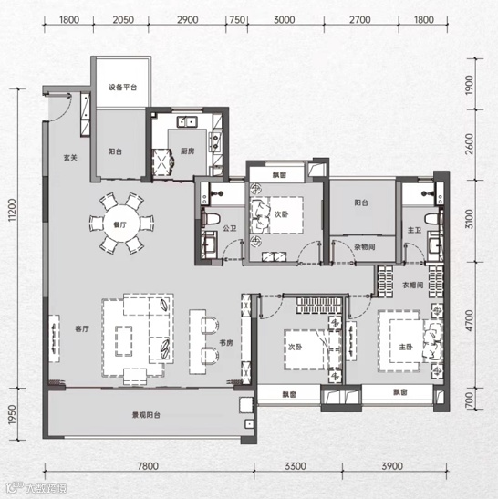
主力户型:项目户型为109-169㎡,户型布局周正,动静分区合理,多开间朝南设计,南向IMAX级巨幕阳台,通风采光较好,同时阳台和设备平台及飘窗均有赠送空间,增加了户型的得房率;厨房均为“U”型布局,使用较为方便, LDCK餐客厅一体空间,提高空间利用率,增加空间的通透感;主卧均带有衣帽间和卫生间,私密性和居住舒适度较高。
109㎡ ( 3室2厅2卫)

129㎡ ( 4室2厅2卫)

143㎡ ( 4室2厅2卫)

169㎡ ( 4室1空间2厅2卫)

精装设计:
【五芯精装家品质、四大硬核配件,精筑美好金质生活】金地·都会风华成为湖南首个引入“五芯”精装家体系的项目,通过对千余组客户的调研,深入了解湖湘客户的居家生活习惯和精装需求。
【五芯精装家】落位“科技芯、健康芯、灵动芯、悦享芯、匠艺芯”5大维度73项产品功能模块,金地都会风华结合湖湘客户需求,只为营造更多的美好生活。
【三大硬核装置、十二大精装配置】金地都会风华全新升级中央空调、新风系统、地暖,三大硬核智能装置,给业主创造健康舒适生活,精工细致营造美好人居体验,引领以多元场景为主导的美好精装时代。
169大师样板间实景图(非交付标准)

社区空间:提取潇湘八景意象,营造【一环八境】新东方美学意境,打造全龄互动园林景观,内部设置约2800㎡主题儿童乐园,园林植被错落有致,三季有花,四季常绿,移步异景,出则繁华、入则宁静。
实景呈现:金地质造,眼见为实,为了让客户有更好的感官体验,项目打造约4645㎡实景展示区,营造3重空间、8个主景观节点,看见看不见的品质;
一重空间·礼序归家入口,拾级而上、登高临水;
二重空间·中央会客,悬浮景亭、禅意听澜;
三重空间·尊享入户,林荫步道、邻里会客。
实景图

工艺工法样板:【金地质造家】通过9大精工体系、60道工法工序、三级品控管理、近3000项内控标准,让您买的放心,在您不曾留意之处,亦有360°的严格内控,让品质无忧。
9大精工体系从工程品控管理程序、实测实量操作指引和景观工程管理程序等维度,60道工法工序360°系统化把控品质,切片式全方位呈现,从房屋土建,到毛坯,再到精装,多维度拆解。三级品控管理,房子从原材料到成品,从图纸到呈现,从开工到交付,经历上百次不同层级的检查诊断,近3000项内控标准,涵盖混凝土结构工程、砌筑工程、抹灰工程、机电安装等施工全过程,让每个环节的品质都尽善尽美。

13
金地峯范(长沙)
项目概况:金地峯范位于长沙市岳麓区,周边有地铁2号线,距离梅溪湖城市副中心、环岳麓山综合服务核、中部老城中心较近,车程均在30分钟左右,毗邻西湖公园,区位优势明显,近城市干道,南通北达,500米有地铁站,交通便捷,地块东侧为规划学校,教育资源好区位较好,发展潜力巨大。
位置图及鸟瞰图

主力户型:金地峯范目前主推143和191平米户型。约143㎡户型,约8米多宽幕阳台,尺度阔绰,堪比超大空中庭院,约11米多奢阔面宽,通透格局,定制舒阔宽境人生,餐客厅一体,空间敞轩,容纳家人更多的生活乐趣南北通透布局,格局通透,动静分区合理,居家舒适;约191㎡户型,约9米多IMAX阳台,清风自然巡礼,峰景自此高远,约45m2墅级方厅,品茗会友,谈笑风生,自在从容,南向豪华双套房,酒店级居住体验,生活起居倍感尊崇单梯入户,户内预留专属收纳空间,彰显尊贵感与仪式感。
143㎡ ( 4房2厅2卫)
191㎡ ( 4房2厅3卫)

精装设计:作为金地峯范系列产品在长沙的首个落地,峯范项目约2500元/㎡的精装标准,有中央空调(日立)、新风和纳米地暖,饱受客户青睐。
样板间实景图

社区空间:金地峯范项目以童年山丘、社交庭院、风景大堂和入口空间,打造酒店式归家的体验峰值,在城市到达的第一界面营造惊喜、仪式感。
园林效果图

14
金地湖山樾(长沙)
项目概况:金地·湖山樾位于长沙市西北的望城区,距长沙市中心直线距离8公里,交通条件优越,西临长沙绕··城高速公路,东临城市主干道雷锋大道,交通条件优越,基地周边有洗心禅寺、观音岩水库、长沙谷峰生态园等景观,休闲生态功能较强。
位置图及鸟瞰图


主力户型:金地·湖山樾临湖墅,享受40万方观音岩湖一线湖岸景观,背山面水,四面环氧,在山清水秀之间,独具一番静谧隐逸,享受山顶山底双公园自然加持。主力在售308㎡叠墅产品。
308㎡ 下叠 ( 4房3厅5卫)

308㎡ 上叠 ( 4房3厅5卫)

设计理念:在金地·湖山樾的整体设计理念中,建筑师希望通过一切指向情绪的空间节点营造,试图描述一隅诗意的栖居之所,让居住者做空间的导演。营造一个可真正让人心绪安静下来的空间,可以暂时忘掉都市的喧嚣,忘掉工作的烦恼,真正回归到居住本质的场所。
金地·湖山樾并不拘礼于某种风格或者某种可阅读的符号,突破传统别墅建筑设计,利用大面积的玻璃立面,通过深灰色的铝板和涂料辅以暖色点缀,体现一种沉稳,内敛的气质,整体的横向感与自然环境相互交错,大片的玻璃面可以捕捉到更多的阳光和风景,而建造的逻辑性去掉浮华的雕饰后又表现出自然朴拙之美,营造出极具雕塑感的形态予以场域一种力量和超现实之感。
样板间实景图


景观实景图


15
建工象山国际 (长沙)
项目概况:建工·象山国际位于岳麓区洋湖板块象嘴路与含浦大道交汇处,是一个80万平米的高品质山居大盘,容积率≤3.04,绿化率40%。项目外瞰洋湖,内享中央山体公园,吸纳片区生态、教育、文化、商业等优势资源,于浅山之上打造集居住、商业、休闲于一体的全龄互动性复合社区,并配建公立幼儿园及九年一贯制中小学。
位置图及鸟瞰图

主力户型:建工·象山国际目前主推168和225平米户型。约168㎡户型,朗阔四居,开阔通透,拥享7.8米揽景阳台,赠送面积较大,再加上动静分区、户内花园、套房主卧等优势;约225㎡户型,一梯一户六室大宅,独享电梯厅,私密性和使用率均有所提高;双户内花园半赠送,随心布局,扩容空间,为业主提供更多改造的可能性。同时双主卧设计,容纳大家奢居梦想。
168㎡ (3房3厅2卫)

225㎡ ( 4房2厅3卫)

创新技术:建工·象山国际项目以树湖南建工房地产品牌、创行业住宅标杆为目标,打造长沙首个超低能耗建筑,充分利用先进技术产品,极低的能源消耗降低生活成本;引入五恒科技系统,有效实现四季室温维持在人体较适宜的18℃~24℃之间;同时建造全国首家木结构幼儿园,丰富项目建筑结构类型。
创新技术示意图

社区空间:建工·象山国际建造约3万方中央园林,延续新中式风格,以山为邻,与水相伴,打造中式园林的山水格局。通过传统园林以小见大的的造园手法,塑造公园意境;通过叠山理水,营造溪山环绕,曲径通幽的园林布局,以水为脉,塑造多种形态特征的水体景观:湖、潭、塘、溪、瀑布、叠水。与洋湖秀丽之美互为映照,塑造园内诗意春秋。
园林效果图

/End.
来源/克而瑞湖南
以上仅为个人观点,不代表所在企业观点。
版权申明:本文版权归克而瑞湖南机构所有,未经许可与授权,严禁转载。
如需转载和合作,请致电19892894436(微信同号)。
免责声明:本文中的内容和意见仅供参考,并不构成对所述城市的出价或评估,我司对使用本文中内容所引发的任何直接或间接损失概不负责。
●产品力测评 | 2022年湖南品质项目入围 路演报告(2/4)
●产品力测评 | 2022年湖南品质项目入围 路演报告(1/4)
●产品力测评 | 2022年湖南高端项目入围 路演报告(4/4)
●产品力测评 | 2022年湖南高端项目入围 路演报告(3/4)
●产品力测评 | 2022年湖南高端项目入围 路演报告(2/4)
●产品力测评 | 2022年湖南高端项目入围 路演报告(1/4)
●产品力测评 | 克而瑞2022年度 · 评审专家 阵容公布



