2022年湖南产品力测评,高端入围项目共21个,将分为4组进行路演报告的展示。
提示
项目展示顺序
本期湖南高端入围项目路演1/4,顺序如下:
(1)保利和光尘樾 (长沙)
(2)长房云河玖叙 (长沙)
(3)城发恒伟·洋湖映2009 (长沙)
(4)宸嘉·嘉臣道 (长沙)
(5)电建泷悦长安 (长沙)
项目排名不分先后
按照拼音首字母排序展示
01
保利和光尘樾 (长沙)
项目概况:保利和光尘樾,是“央企地产旗舰”保利落子长沙的首个“和光系作品”,打造第四代住宅产品,“人与自然与建筑”和谐共生的理想居所。位于金鹰月湖板块,福元路与山月路交汇处。项目背靠500亩山体生态绿地麓峰山,紧邻捞刀河,旁边就是山鹰潭度假村,周边均为公园绿地及住宅用地,居住环境十分纯粹。
位置图及鸟瞰图

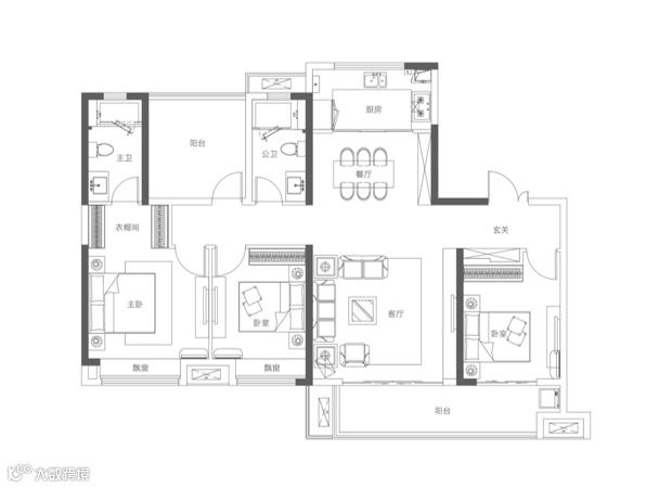
主力户型:保利和光尘樾, D14#D15#住宅已推出,建面168-189平。169㎡户型,四开间朝南,南向面宽有十几米以上,超高得房率。通透性好,采光通风俱佳。双套房设计,主卧套房带独立卫浴+衣帽间+飘窗,私密性与舒适度直接拉满;189㎡户型,大宽厅设计,超高得房率,客厅与餐厅、双阳台、花园阳台相连,南向阳台连接花园阳台,整体又与大宽厅相连,形成IMAX级景观视野,长沙少见。
E1户型 169㎡ ( 4房2厅3卫)

F1户型 189㎡ ( 4房2厅3卫)

样板间实景

社区空间:保利和光尘樾在长沙首创“五彩森活垂直森态居住社区”,涵盖:森林生态社区、全龄森活配套、森态双碳理念、空中森态花园、品质森活人居五大形态且稀缺的垂直绿化、立体活力、生态宜居综合住区。在空间上,塑造空间立体层次,景观与建筑一体化,营造入口庭院、迎宾花园、中央花园、私属园林、入户庭院的五进园林规划体系。
社区效果图

02
长房云河玖叙 (长沙)
项目概况:长房云河玖叙位于芙蓉区主城区,紧邻浏阳河,坐享浏阳河景观,约8.4万方建筑面积,再加上2.5的容积率、1:1.42的车位配比,以及片区内首个纯大平层产品的底气,打造浏阳河旁封面作品。
位置图及鸟瞰图

主力户型:长房云河玖叙目前主推约193和约234平米户型。约234㎡户型,户型层高达约3.1米,南北通透,四开间朝南,且赠送面积较大,再加上独梯入户、空中花园、双阳台等优势;约193㎡户型,四开间朝南,采光和通风效果较好;独梯入户、独享电梯厅,私密性和使用率均有所提高;空中花园和双阳台均为半赠送,一方面提升使用率,另一方面也为业主提供更多改造的可能性;同时主卧套房设计,私密性较好。
234㎡ ( 4房3厅2卫)

193㎡ ( 4房2厅3卫)

精装设计:作为长房TOP级产品线,长房云河玖叙约3499元/㎡的精装标准,严苛甄选世界十大洁具品牌之首Duravit (杜拉维特)、全球领先卫浴品牌GROHE(高仪)、世界500强百年家电专家BOSCH(博世)、全球智能化电气产品领导者Simon(西蒙)等国际一线品牌及国内一线品牌。
样板间实景

社区空间:长房云河玖叙项目内部园林设计以“水“为脉络,模拟浏阳河九曲连环的形态特征,将河流流淌的韵律与园林场所空间相融合,打造“一心、两轴、玖境”的规制。
园林效果图

03
城发恒伟·洋湖映2009 (长沙)
项目概况:城发恒伟·洋湖映2009是城发恒伟的TOP序列“映”系升级之作,位于洋湖新城的核心腹地,紧靠公园,邻近学校,打造区域集中功能示范区,提供集中制冷和供暖服务。
位置图及鸟瞰图

主力户型:城发恒伟·洋湖映2009目前主推240㎡大平层,产品非常的纯粹,两梯两户纯板楼设计,楼栋呈“一”字排开,为高端圈层量身定制。240㎡户型,五开间朝南设计+南北双阔景阳台设计,主卧内高配超大瞰景飘窗+步入式衣帽间+独立豪华卫浴,整个空间布局科学合理,空间张弛有度。此外,项目约149㎡大四房产品正在热销,市场热度非常高,四开间朝南+LDKB一体化+尊崇主卧套房设计,更是大大地提升了整个户型的尺度感与宜居性。
240㎡ ( 5房2厅3卫)

149㎡ ( 4房2厅2卫)

社区空间:城发恒伟·洋湖映2009项目在园林规划上,不仅打造有中心阳光大草坪、童乐森林、青年户外健身空间、闺蜜私享园等配套,更有“两轴三境四巷”景观轴线、“五进制归家”格局,提供尊崇的归家体验。此外,项目一楼设置架空层,打造有可供邻里交流、阅读休憩的空间,为业主带来更多的生活享受。
园林效果图及架空层效果图

04
宸嘉·嘉臣道 (长沙)
项目概况:宸嘉·嘉臣道,宸嘉发展长沙1号作品,傲立湖南省唯一省级金融中心-滨江新城的首站扩容地,享千亿月亮岛国际文旅新城规划辐射、1KM私岸线、一江一岛六公园,全维度步行高阶生活配套。总占地约366亩,总建面约53万方,联袂国际大师团队匠造艺术馆藏洋房、小高层,整体容积率约1.78,是湘江主城区难得的一线湘江纯粹低密大平层住区。定位高端改善,旨在打造流经世界的长沙滨水封面。
位置图及鸟瞰图

主力户型:宸嘉·嘉臣道目前主推272㎡、227㎡及182㎡户型。
272㎡ ( 4房2厅4卫)

【境】轩朗会客厅,阔绰尺度,营造高贵礼宾空间;
【雍】豪华主卧套房,宽阔视野格局,怡享名门风范;
【揽】L型阔景阳台,270°环绕式拥享四时景致;
【阔】三套房配置,多开间朝南,从容帷幄品质生活;
【尊】电梯独立入户,舒适乘梯享受,礼遇归家荣耀;
227㎡ ( 4房2厅3卫)

【境】客餐厅一体,藏品级空间,承载居者个性豪情;
【奢】豪华双套房配置,主卧套房考究主人生活疆域;
【通】十字通厅,从容有序间,豪迈尊崇淋漓彰显;
【悦】四开间朝南,清风阳光入室,高贵生活享受;
【景】全卧室拥揽瞰景飘窗,视野上览风云下赏万物;
182㎡ ( 4房2厅3卫)

【畅】客餐双厅一体,动线流畅,会客宴宾从容有序;
【宽】约8.4米宽景阳台,尽阅万象繁盛赋诗惬意人生;
【灵】四开间朝南,南北双阳台,品质与尊雅展现;
【谧】豪华主卧空间,男女双衣帽间,私密专属领地;
【洁】整洁三卫,尊享舒适体验,成就三代同堂雅居;
精装设计:宸嘉·嘉臣道室内装修报价3500元/㎡,属于长沙市场第一阶梯价格,臻选世界一线品牌精装,大金、汉斯格雅、杜拉维特等,大件装修品牌与市中心高端改善项目选择基本一致。考究超60处人性细节,细致入微地守护每一位家庭成员,从空间创新到细节设计,从功能升级到配置甄选,坚守作品主义,重塑审美感知,赋予湘江巨子品位与气质相契的艺术空间与生活方式。
272㎡样板间实景

社区空间:宸嘉·嘉臣道社区配置高定国际健康会所,恒温泳池/多功能健身房/瑜伽室/亲子图书馆/成长体能馆等功能空间一应俱全;把“美术馆”搬进社区,策展全球大师作品,让大师艺术成为生活日常;社区景观园林布局 “一轴、两园、两营地、约1公里中央景观轴,2.5 公里慢行系统””,营造出归家即是置身山水画卷、归家即是度假的艺术水岸森居。此外,作为社区生活的“第三空间”,架空层融合阅读书咖、亲子娱乐、花语秘境、颐养康体、儿童游乐、运动健身等多功能空间,将空间还给生活,运动与社交创造友善交流。
会所、园林规划及架空层实景及效果图

05
电建泷悦长安 (长沙)
项目概况:电建泷悦长安是电建“泷悦系”TOP级匠心之作,位于市府芯、谷山里、金星路旁,享受三山环抱的同时,自身容积率仅约1.78的低密地块旁还拥有生态湖泊。项目产品定位高端改善,叠墅6-7层,洋房6-12层,独立组团。
位置图及鸟瞰图

主力户型:电建泷悦长安目前主推建面约166-253㎡亲山洋房,多开间朝南设计,采光更为充足;南北双阳台打造,室内空气对流,通风更适宜;客餐厨一体化设计,阔绰空间轻松容纳三代同堂的欢欣时刻。
182㎡ ( 4房2厅3卫)

253㎡ ( 4房3厅2卫)

社区空间:电建泷悦长安整体分为了东西两个片区,叠墅在西,洋房居东。然后在中心景观部分,大手笔的造出了一片亲水的湖山场景。健身跑道、全龄段的游乐设施、休闲场所全部围湖而建。此外还有四点半学堂、健身房、茶室、私宴厅等,MAX级奢侈空间,令人充满想象。
园林效果图及部分示范区展示

/End.
来源/克而瑞湖南
以上仅为个人观点,不代表所在企业观点。
版权申明:本文版权归克而瑞湖南机构所有,未经许可与授权,严禁转载。
如需转载和合作,请致电19892894436(微信同号)。
免责声明:本文中的内容和意见仅供参考,并不构成对所述城市的出价或评估,我司对使用本文中内容所引发的任何直接或间接损失概不负责。
●产品力测评 | 克而瑞2022年度 · 评审专家 阵容公布



