2023上半年湖南产品力测评,高端入围项目共15个,将分为3组进行路演报告的展示。
提示
项目展示顺序
本期湖南高端入围项目路演1/3,顺序如下:
(1)佰昌 · 和江山 (长沙)
(2)长沙五矿广场 (长沙)
(3)城发恒伟君樾洋湖(长沙)
(4)轨道万科璞悦湾 (长沙)
(5)龙湖 · 青云阙 (长沙)
项目排名不分先后
按照拼音首字母排序展示
01
佰昌 · 和江山 (长沙)
项目概况:
佰昌·和江山是佰昌集团落子长沙的首个战略作品,以国际化视野与大师修为,以江为襟怀共绘对话世界的国际生活,以艺术的品位打磨作品的肌理,开卷湘江东岸的卷首之作 。项目屹立湘江黄金岸线之上,临江(湘江)、望岳(岳麓山)、聆洲(橘子洲)、赏园(南郊公园),城市级Xi缺景观,尽揽于怀。三面瞰江、一面瞰山,推窗,放眼望去,500亩南郊公园尽收眼底,规划打造200-320㎡江山家族大宅。

主力户型:
目前主推约245-317平米户型。
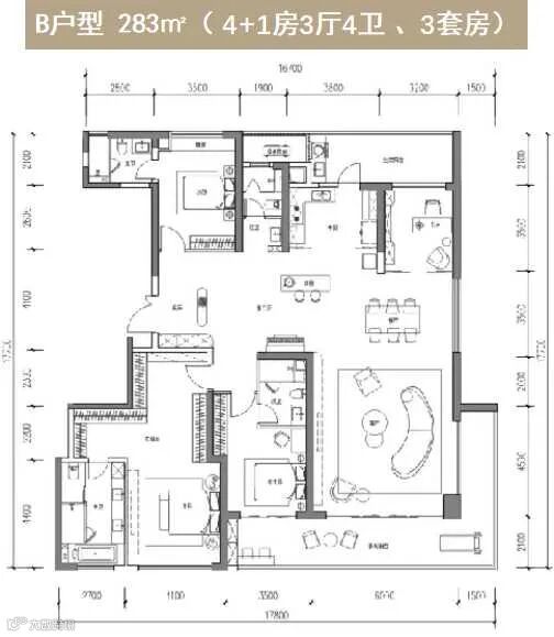
约317㎡户型:全套房双主卧,270°寰幕瞰江阳台,一线无遮视域;男女主人奢配双衣帽间,客餐厨一体化IMAX超巨厅,第三家庭厅,灵动空间设计;
约283㎡户型:全套房奢配格局,约17.6米转角阳台,270°曲面屏,男女主人双衣帽间,功能性与美学兼具,BLDK寰幕瞰江竖厅,超尺格局,中西双厨,超大操作台面;
约245㎡户型:级大横厅衔接瞰景阳台,行政级主卧套房,全套房私密有度,西厨中岛,开放式餐厨设计,构建家庭交流互动中心;



社区空间:
项目打造山上行——归家八境,临山门、现飞瀑、望江屿、涉芳林、观霞光、居山台、和睦邻、入画境等,丰富的场景设计,打造自然中的治愈空间,规划涵盖全龄段业主休闲野趣的自然场域 。整体布局“一街、一带、两轴、五园”,同时和江山以“在地性”为景观设计准则,斥巨资打造“和江山山体公园”,在难以复刻的天赋地脉之上,打造出由伴山茶室、星空营地、浦浦候主题乐园等组成的私享乐园。

02
长沙五矿广场 (长沙)
项目概况:
长沙五矿广场,是“万亿央企”中国五矿旗下五矿地产倾力打造的全国第二座“五矿广场”,位于湘江中路二段228号,是长沙少有同时进行LEED金、WELL金和绿色建筑二星三认证的单体项目,集国际总部写字楼、超五星级凯悦尚萃酒店、奢阔江幕大平层、外滩全装修私寓、精奢商业街于一体,致力打造新的湘江外滩城市Feng面。

主力户型:
长沙五矿广场, 东塔商业大平层已推出,建面160-350平。
约350㎡户型,全方位景观,坐瞰湘江美丽风光;4.5米层高,全城艳羡的高度和视野,空间感十足;客餐厅精致一体,双套间卧室,臻配独立卫生间与衣帽间;
约292.93㎡户型,超宽玻璃幕墙,室内外风景无界交融;动静合理分区,会客、休息互不打扰,重塑生活秩序;餐客一体大厅,阔绰敞亮;双套房卧室,臻配步入式衣帽间、卫浴,尊享层峯人生。


装修设计:
设计理念:以“游艇”主题风格,融入了意大利家居奢侈品牌“葆碟家(BV)”的艺术精华,设计师将游艇的设计语言融入了室内设计中,如玄关拐角处圆角处理、大面积木饰面和陶瓷岩板的铺装,简约而奢华。
全装修效果图

产品优势:
1、奢华的装修交付标准,每平方米价值6000元左右的全装修投入,超过了市场大多数同档次大平层项目;
2、奢阔的空间布局,从观景、采光和通风等空间效果综合考虑,实现标准层高4.5米、客餐厅天花最高处净高达3.65米、玄关及过道最低点净高也达到了3米的奢阔空间;
3、全屋高度智能化的家居生活体验。通过高度集成的家居控制系统,实现了空调、新风、地暖、灯具、窗帘和环境检测等全屋设施设备的智能联网,能够实现各类家居场景的一键切换和自由控制;
4、领xian市场标准的国际LEED金级认证体系。大平层产品严格执行国际绿色建筑权威标准,在建筑材料、机电设备、室内环境、能耗控制等方面大量选用环保、节能材料和措施,打造了接轨国际一流标准的人居生活空间。
社区空间:
长沙五矿广场,是长沙少有同时进行LEED金、WELL金和绿色建筑二星认证的单体项目。紧邻湘江风光带,可远眺岳麓山,近享橘子洲头、湘江美景,山水洲城美景一览无余。

03
城发恒伟君樾洋湖 (长沙)
项目概况:
城发恒伟君樾洋湖——城发恒伟全系高定精妆产品系,择址洋湖芯少有土地,纵览约7200亩洋湖湿地公园,集生态、商业、交通、教育、人文、医疗等多位一体的醇熟配套,重塑城市人居高度;项目总建面约37.4万方,规划十字中轴公园级大中庭,打造“精工七系”园林体系,联袂运达地产运达思睿设计院打造室内设计空间,注重业主的品质生活体验,配置业主专属会所,同频世界一线生活方式。

主力户型:
城发恒伟·君樾洋湖, 南地块建面152-215㎡精妆高层。
约152㎡户型,人居动线流畅简洁,会客休憩互不影响;客餐厅一体化设计,空间阔绰充盈;四开间朝南,通凤、采光、赏景俱佳;主卧套房设计,步入式衣帽间及独立卫浴,舒适起居尊崇享受;
约215㎡户型,客餐厅一体,品质生活随心而为;约9米面宽观景阳台,景观园林一宽无余;U型厨房惬意生活,私人定制美食的幸福时光;双套房设计,家人均可私享舒适惬意空间,让尺度与气度和鸣。


装修设计:
携手运达思睿&大森设计,以高端装修产品线,精细匠技勾勒未来生活;定制化细节,彰显超然生活品位;人性化设计,营造高品质人居体验。

社区空间:项目以“精工自然”为园林景观调性,融入美学,色调,材质,细节,植物,照明,软装七大园林体系,精炼精工7系;以更合理的规划布局,遵循中轴仪式,塑造对称礼序;点板结合,错位布局,疏密有秩;大尺度内部中庭,多组团精致主题花园,首层全架空设置,与中庭景观互相渗透呼应。

04
轨道万科璞悦湾 (长沙)
项目概况:
轨道万科璞悦湾项目是长沙万科第23个项目,同时也是长沙轨道与长沙万科双强联袂打造的第4子。位于开福中心板块,福元路与开福大道交汇处,占位主城东二环内,享福元路百亿商圈,拥300米8、9号线双地铁交汇站口,近清水塘三小与湘一史家坡学校双名校旁,邻一线捞刀河景,繁华与静谧兼得,是主城第一住区的一梯队住宅。

主力户型:
轨道万科璞悦湾,即将加推建面118-190平瑧妆板式大宅。
约143㎡户型,户型非常方正,空间布局合理,动静分区;客厅开间4.8m,远超市场同类产品;南向8米阳台,生活观景兼得;南北通透、次卧连接阳台,客厅、次卧通过阳台形成连同空间,灵动性更强;
约168㎡户型,LDKB一体化设计;餐客厅相连,形成面积超45㎡的超大会客厅;6.3米超大宽厅设计,连接9.5米跑道式阳台,形成采光通风非常好;客厅超7米宽飘窗,形成270°IMAX级巨幕视野。


装修设计:
万科拥有在 32 年的全装修经验,与多家相关企业达成战略合作,集中采购装修材料,在装修过程中,有经验非常丰富的专业装饰监理进行全过程监控,保障产品的高品质,施工过程更放心。同时所选取的材料均以环保无害为第一要素,无室内油漆作业,较大程度消除室内污染,更环保的绿色环境。

社区空间:
项目遵循天然台地肌理,拾阶而上,依地势而造景,打造移步异景的归家礼仪。古朴东方韵味与现代简约线条的碰撞,为圈层构筑丰盛生活,吃喝玩乐购一应俱全。小区内部打造了“一带两轴两环六进院落”,将归家动线与景观结合,外有活力,内感静谧,营造繁华转身后,尊贵、本真、优雅的现代东方园林,给业主更有品质的归家礼遇。

05
龙湖 · 青云阙 (长沙)
项目概况:
龙湖青云阙是龙湖落子长沙的首个“青云阙系作品” 。项目位于长沙市雨花区,紧邻区政府和雨花区顶级名校-泰禹小学,南至长塘路,西至香莲路,北至天赐良园小区,东至全塘路,地块北侧有5号线大塘站,交通便利,基地周边配套成熟,位置优越。

主力户型:
龙湖青云阙, 143-239平。
约143㎡户型,四开间朝南,南向面宽有14m。市场少有大面宽产品,通透性好,采光通风俱佳。4.5m极致竖厅设计;
约189㎡户型,五开间朝南,超高得房率,大宽厅设计,整体又与大宽厅相连,形成IMAX级景观视野,南北通、双阳台及双套房设计;
约239㎡户型,5.5开间朝南, 270°转角端厅,尽享极致视野,南北通、双阳台及双套房设计;女王入户玄关,尽享仪式感;超豪华主卧配置;



装修设计:
龙湖·青云阙是龙湖精奢作品,打造龙湖第三代住宅产品,项目甄选全球高定奢材,以精粹造诣打造双入户礼遇,两梯两户纯板楼,私梯入户,尽显尊崇与私密。


社区空间:
龙湖青云阙,是龙湖落子长沙的首个“青云阙系作品” ,打造学府豪宅,城央之上的绿居生活。项目打造归家酒店的仪式感,林隐水居,中央归家绿轴,浮栈绿院:悦享度假绿色生活 。

以上仅为个人观点,不代表所在企业观点。
版权申明:本文版权归克而瑞湖南机构所有,未经许可与授权,严禁转载。
如需转载和合作,请致电19892894436(微信同号)。
免责声明:本文中的内容和意见仅供参考,并不构成对所述城市的出价或评估,我司对使用本文中内容所引发的任何直接或间接损失概不负责。
●产品力测评 | “2023上半年湖南产品力榜单”入围项目揭晓
●产品力测评 | 克而瑞2023上半年 · 好盘巡礼 圆满落幕
●产品力测评 | 克而瑞2023上半年 · 好盘巡礼 即将启动
●产品力报告④ | 会所设置篇:健身房、娱乐室等功能性设施成为会所标配
●产品力报告③ | 全装修配置篇:品牌升级,全装修标准不断突破创新
●产品力报告① | 建筑规划篇:规划强度下降,容积率走低,建筑形态转向高层+洋房/小高层
●产品力测评 | 专家访谈④:中信城开长沙控股有限公司副总经理—林晨
●产品力测评 | 专家访谈①:远大住工EPC市场总经理—孔杨
●产品力测评 | 克而瑞2023上半年 · 评审专家 阵容公布

