在未来的住宅产品研发中,室内收纳设计将更加注重个性化与可持续性发展,兼顾审美价值与实用性,并积极探索与科技融合。
文/克而瑞产品力研究中心
引入“柜墙比”,将收纳系统纳入交付标准
过去,商品住宅项目的精装样板间中,多数收纳仅包含玄关柜、卫生间镜柜等少数部分,大部分房间、客厅、阳台等收纳系统均作为交付标准,甚至不展示。
图:宁波翰江府户型图收纳体系示意
图:宁波江翰府建面约208㎡主卧实景
满墙柜、调整厨房外墙窗户
儿童房多3个1㎡等创新收纳
图:传统竖厅户型布局示意
图:保利调整后的竖厅布局示意
图:“二八原则”示意
图:“顶天立地”原则示意

图:佛山保利锦上115户型效果
图:山保利琅悦样板间实景
佛
图:改造前后对比示意
图:佛山保利和著样板间转角1㎡收纳示意

图:佛山保利和著样板间书桌1㎡收纳示意
图:佛山保利和著样板间床边1㎡收纳示意
满装方案将收纳体系前置,免后期装修烦恼

图:北京万科东庐样板间鞋柜实景

图:北京万科东庐样板间零食储货铺、餐边柜实景

图:北京万科东庐样板间玻璃吊柜、皮革抽屉实景
图:北京万科东庐89㎡家政收纳实景

图:鞋柜隐藏式消杀护理机、DIY洞洞板细节



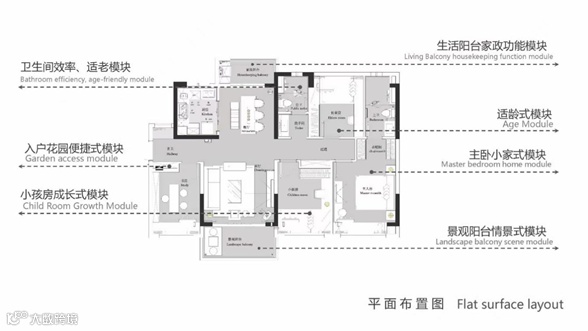
模块化、智能化收纳
让家更秩序、灵动、智慧
图:美的置业模块化收纳示意

图:美的置业主卧小家化模式收纳


图:美的置业适老式模块收纳


图:佛山美的东樾湾125㎡M+样板间厨房智能升降吊柜


排版|Jenny
房企加强新中式布局,差异化与标准化并存
成都市场最卷的143㎡产品,都是如何迭新的?




