2024年
湖南产品力测评
2024年,克而瑞产品力测评工作在湖南省房地产业协会的全面指导下,经过综合数据筛选、产品调研、产品力模型测评等环节,共计35个项目脱颖而出。
目前湖南入围项目全民投票火热进行中,点击链接为您心仪的项目投票吧!
项目概况
城发恒伟·观江学府位于长沙市主城区书院路上,是南湖新城的最核心的位置。项目总占地约64亩,建筑面积约21万方,是目前市面上少有的主城区高性价比的教育大盘,项目配套入读湘郡培粹南湖学校及青园南湖小学。

项目处于长沙市中心的“湘江金融外滩”湘江CBD;经书院路5分钟到达长沙人的娱乐休闲中心:白沙路、南湖路、冬瓜山;10分钟即可到达湘江边、15分钟就能到达长沙购物、娱乐中心五一广场等;距离地铁4号线碧沙湖站步行10分钟左右,可直达到达月亮岛、滨江新城、岳麓山等热门片区;项目周边长沙市中心医院、湘雅一医院、湘雅二医院、中医附一、中医附二、省市妇幼、省人民医院等三甲医院均在15分钟距离范围内。

主力户型
观江学府项目现以110㎡、132㎡、146㎡为臻品主力户型。
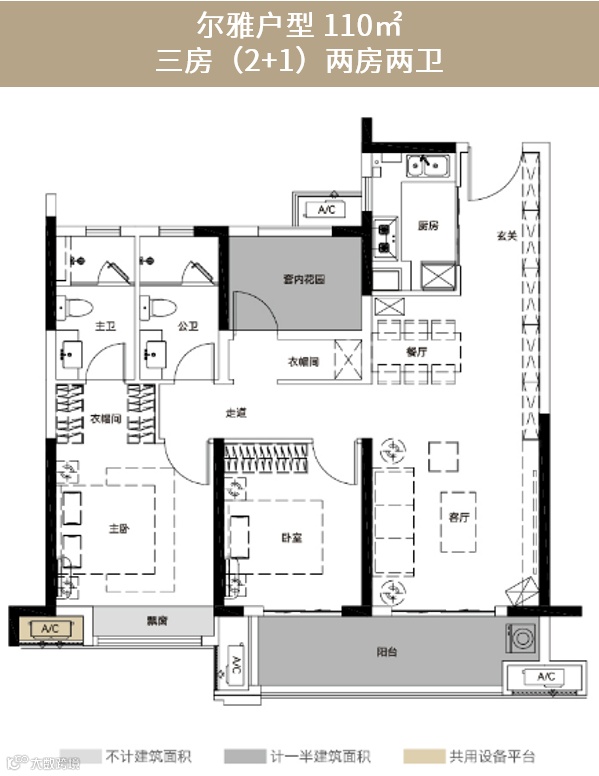
110㎡尔雅户型
LDK一体化餐客连厅:打造开放、通透的公共空间餐客连厅布局,将客厅、餐厅和厨房无缝连接;
多功能房配备:既收纳了家庭的爱好与需求,又为亲友留宿提供了灵活的空间;
宽阔客厅:无论是家庭聚会还是朋友来访,都能轻松应对,中畅享舒适生活;
套间主卧:套间设计,搭配独立的卫生间和衣帽间,打造豪华、私密的个人空间。

样板间
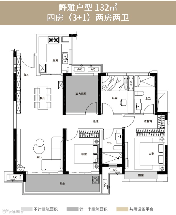
132㎡静雅户型
约6M无界阳台:宽敞通透,采光通风极佳,多功能使用,满足各种需求;约4M宽阔客厅无论是家庭聚会还是朋友来访,都能轻松应对,畅享舒适生活;
U型厨房:餐客连厅布局,将客厅、餐厅和厨房无缝连接,打造开放、通透的公共空间;
3+1房设计:户型采用3+1房设计,多一份从容与便捷。

样板间
146㎡致雅户型
约4.2M宽阔客厅:无论是家庭聚会还是朋友来访,都能轻松应对,畅享舒适生活;
3+1房设计:户型采用3+1房设计,多一份从容与便捷;
U型厨房:U型厨房布局合理,厨房与餐厅紧密相连,在烹饪的同时照顾到家人;
LDK餐客连厅布局:餐客连厅布局,将客厅、餐厅和厨房无缝连接,打造开放、通透的公共空间。

样板间

社区空间
观江学府依托建筑规划布局形成“两轴、三园、七院、一巷、四环”的空间格局。
两轴:即南北向与东西向两条中央景观轴线;三园:书香雅韵、满庭书屋、章台映学;七院:指分布于各个楼栋之间的7个入户庭院景观点;一巷:即我们的社区底商(茶园里巷);四环:全龄雅趣、涵养家风。

来源/克而瑞湖南
版权申明:本文版权归克而瑞湖南机构所有,未经许可与授权,严禁转载。
如需转载和合作,请添加“CRICCS0731”微信号。
免责声明:本文中的内容和意见仅供参考,并不构成对所述城市的出价或评估,我司对使用本文中内容所引发
的任何直接或间接损失概不负责。
●产品力测评 | 2024年湖南产品力测评入围项目 路演报告(6)
●产品力测评 | 2024年湖南产品力测评入围项目 路演报告(5)
●产品力测评 | 2024年湖南产品力测评入围项目 路演报告(4)
●产品力测评 | 2024年湖南产品力测评入围项目 路演报告(3)

