4月22日,长沙市自然资源和规划局发布保利梅溪天珺项目总图变更批前公示。
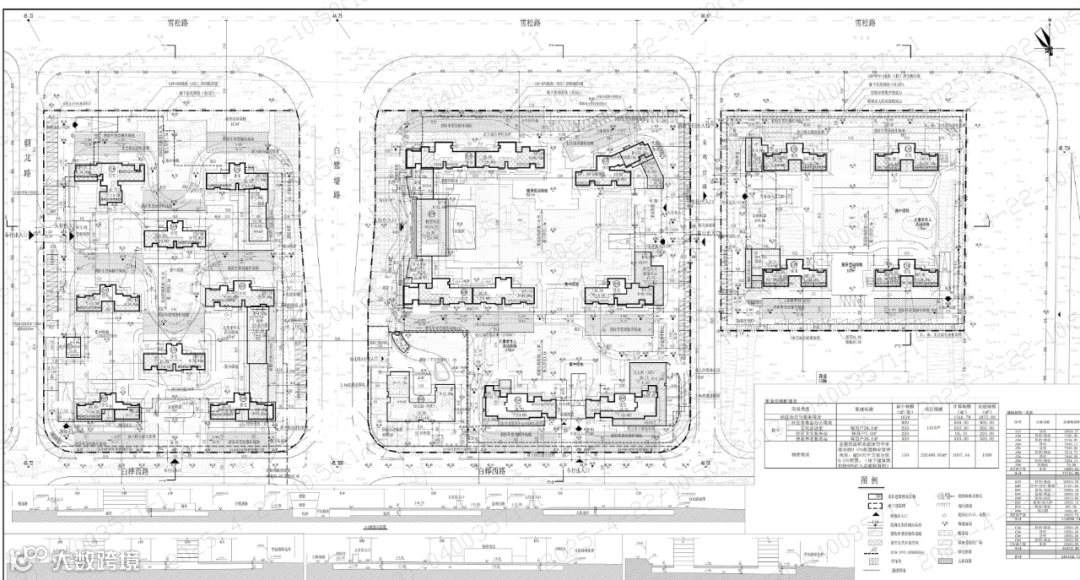
宗地容积率3.36,绿地率35%,建筑密度22%。总建筑面积25.41万㎡,其中住宅面积19.84万㎡。
(修改后)
(修改前)
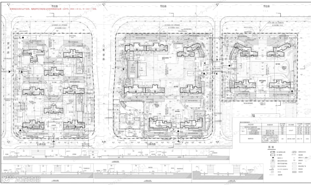
(修改后)
根据建筑面积来看,A区和C区均有建筑面积变动,A区降低了3243平米,C区增加了4932平米。
(修改后)
从规划户数来看A区将≥150平米户型从99套缩减至25套,90-150平米户型增加74套,户型共增加49套。
来源/克而瑞湖南区域
版权申明:本文版权归克而瑞湖南机构所有,未经许可与授权,严禁转载。
如需转载和合作,请“CRICCS0731”微信号。
免责声明:本文中的内容和意见仅供参考,并不构成对所述城市的出价或评估,我司对使用本文中内容所引发的任何直接或间接损失概不负责。


