
我们在测绘地形时,很多时候是根据以有旧图进行更新,这时我们会提前检查旧图。而旧图往往因为年代久远或是绘制情况及其他原因并不满足我们的要求,比如高程点的问题。
例如如下图纸中,高程点的点与标注是分开的而且点的高程与标注高程不同。

我们首先需要在现场取几个点确定图上高程点与标注哪个出现了错误。
当我们确定是高程标注存在错误时,我们需要提取图上高程点的高程并重新展点。
具体操作步骤如下:
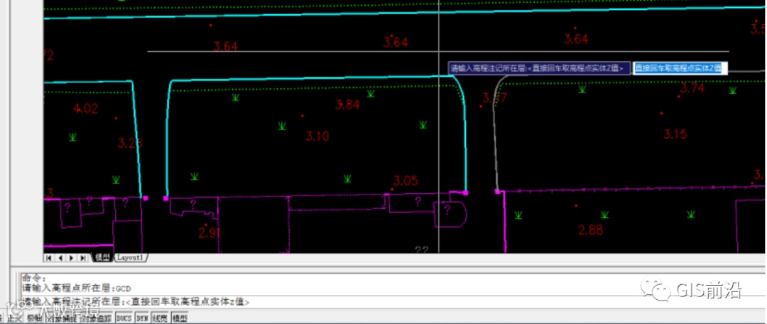
1、选择一个高程点,确定其所在图层为gcd。

2、 选择顶部菜单栏的工程应用——高程点生成数据文件——无编码高程点。

3、选择提取高程点的存放位置及高程点文件的名称,这里命名为gcd 。

4、按照提示输入高程点所在的图层,(这个图层就是步骤一我们选中的高程点所在的图层)


5、出现提示高程点注记所在层时直接点空格或回车。


6、我们使用快捷命令layiso,关闭除高程点以外的其他图层。出现提示框后直接点击高程点或者高程注记,然后默认空格。



7、此时我们将图层中的全部高程点及注记选中并删除后,我们点击顶部菜单栏的绘图处理——展高程点,在存储目录中找到我们提取的高程点并打开。


出现下面的弹窗时默认点击空格
。

这样我们提取的高程点就全部添加到旧图中了。

添加高程点后我们输入快捷命令拉用打开其他全部图层,就可以发现我们重新展过的高程点的注记已经按原高程点的高程值展到图上,并且高程点与高程注记为一个块
。

- END -
CASS宗地图添加二维码
CASS3D绘制带弧形房屋
CASS绘制地形图(快捷键),效率蹭蹭往上蹿!
让你精通CASS软件的教程免费下载




