TONGHUA
配电网工程典型设计9—连接和组合电力系统中各类装置的金属附件:金具
配电网典型设计是实现标准化、规范化建设的关键,我司华越DEP-7000配网设计全过程数字平台,深度融合了国家及行业典型设计方案和标准模型,能够帮助设计师快速输出标准方案,从源头保障优质和高效的配电网建设。下面,让我们一起来了解典设中关于金具的小知识吧!
Part.1
什么是金具
金具是电力系统中用于架空输电线路及变电设备连接、固定与防护的铁制或铝制金属附件,统称电力金具。其核心功能为传递机械负荷、保障电气接触稳定,并承担导线悬挂、接续及间隔控制等任务,直接关系线路安全运行。
所以金具的“金”还是金属的意思,并非黄金的金。
Part.2
和铁附件有什么区别
既然金具也是铁质或铝制的附件,为什么不能称之为铁附件呢?
|
|
金具 |
铁附件 |
|
用途 |
架空输电线路及变电设备连接、固定与防护 |
加强电力设备的支撑和固定效果 |
|
材质 |
铁质或铝质 |
铁质 |
|
标准 |
大多为标准件,有国家标准 |
没有国家标准,需要设计提供图纸 |
Part.3
金具类型及用途
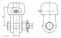
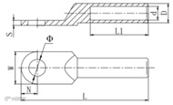
3.1.悬垂线夹
悬垂线夹用于架空线路直线杆塔上导(地)线的安装固定及非直线杆塔上跳线的固定。
命名方法:
提包式悬垂线夹
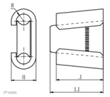
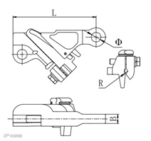
3.2. 耐张线夹
耐张线夹用于固定导(地)线,以承受导线张力,并将导线挂至耐张串组或杆塔上的金具,按其结构和安装方式可分为压缩型、螺栓型、楔型等。螺栓型及楔型线夹在导线安装后还可以拆下,另行使用。而压缩型一旦安装后,就不能再行拆卸,又称为死线夹。
|
金具名称 |
代号组成 |
平面图 |
三维图 |
|
NXJG 楔型耐张线夹 |
|
|
|
|
NXL 楔型耐张线夹 |
|
|
|
|
螺栓型耐张线夹 |
|
|
|
|
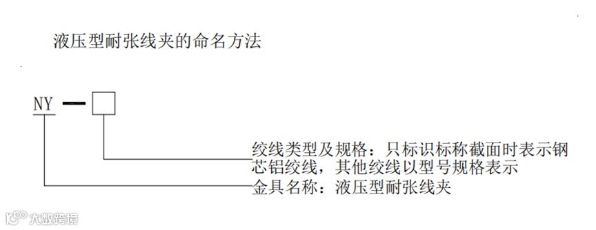
液压型耐张线夹 |
|
|
|
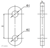
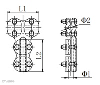
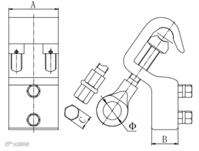
3.3. 连接金具
连接金具是用于将绝缘子、悬垂线夹、耐张线夹及防护金具等连接组合成悬垂或耐张串的金具。连接金具包括联塔金具、联板、球头挂环、碗头挂板、延长环和平行挂板等类型。
|
金具名称 |
代号组成 |
平面图 |
三维图 |
|
ZBS 挂板 |
|
|
|
|
ZBD 挂板 |
|
|
|
|
U 型挂环 |
|
|
|
|
Z 型挂板 |
|
|
|
|
QP 型球头挂环 |
|
|
|
|
QS 型球头挂环 |
|
|
|
|
W 型碗头挂板 |
|
|
|
|
WS 型碗头挂板 |
|
|
|
|
PH延长环 |
|
|
|
|
P 型平行挂板 |
|
|
|
|
PS 挂板 |
|
|
|
|
DB 调整板 |
|
|
|
|
L 型联板 |
|
|
|
|
PD 型平行挂板 |
|
|
|
3.4. 接续金具
接续金具用于导(地)线之间的连接或补修,并能满足导(地)线一定的机械及电气性能要求的金具,分为承力型接续金具和非承力型接续金具两种。
|
金具名称 |
代号组成 |
平面图 |
三维图 |
|
JY 液压型绝缘铝绞线用接续管 |
|
|
|
|
JYD 液压型钢芯铝绞线用接续管 |
|
|
|
|
JXD 楔型并沟线夹 |
|
|
|
|
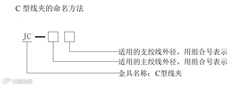
C 型线夹 |
|
|
|
|
压缩型 T 型线夹 |
|
|
|
|
螺栓型 T 型线夹 |
|
|
|
|
JJA 型线夹 |
|
|
|
|
JJB 型线夹 |
|
|
|
|
旁路(接地)线夹 |
|
|
|
|
T 接引流线夹 |
|
|
|
|
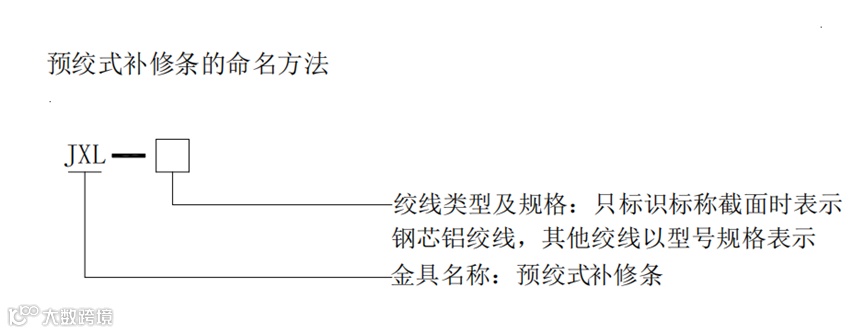
预绞式补修条 |
|
|
|
3.5. 设备金具
设备金具在配电线路中用于导线与电气设备端子之间的连接,以传递电气负荷为主要目的。
|
金具名称 |
代号组成 |
平面图 |
三维图 |
|
SBT 铜镀锡变压器线夹 |
|
|
|
|
SBL 铝合金镀锡变压器线夹 |
|
|
|
|
SBTP 铜镀锡变压器线夹 |
|
|
|
|
铜镀锡接线端子 |
|
|
|
|
铜镀锡接线端子 |
|
|
3.6. 防护金具
防护金具用于导(地)线的机械保护,包括防振锤、护线条等。
|
金具名称 |
代号组成 |
平面图 |
三维图 |
|
非对称型音叉式防振锤 |
|
|
|
|
预绞式对称型扭转式防振锤 |
|
|
|
|
护线条 |
|
|
|
|
防滑线卡 |
|
|
|
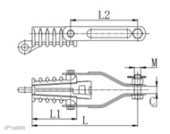
3.7. 拉线金具
拉线金具用于将杆塔、钢绞线、拉盘等连接组合成拉线的金具,包括 NX 型楔型耐张线夹、NUT 型楔型耐张线夹、UL 型挂环等。
|
金具名称 |
代号组成 |
平面图 |
三维图 |
|
NUT 型楔型耐张线夹 |
|
|
|
|
NX 型楔型耐张线夹 |
|
|
|
|
JK钢线卡子 |
|
|
|
|
UL 型挂环 |
|
|
|
|
UK 型挂环 |
|
|
|
3.8. 固定金具
固定金具是用于配电线路上支柱式绝缘子、复合绝缘横担端部固定导线的金具。固定金具包括导线绑扎线、预绞式绑线和螺栓式固定线夹等。
代码组成:

|
金具名称 |
代号组成 |
平面图 |
三维图 |
|
BJD(A 型)单瓷瓶绑线 |
顶绑线 |
|
|
|
侧绑线 |
|
|
|
|
BJD(B 型)单瓷瓶绑线 |
顶绑线 |
|
|
|
侧绑线 |
|
|
|
|
螺栓式固定线夹 |
顶绑 |
|
|
|
侧绑 |
|
|
Part.4
总结
金具选用应考虑强度、耐用性、耐冲击性、紧密性和转动灵活性等要求,根据导线类型和最大使用拉力、绝缘子强度等要求选用。
为了减少线路运行中产生的磁滞损耗和涡流损耗,减少电流通过金具产生的电能损失,与导线直接接触的金具部件应采用铝质材料,其它部件可采用铁质材料,直接与设备相连的金具部件采用铜镀锡或铝合金镀锡材料,所有铁质材料(不锈钢除外),应进行热镀锌防腐。
END
《配电网工程典型设计》专题文章
本专题目标:[本系列旨在系统性地解读与普及配电网工程各环节的典型设计标准、技术要点与创新应用。通过拆解架空、电缆、站房、户表等四大核心模块,为配电网领域的规划、设计、施工及管理人员提供一套结构完整、内容翔实的参考指南,共同提升工程设计的规范化与智能化水平。]
专题导航:
专题1:架空类--杆塔篇--10KV水泥杆塔
专题2、专题3:架空类--杆塔篇--导线
专题4:架空类--杆塔篇--超高性能水泥杆
专题5:架空类--杆塔篇--钢管杆
专题6:架空类--杆塔篇--窄基塔
专题7:架空类--横担篇--铁质横担
专题8:架空类--横担篇--复合绝缘横担
专题9:架空类--金具篇(当前文章)
专题10:架空类--绝缘子篇(待更新)
专题11:架空类--接地装置篇(待更新)
专题12:架空类--无功补偿篇(待更新)
专题13:架空类--底拉卡盘篇(待更新)
专题14:架空类--变压器篇--常规变压器(待更新)
专题15:架空类--变压器篇--智能变压器(待更新)
专题16:架空类--断路器篇(待更新)
专题17:架空类--熔断器篇(待更新)
专题18:架空类--配电自动化装置篇(待更新)
专题19:架空类--配网不停电作业篇(待更新)
后续模块:
配网工程典型设计--电缆篇(待更新)
配网工程典型设计--站房篇(待更新)
配网工程典型设计--户表篇(待更新)
关注我们,获取更多行业干货信息!
点击下方“同华科技名片”查看更多





























