
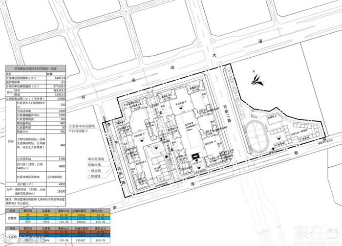
安居房:87平504套,69平1997套、总2501套
人才房:87平532套,69平1962套、总2494套
总户数:4995户

妈湾片区T101-0012宗地“工改保”项目涉及的工业区块线调整方案已经区政府常务会审议通过,现依据《深圳市工业区块线管理办法》相关规定进行公示,欢迎社会各界提出意见和建议。现将有关事项通告如下:

一、调整方案
(一)调出地块情况
调出地块位于南山街道妈湾片区,用地面积122475平方米,位于一级工业区块线内,规划为新型产业用地和城市道路用地,现状为堆场。

(二)调入地块情况
调入地块共四块,总用地面积141735.7平方米,均位于一级工业区块线边缘。其中,地块一位于南山街道南油片区东滨路与南海大道交叉口西南侧,用地面积21499.5平方米,规划为新型产业用地、公园绿地和城市道路用地;地块二位于招商街道赤湾路南侧,用地面积87628平方米,规划为新型产业用地、商业用地、公园绿地和城市道路用地;地块三位于招商街道南海大道和工业八路交叉口西南侧,用地面积25925平方米,规划为新型产业用地、商业用地和居住用地;地块四位于南山街道大小南山片区月亮湾大道和前湾四路交叉口东侧,用地面积6683.2平方米,规划为新型产业用地和城市道路用地。


——————————————————
更多动态,请留意深圳市住房和建设局官方通告
关注公众号•公租安居人才房

加群互动都是公益免费的。如果你想加入深圳公租房、安居房、可售型人才房群,请关注公众号“公租安居人才房(ID:fengyun_zhidao)”回复关键词加群,或者长按扫码添加微信“租住小帮手(fengyun2zhidao)”备注具体群。
加群互动都是公益免费的。如果你想加入深圳公租房、安居房、可售型人才房群,请关注公众号“公租安居人才房(ID:fengyun_zhidao)”回复关键词加群,或者长按扫码添加微信“租住小帮手(fengyun2zhidao)”备注具体群。
加群互动都是公益免费的。如果你想加入深圳公租房、安居房、可售型人才房群,请关注公众号“公租安居人才房(ID:fengyun_zhidao)”回复关键词加群,或者长按扫码添加微信“租住小帮手(fengyun2zhidao)”备注具体群。


