安居玥龙苑位于龙岗区宝龙街道,在建14号线宝龙地铁站附近。1、2、3栋共1016套,其中公租房 318套。建设周期为2021-2023年,2021年9月主体已开工。

安居玥龙苑



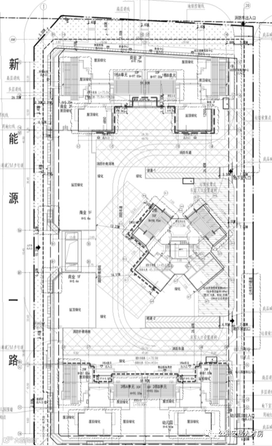
深圳市人才安居集团有限公司申请安居玥龙苑项目施工图修改,安居玥龙苑项目位于宝龙街道G02302-0022号宗地,于2021年7月28日取得《建设工程规划许可证》(深规划资源建许字LG-2021-0095号)。本次施工图修改内容涉及总平面修改,主要内容为(详情如附图云线所示):
1.主入口地面标高调整,主入口两侧台阶坡道修改;
2.公共车行通道与汽车库坡道出口相交路口道路标高调整;
3.塔楼屋顶构架调整;
4.说明补充第九条。
本次修改内容满足《建设用地规划许可证》(深规划资源建许字LG-2021-0095号)及《土地使用权出让合同书》(地合字(2020)2040号)要求。



(点“阅读原文”下载总平面图)


点击下方名片,关注公租安居人才房
—————————————————————
来源:深圳市住建局等政府网站和媒体
(如属原创侵权,请联系编辑删除相关内容)
关注公众号•公租安居人才房
每天发布深圳三大公共住房动态:3折公租房、5折安居房、6折人才房
加群互动都是公益免费的。如果你想加入深圳公租房、安居房、可售型人才房群,请关注公众号“公租安居人才房(ID:fengyun_zhidao)”回复关键词加群,或者长按扫码添加微信“租住小帮手(fengyun2zhidao)”备注具体群。商业推广也可联系此号。



