点击上方“公租安居人才房”,选择“关注”
实时获取深圳公租房、安居房、人才房消息!
...选择“设为星标”,关键时刻,不会错过!
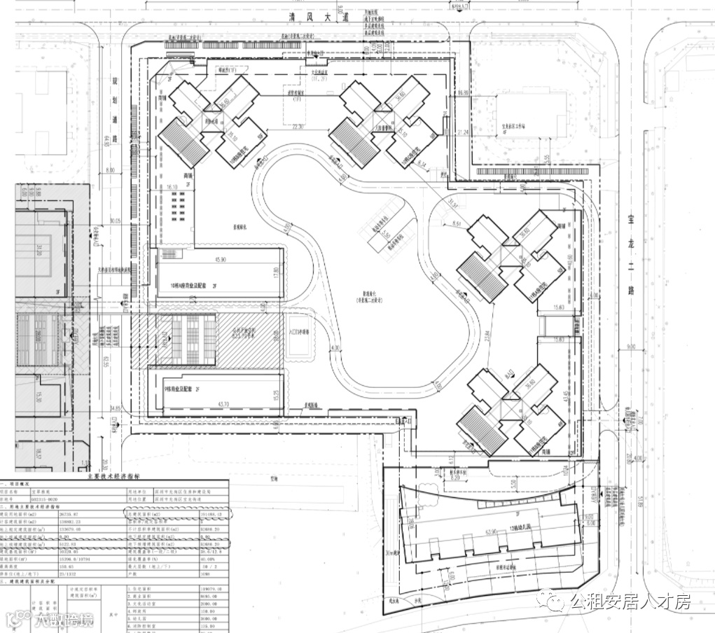
宝翠雅苑位于龙岗区龙岗街道,与2021年已申购的宝澜雅苑近邻。宗地号G02315-0020,10栋、11栋各50层含安居房共732套(全三房),12栋是幼儿园。样板房位于11栋B座。
深圳市龙岗区住房保障管理中心需开展龙岗区投资建设安居型商品房项目(宝翠雅苑及部分零星房源)的销售工作:宝翠雅苑本次供应732套房源,另有其他项目部分零星房源约140余套。




(长按查看宝翠雅苑VR户型)




教育资讯深圳市 (楼盘学校、教育补贴,新增学校、招生办法,学区划分,积分办法,录取积分等)
特别说明:本文由【公众号•公租安居人才房】编辑整理发布,转载请注明!
—————————————————————
来源:深圳市住建局教育局等政府网站和媒体
(如属原创侵权,请联系编辑删除相关内容)

2022-2023年待售安居房
龙岗:宝翠雅苑 / 雍山郡花园 / 悦时光花园 / 特发香阅四季园 / 顺明园 / 美盛岭尚苑
坪山:深业山水东城 / 安居梓和苑 / 保利明玥澜岸
龙华:龙誉花园
宝安:云海臻府
光明:金地明峰府
大鹏:帆湾海寓


加群互动都是公益免费的。如果你想加入深圳公租房、安居房、可售型人才房群,请关注公众号“公租安居人才房(ID:fengyun_zhidao)”回复关键词加群,或者长按扫码添加微信“租住小帮手”备注具体群。商务推广也可联系此号。

每天发布深圳三大公共住房动态:3折公租房、5折安居房、6折人才房
点击下方名片,关注公租安居人才房

