点击上方“公租安居人才房”,选择“关注”
实时获取深圳公租房、安居房、人才房消息!
...选择“设为星标”,关键时刻,不会错过!

































教育资讯深圳市 (楼盘学校、教育补贴,新增学校、招生办法,学区划分,积分办法,录取积分等)
特别说明:本文由【公众号•公租安居人才房】编辑整理发布,转载请注明!
—————————————————————
来源:深圳市住建局教育局等政府网站和媒体
(如属原创侵权,请联系编辑删除相关内容)
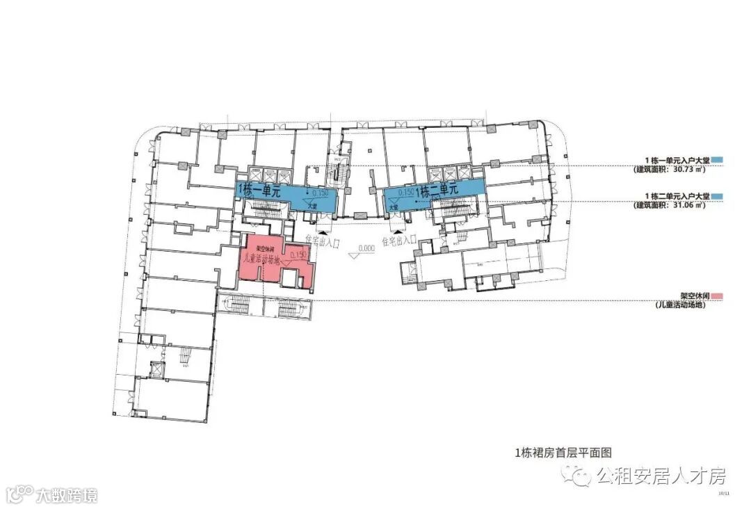
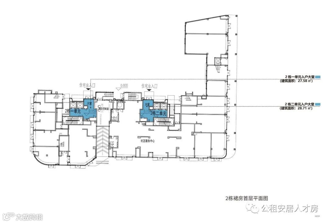
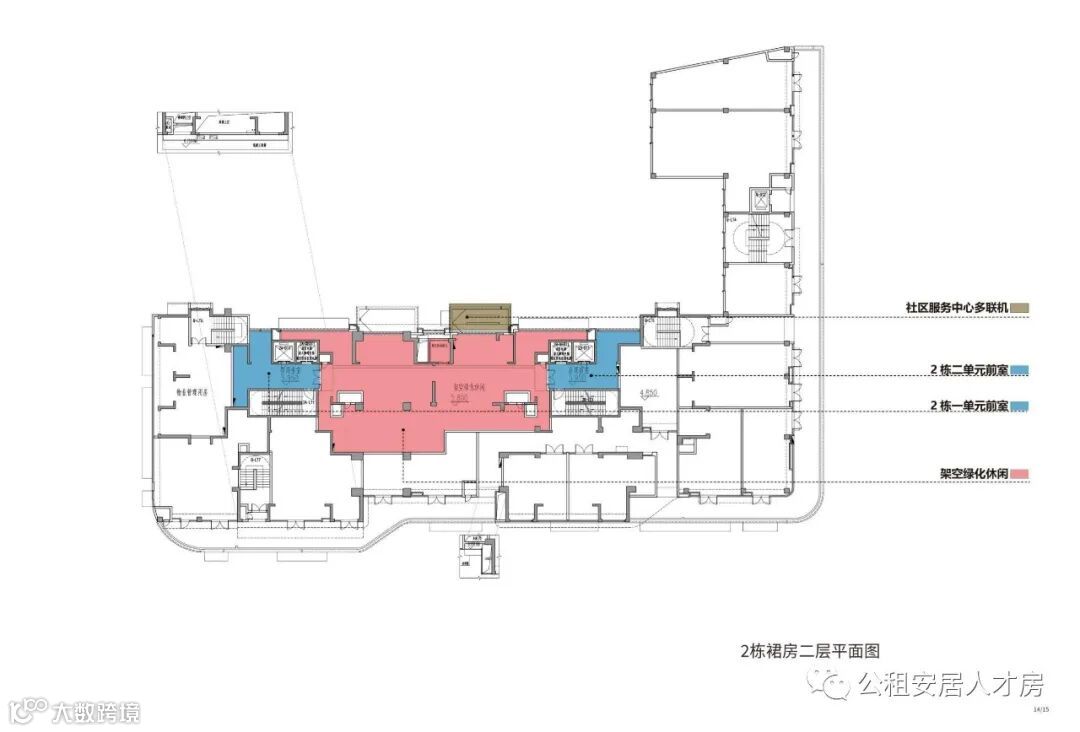
保利明玥澜岸224套安居房即将申购

2022-2023年待售安居房
龙岗:宝翠雅苑 / 雍山郡花园 / 悦时光花园 / 特发香阅四季园 / 顺明园 / 美盛岭尚苑
坪山:深业山水东城 / 安居梓和苑 / 保利明玥澜岸
龙华:龙誉花园
宝安:云海臻府
光明:金地明峰府
大鹏:帆湾海寓

加群互动都是公益免费的。如果你想加入深圳公租房、安居房、可售型人才房群,请关注公众号“公租安居人才房(ID:fengyun_zhidao)”回复关键词加群,或者长按扫码添加微信“租住小帮手”备注具体群。商务推广也可联系此号。

每天发布深圳三大公共住房动态:3折公租房、5折安居房、6折人才房
点击下方名片,关注公租安居人才房

