点击上方“公租安居人才房”,选择“关注”
实时获取深圳公租房、安居房、人才房消息!
...选择“设为星标”,关键时刻,不会错过!

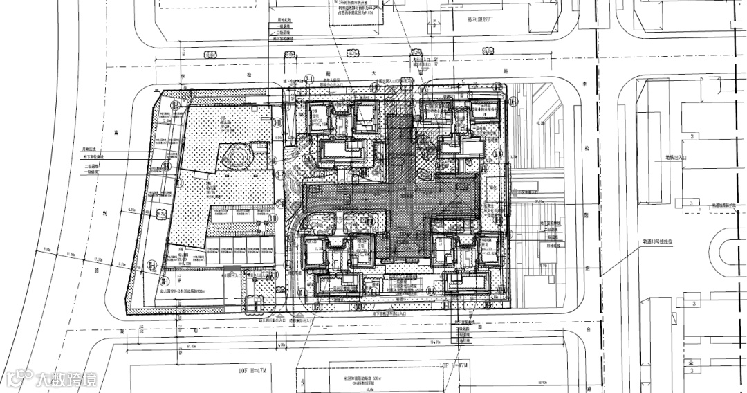
近期,深圳市伟城房地产开发有限公司向我局申请变更伟城贤德瑞府项目的建设工程规划许可。经审查,同意该项目申请并核发变更后的《深圳市建设工程规划许可证》。根据《中华人民共和国城乡规划法》等相关规定,现将变更后的《深圳市建设工程规划许可证》[深规划资源建许字MG-2022-0006(改1)号]、屋顶总平面图及核增建筑面积专篇予以公布。
附件1:深圳市建设工程规划许可证

附件2:屋顶总平面图



附件3-1:JS-HZ-01-核增建筑面积专篇(一)
附件3-2:JS-HZ-02-核增建筑面积专篇(二)
附件3-3:JS-HZ-03-核增建筑面积专篇(三)
附件3-4:JS-HZ-04-核增建筑面积专篇(四)
附件3-5:JS-HZ-05-核增建筑面积专篇(五)
附件3-6:JS-HZ-06-核增建筑面积专篇(六)
附件3-7:JS-HZ-07-核增建筑面积专篇(七)
附件3-8:JS-HZ-08-核增建筑面积专篇(八)
附件3-9:JS-HZ-09-核增建筑面积专篇(九)
附件3-10:JS-HZ-10-核增建筑面积专篇(十)
附件3-11:JS-HZ-11-核增建筑面积专篇(十一)
附件3-12:JS-HZ-12-核增建筑面积专篇(十二)
附件3-13:JS-HZ-13-核增建筑面积专篇(十三)
附件3-14:JS-HZ-14-核增建筑面积专篇(十四)
附件3-15:JS-HZ-15-核增建筑面积专篇(十五)
光明区城市更新和土地整备局
2023年9月4日
教育资讯深圳市 (楼盘学校、教育补贴,新增学校、招生办法,学区划分,积分办法,录取积分等)
特别说明:本文由【公众号•公租安居人才房】编辑整理发布,转载请注明!
—————————————————————
来源:深圳市住建局开发商等主流网站和媒体
(如属原创侵权,请联系编辑删除相关内容)
深圳安居房地图


加群互动都是公益免费的。如果你想加入深圳公租房、安居房、可售型人才房群,请关注公众号“公租安居人才房(ID:fengyun_zhidao)”回复关键词加群,或者长按扫码添加微信“租住小帮手”备注具体群。商务推广也可联系此号。

每天发布深圳三大公共住房动态:3折公租房、5折安居房、6折人才房
点击下方名片,关注公租安居人才房

