
欢迎关注环保监理!微信号:hbjl666(长按复制)
01 1、参与竣工图的签字人员
应由公司授权的竣工图签字人员
技术负责人:项目总工;公司技术负责人;项目技术负责人;公司工程部部长、公司总工(副总工)。
编制人:具体编制人员,谁编制的就填谁,可以是公司的资料员或工程技术人员等;公司内的专业工程师;项目质量员;施工员。
审核人:技术负责人;技术主管;专业工程师;项目经理;公司总工。

02 2、竣工资料应怎样排目录
完整的竣工资料应怎样排目录、装订才完善,应按当地建设行政主管部门或档案管理机构的要求,请参考:
竣工图类型内容与要求
竣工图是建筑工程竣工档案的重要组成部分,是工程建设完成后主要凭证性材料,是建筑物真实的写照,是工程竣工验收的必备条件,是工程维修、管理、改建、扩建的依据。各项新建、改建、扩建项目均必须编制竣工图。
1、编制要求
1.1 凡按施工图施工没有变动的,由竣工图编制单位在施工图图签附近空白处加盖并签署竣工图章。
1.2 凡一般性图纸变更,编制单位可根据设计变更依据,在施工图上直接改绘,并加盖及签署竣工图章。
1.3 凡结构形式、工艺、平面布置、项目等重大改变及图面变更超过 40% 的,应重新绘制竣工图。重新绘制的图纸必须有图名和图号,图号可按原图编号。
1.4 编制竣工图必须编制各专业竣工图的图纸目录,绘制的竣工图必须准确、清楚、完整、规范、修改必须到位,真实反映项目竣工验收时的实际情况。
1.5 用于改绘竣工图的图纸必须是新蓝图或绘图仪绘制的白图不得使用复印的图纸。
1.6 竣工图编制单位应按照国家建筑制图规范要求绘制竣工图使用绘图笔或签字笔及不退色的绘图墨水。
2、主要内容
2.1 竣工图应按单位工程,并根据专业、系统进行分类和整理。
2.2 竣工图包括以下内容:
2.2.1 工艺平面布置图等竣工图
建筑竣工图、幕墙竣工图
结构竣工图、钢结构竣工图
建筑给水、排水与采暖竣工图
燃气竣工图、建筑电气竣工图
智能建筑竣工图 (综合布线、保安监控、电视天线、火灾报警、气体灭水等)、通风空调竣工图
地上部分的道路、绿化、庭院照明、喷泉、喷灌等竣工图
地下部分的各种市政、电力、电信管线等竣工图
3、竣工图的类型
3.1 利用施工蓝图改绘的竣工图
3.2 在二底图上修改的竣工图
3.3 重新绘制的竣工图
4、竣工图绘制要求
4.1 利用施工蓝图改绘的竣工图
在施工蓝图上一般采用杠 (划)改、叉改法,局部修改可以圈出更改部位,在原图空白处绘出更改内容,所有变更处都必须引划索引线,并注明更改依据。在施工图上改绘,不得使用涂改液涂抹、刀刮、补贴等方法修改图纸。
具体的改绘方法可视图面、改动范围和位置、繁简程度等实际情况而定,以下是常见改绘方法的举例说明。
4.1.1 取消的内容
4.1.1.1 尺寸、门窗型号、设备型号、灯具型号、钢筋型号和数量、注解说明等数字、 文字、符号的取消,可采用杠改法。即将取消的数字、文字、符号等用横杠杠掉 (不得涂抹掉),从修改的位置引出带箭头的索引线,在索引线上注明修改依据,即“见×号洽商×条”,也可注明 “见×年×月×日洽商×条”。
例如:首层底板结构平面图(结 2 )中Z16(Z17 )柱断面,(Z17)取消。
改绘方法:将 (Z17 )和有关的尺寸用杠改法去掉,并注明修改依据 (见图 1):

4.1.1.2 隔墙、门窗、钢筋、灯具、设备等取消,可用叉改法。即在图上将取消的部分打 “×”,在图上描绘取消的部分较长时,可视情况打几个 “×”,达到表示清楚为准。并从图上修改处见箭头索引线引出,注明修改依据。
例如:平面图中库房取消。即 (B )~(C )轴间③轴上砖墙取消。
改绘方法:“库房”二字和隔墙相关的尺寸杠改,将隔墙及其门用叉改法×掉,并注明修改依据 (见图 2 )。

4.1.2 增加的内容
4.1.2.1 在建筑物某一部位增加隔墙、门窗、灯具、设备、钢筋等。均应在图上的实际位置用规范制图方法绘出,并注明修改依据。
例如:结 5 中 1- 1 剖面钢筋原为 4 ф18、现改为 6 ф18,并在 400 长边中间增加钢筋。
改绘方法:将增加的钢筋图在 1- 1 剖面实际的位置上,并注明修改依据 (见图 3 )。

4.1.2.2 如增加的内容在原位置绘不清楚时,应在本图适当位置 (空白处)按需要补绘大样图,并保证准确清楚,如本图上无位置可绘时,应另用硫酸纸绘补图并晒成蓝图或用绘图仪绘制白图后附在本专业图纸之后。注意在原修改位置和补绘图纸上应注明修改依据,补图要有图名和图号。
例如:基础平面、一、二、三层 (E1 )轴与①轴交叉处原方柱改为圆柱 (直径 500), 基柱 Z5 改 Z6 。
改绘采用图纸空白处绘的大样方法 (见图 4 )。注意,凡本修改涉及的建筑图和结构图均要改绘。

4.1.3 内容变更
4.1.3.1 数字、符号、文字的变更,可在图上用杠改法将取消的内容杠去,在其附近空白处增加更正后的内容,并注明修改依据。
例如:图2 中,原 66GC 窗改为 68GC 窗,是按杠改法改绘的。
4.1.3.2 设备配置位置、灯具、开关型号等变更引起的改变;墙、板、内外装修等变化…… 均应在原图上改绘。
4.1.3.3 当图纸某部位变化较大、或在原位置上改绘有困难,或改绘后杂乱无章,可以采用以下办法改绘。
画大样改绘:
在原图上标出应修改部位的范围,后在须要修改的图纸上绘出修改部位的大样图,并 在原图改绘范围和改绘的大样图处注明修改依据。
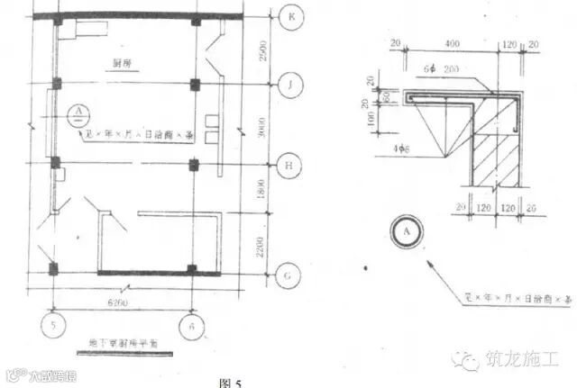
例如:地下室厨房窗台板做法修改。
修改方法:将修改的部位用 A 表示并在图纸空白处绘 A 大样图 (见图 5 )。

另绘补图修改:
如原图纸无空白处,可把应改绘的部位绘制硫酸纸补图晒成蓝图后,做为竣工图纸, 补在本专业图纸之后。具体做法为:在原图纸上画出修改范围,并注明修改依据和见某图(图号)及大样图名;在补图上注明图号和图名,并注明是某图 (图号)某部位的补图和修改依据。
例如:一层平面 (C )~(D )轴间地沟修改 (见图 6)需要重绘两轴间大样图,具体做法是:先在原图 (C )~(D )轴间注明修改依据,并注明见建补×地沟详图。然后另绘制地沟详图。补图应有图标,注明图号 (建补×)和图名 (此补图可以包括几个修改大样图), 在图纸说明中注明地沟详图为一层平面 (C )~(D )轴间修改图。
个别蓝图需重新绘制竣工图:
如果某张图纸修改不能在原蓝图上的修改清楚,应重新绘制整张图作为竣工图。重绘的图纸应按国家制图标准和绘制竣工图的规定制图。
4.1.4 加写说明
凡设计变更、洽商的内容应当在竣工图上修改的,均应用绘图方法改绘在蓝图上,不再加写说明。如果修改后的图纸仍然有内容无法表示清楚,可用精练的语言适当加以说明。
4.1.4.1 图上某一种设备、门窗等型号的改变,涉及到多处修改时,要对所有涉及到的地方全部加以改绘,其修改依据可标注一个修改处,但需在此处做简单说明。
例如:一层平面 4 樘 C2-3009 窗改为 C1-3006 窗。修改时每窗型号均应改正,但在标注修改依据时,可只注一处,并加以樘数说明 (见图 6 )。

4.1.4.2 钢筋的代换,混凝土强度等级改变,墙、板、内外装饰材料的变化,由建设单 位自理的部分等在图上修改难以用作图方法表达清楚时,可加注或用索引的形式加以说明。
4.1.4.3 凡涉及到说明类型的洽商,应在相应的图纸上使用设计规范用语反映洽商内容。
4.1.5 注意事项
4.1.5.1 施工图纸目录必须加盖竣工图章,作为竣工图归档。凡有作废、补充、增加和修改的图纸,均应在施工图目录上标注清楚。即作废的图纸在目录上杠掉,补充的图纸在目录上列出图名、图号。
4.1.5.2 如某施工图改变量大,设计单位重新绘制了修改图的,应以修改图代替原图,原图不再归档。
4.1.5.3 凡是洽商图做为竣工图,必须进行必要的制做。
如洽商图是按正规设计图纸要求进行绘制的可直接做为竣工图,但需统一编写图名图号,并加盖竣工图章,做为补图。并在说明中注明是哪张图哪个部位的修改图,还要在原图修改部位标注修改范围,并标明见补图的图号。
如洽商图未按正规设计要求绘制,均应按制图规定另行绘制竣工图,其余要求同上。
4.1.5.4 某一条洽商可能涉及到二张或二张以上图纸,某一局部变化可能引起系统变化……,凡涉及到的图纸和部位均应按规定修改,不能只改其一、不改其二。
例如:图6 中,②~③轴和⑤~⑥轴间 2760 改为 3360,使 4 处尺寸有了改变,均应改正。
再如,一个高标的变动,可能在平、立、剖、局部大样图上都要涉及到,均应改正。
4.1.5.5 不允许将洽商的附图原封不动的贴在或附在竣工图上做为修改,也不允许将洽商的内容抄在蓝图上做为修改。凡修改的内容均应改绘在蓝图上或做补图附在图纸之后。
4.1.5.6 根据规定须重新绘制竣工图时,应按绘制竣工图的要求制图。
4.1.5.7 改绘注意事项
修改时,字、线、墨水使用的规定:
字:采用仿宋字,字体的大小要与原图采用字体的大小相协调,严禁错、别、草字。
线、一律使用绘图工具,不得徒手绘制。
施工蓝图的规定:
图纸反差要明显,以适应缩微等技术要求。凡旧图、反差不好的图纸不得做为改绘用图。
修改的内容和有关说明均不得超过原图框。
4.2 在二底图上修改的竣工图
4.2.1 在设计底图或施工图制成二底 (硫酸纸)图,在二底图上依据设计变更,工程洽商内容用刮改法进行绘制,即用刀片将需更改部位刮掉,再用绘图笔绘制修改内容,并在图中空白处做一修改备考表,注明变更、洽商编号 (或时间)和修改内容。
修改备考如下所示:
变更、洽商编号 (或时间) 内容 (简要提示)
4.2.2 修改的部位用语言描述不清楚时, 也可用细实线在图上画出修改范围。
4.2.3 以修改后的二底图或蓝图做为竣工图,要在二底图或蓝图上加盖竣工图章。没有改动的二底图转做竣工图也要加盖竣工图章。
4.2.4 如果二底图修改次数较多,个别图面可能出现模糊不清等技术问题,必须进行技术处理或重新绘制,以期达到图面整洁、字迹清楚等质量要求。
4.3 重新绘制的竣工图
根据工程竣工现状和洽商记录绘制竣工图,重新绘制竣工图要求与原图比例相同,符合制图规范,有标准的图框和内容齐全的图签,图签中应有明确的 “竣工图”字样或加盖竣工图章。
4.4 用 CAD 绘制的竣工图
在电子版施工图上依据设计变更、工程洽商的内容进行修改,修改后用云图圈出修改部位,并在图中空白处做一修改备考表,表示要求同本条第 2 款要求。同时,图签上必须有原设计人员签字。
03 3、竣工图章
1、“竣工图章”应具有明显的 “竣工图”字样,并包括编制单位名称、制图人、审核人和编制日期等基本内容。编制单位、制图人、审核人、技术负责人要对竣工图负责。

2 、所有竣工图应由编制单位逐张加盖、签署竣工图章。竣工图章中签名必须齐全, 不得代签。
3、凡由设计院编制的竣工图,其设计图签中必须明确竣工阶段,并由绘制人和技术负责人在设计图签中签字。
4、竣工图章应加盖在图签附近的空白处。
5、竣工图章应使用不退色红或蓝色印泥。
04 国家建委关于竣工图的暂行规定
一、基本建设竣工图是真实地记录各种地下地上建筑物、构筑物的技术文件,是对工程进行交工验收、维护、改建、扩建的依据,是国家的重要技术档案。全国各建设、设计、施工单位和各主管部门,都要重视竣工图的编制工作,认真贯彻执行本规定。
二、各项新建、扩建、改建的基本建设工程,特别是基础、地下建筑、管线、结 构、井巷、峒室、桥梁、隧道、港口、水坝以及设备安装等隐蔽部位,都要编制竣工图。
编制各种竣工图,必须在施工过程中(不能在竣工后),及时做好隐蔽工程检验记录,整理好建设变更文件,确保竣工图质量。
三、编制竣工图的形式和深度,应根据不同情况,区别对待:
(一)凡按图施工没有变动的,则由施工单位(包括总包和分包施工单位,下同)在 原施工图上加盖 “竣工图”标志后,即作为竣工图。
(二)凡在施工中,虽有一般性设计变更,但能将原施工图加以修改补充作为竣工 图的,可不重新绘制,由施工单位负责在原施工图(必须是新兰图)上注明修改的部分, 并附以设计变更通知单和施工说明,加盖 “竣工图”标志后,即作为竣工图。
(三)凡结构形式改变、工艺改变、平面布置改变,项目改变以及有其他重大改变, 不宜再在原施工图上修改、补充者,应重新绘制改变后的竣工图。
由于设计原因造成的, 由设计单位负责重新绘图:由于其他原因造成的,由建设单位自行绘图或委托设计单位 绘图。施工单位负责在新图上加盖 “竣工图”标志并附以有关记录说明,作为竣工图。
重大的改建、扩建工程涉及原有工程项目变更时,应并相关项目的竣工图资料统一整理归档,并在原图案卷内增补必要的说明。
(四)竣工图一定要与实际情况相符,要保证图纸质量,做到规格统一、图面整治、字迹清楚,不得用元珠笔或其他易於褪色的墨水绘制。竣工图要经承担施工的技术负责人审核签认。
四、竣工图的汇总整理工作,按下列情况区别对待:
(一)建设项目实行总包制的各分包单位应负责编制分包范围内的竣工图,总包单位除应编制自行施工的竣工图外,还应负责汇总整理各分包单位编的竣工图,总包单位在交工时应向建设单位提交总包范围内的各项完整、准确的竣工图。
(二)建设项目由建设单位或工程指挥部分别包给几个施工单位承担的,各施工单位应负责编制所承包工程的竣工图,建设单位或工程指挥部负责汇总整理。
(三)建议项目在签订承发包合同时,应明确规定竣工时的编制、检验和交接等问 题。
五、工程竣工验收前,建设单位应组织、督促和协助各设计、施工单位检验各自负责的竣工图编制工作,发现有不准确或短缺时,要及时采取措施修改和补齐。竣工图要作为工程交工验收的条件之一。竣工图不准确、不完整、不符合归档要求的,不能交工验收。在特殊情况下,也可按交工验收时双方议定的期限补交竣工图。
六、大中型建设项目和城市住宅小区建设的竣工图,不得少於两套,一套移交生产使用单位保管,一套交有关主管部门或技术档案部门长期保存;关系到全国性特别重要的建设项目(如首都机场、南京长江大桥等),应增交一套给国家档案馆保存。小型建设项目的竣工图不得少於一套,移交生产使用单位保管。因编制竣工图需增加的施工图,由建设单位负责及时提供给施工单位,并在签订合同时,明确需要增加的份数。
七、大型工程竣工后,凡上述竣工图不能满足需要时,可重新绘制竣工图,由建设单位负责组织力量绘制,设计、施工单位负责提供工程变更资料。
八、编制整理竣工图所需的费用,凡属设计原因造成的,由设计单位解决;施工单位负责编制所需的费用,由施工单位在建筑安装工程造价中解决;建设单位负责编制和需要复制的费用,由建设单位在基建投资中解决;建成使用以后需要复制补制的费用, 由使用单位负责解决。
九、为了做好基本建设工程竣工图的编制工作,各主管部门可根据具体情况制订有关细则。
十、本规定从批准、颁布之日开始试行。过去的有关规定,与本规定相抵触者,按本规定执行。


