点击上方“公租安居人才房”,选择“关注”
实时获取深圳公租房、安居房、人才房消息!
...选择“设为星标”,关键时刻,不会错过!
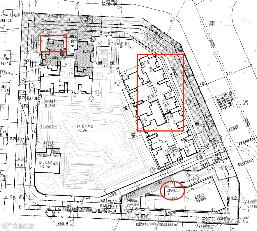
云禧公馆位于龙岗区布吉街道,宗地号G06316-0039,规划名称为丽厦投资G06317-9(5)号宗地。1栋一单元48层、1栋二单元47层规划安居房共954套,2栋是幼儿园。价格可参考同区域的2023年安居房特发香阅四季园装修26448.25元/㎡。建设工程规划许可证显示住宅达绿建国家三星级标准,符合公积金新政绿建二星级贷款额度上浮条件。主体建设周期为2023-2025年,2023年4月已开工。







教育资讯深圳市 (楼盘学校、教育补贴,新增学校、招生办法,学区划分,积分办法,录取积分等)
特别说明:本文由【公众号•公租安居人才房】编辑整理发布,转载请注明!
—————————————————————
来源:深圳市住建局教育局等政府网站和媒体
(如属原创侵权,请联系编辑删除相关内容)

深圳安居房地图


加群互动都是公益免费的。如果你想加入深圳公租房、安居房、可售型人才房群,请关注公众号“公租安居人才房(ID:fengyun_zhidao)”回复关键词加群,或者长按扫码添加微信“租住小帮手”备注具体群。商务推广也可联系此号。

每天发布深圳三大公共住房动态:3折公租房、5折安居房、6折人才房
点击下方名片,关注公租安居人才房

