点击上方“公租安居人才房”,选择“关注”
实时获取深圳公租房、安居房、人才房消息!
...选择“设为星标”,关键时刻,不会错过!
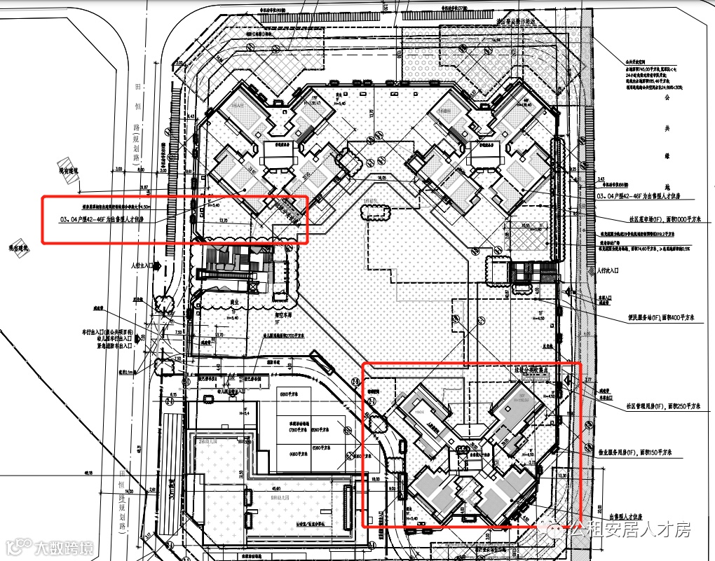
御棠上府位于光明区玉塘街道,宗地号A606-0258。1栋A座42-46F03、04户型、1栋C座共50层规划可售型人才房388套,拍地限均价26000元/平方米。1栋令含商品房484套,2栋是幼儿园,机动车停车位地上63个,地下987个。建设周期为2022-2024年,2023年4月27日商品样板房开放。



听见,城市等候心声;不负,城市热望期许。继福田深物业金领假日之后,深物业锚定光明,以40载国匠情怀造就光明品质新作——深物业御棠上府,以全新作品引领城市,赋新光明人居格局。
历经时光的潜心打磨,深物业御棠上府体验中心&样板间暨媒体品鉴会即将于万众期待中如约盛启。4月29日,一起御鉴美好,共启光明人居新范本。
/
/
匠筑美好 迭代启新
时代,因文明的辉煌而波澜壮阔;城市,因建筑的生长而璀璨夺目。深物业根植深圳40载,与深圳这座奇迹之城共生共长,“敢为人先,变革图强”,不断迭新与改变,前瞻城市发展潮向,在建筑设计、社区、园林、户型、服务等迭代前行,稳扎稳打步步为营,匠筑一座又一座城市人居精品,赢得到市场广泛的认可、信赖和赞誉。
40年光阴,深物业坚持以“品质物业,精彩生活”的企业使命,探索深圳这座城市的发展脉络,摸索万千位业主的生活追求,同时积极吸取过往品质人居大作的成功经验,不忘初心,跃级而上,以市属国企实力和担当匠造深物业御棠上府。
/
/
开篇立序 御鉴光明
光明区以建设大湾区综合性国家科学中心先行启动区为总牵引,锚定世界一流科学城和深圳北部中心奋斗目标,打造原始创新策源地、科研经济先行地、创新人才集聚地。国家级的定位和超高标准的规划建设,推动光明区将成为整个深圳西进的前线。而且随着产业、商业、文化、教育、交通等配套的全面推进,城市人居价值历久弥珍。
(信息来源:光明区政府在线)
(信息来源:光明区政府在线)
左右滑动查看更多
深物业御棠上府,位于“光明南大门”的玉塘街道,于松白路与光侨路交汇处,坐拥3主干道(松白路、光侨路、光明大道)、1高铁站(光明城站,一站深圳北)、双地铁线(地铁6号线、在建中的13号线)、3高速路(龙大、南光、外环高速)的便捷交通路网,畅达深圳各区以及大湾区主要城市。
(信息来源:百度地图、深圳政府在线)
轨道交通示意图(仅供参考,相关线路仍然在建设中,站点设置及站点名称以最终实际建成为准)
同时,项目周边配套云集,可享勤诚达K+广场、万达广场、光明蓝鲸世界等繁华商圈,华中师范大学附属光明勤诚达学校、田寮小学等优教学校,明湖城市公园、甲子塘城市公园等舒氧公园,玉塘文体中心(在建中)、光侨游泳跳水和文化活动中心(规划中)等文体配套,中国科学院大学深圳医院等医疗配套,诸多美好,铸就繁华公园里的舒居力作,是名副其实的一城向往之所在!
(信息来源:百度地图、光明区政府在线)
左右滑动查看更多
(本文对项目周边环境、交通设施及其他公共设施的介绍,旨在提供相关信息,不意味本公司对此作出了承诺,具体以政府实施为准;周边教育配套介绍旨在提供相关信息,并不意味着本公司对就学安排作出承诺,具体招生区域及招生条件等,以政府教育主管部门及办学方颁布的政策规定为准。)
/
/
精雕细琢 匠心之家
深物业御棠上府,承袭40载精工积淀,打造品质精著,以全南向蝶形布局,呈现通风采光、景观视野、私密性俱佳的建面约82-115㎡舒居空间。全明格局户型,餐客通透一体,构建互动主场;卫浴干湿分离,生活清爽洁净;卧室皆带飘窗,拓宽空间尺度,云端宽屏视界,俯瞰自然盛景。
同时,深物业御棠上府在园林设计方面独具匠心,以“一环、一心、一轴、三乐园”打造多重缤纷景致,绘制四时赏景的怡人画卷,并融合全龄需求,营造一个可供孩子游玩、老人阅读聊天、年轻人健身慢跑的多元互动社区。此外,更配套建设商业街区及配建幼儿园,用心成就美好生活。
左右滑动查看更多
(幼儿园配套介绍旨在提供相关信息,并不意味着本公司对就学安排作出承诺。具体招生区域及招生条件等,以政府教育主管部门及办学方颁布的政策规定为准。)
/
/
国资巨擘 安心之选
深物业集团母公司深圳市投资控股有限公司(简称“深投控”)成立于2004年,是以科技金融、科技园区、科技产业为主业的国有资本投资公司。深投控注册资本280.09亿元,全资、控股企业41家,其中上市公司13家。2020年,深投控成为深圳市属国企首家世界500强企业;2021年世界500强排名396位,较上年上升46位;2022年以2021年营业收入2425亿元人民币的骄人成绩位世界500强列榜单第372位。深圳国资巨头背书,稳健置业保障。
(信息来源:深圳市国资委官网)
/
/
开篇立序 御鉴光明
历经40载风华积淀,深物业与深圳共生共长,已发展成为一家以房地产开发为主营产业、涉足城市更新、物业管理、资产运营、产业投资等多元化的集团公司,并打造了深物业·廊桥国际、深物业·皇御苑、深物业·御花园、深物业·前海港湾、深物业·金领假日、深物业·新华城、深物业·松湖朗苑、深物业·半山御景等一系列精品人居项目及产城生态运营国贸大厦、福民综合楼等,多元稳健发展深受市场信赖。
深物业集团旗下深圳市国贸物业管理有限公司成立于1984年,是中国第一家超高层综合写字楼的物业服务企业,是首批获得国家物业管理一级资质企业。
国贸物业市场化进程高达80%以上,18家下属企业及COE中心,国贸物业凭借自身实力获得各类国家、地区、行业荣誉百余项,并连续多年被评为中国物业管理行业百强企业和中国产业园区管理优秀企业。迄今为止,国贸物业管理面积超3200万平方米,每天有超过100万名客户体验着国贸物业的服务。
只为将家的美好延续,深物业御棠上府重新定义城市高品质住区,为深圳献上一方公园生活悦境。4月29日相约深物业御棠上府体验中心,在光明的繁华盛景中,在流光溢彩的表演里,一起见证40载深物业光明全新力作绽放,与城市美好共鸣。
—————————————————————
来源:深物业御棠上府、深圳市住建局教育局等政府网站和媒体
(如属原创侵权,请联系编辑删除相关内容)

深圳人才房地图

加群互动都是公益免费的。如果你想加入深圳公租房、安居房、人才房群,请关注公众号“公租安居人才房(ID:fengyun_zhidao)”回复关键词加群,或者长按扫码添加微信“租住小帮手”备注具体群。商务合作也可联系此号。

每天发布深圳三大公共住房动态:3折公租房、5折安居房、6折人才房
点击下方名片,关注公租安居人才房

