位于龙岗中心城的华侨城·东岸雅居已发布配售通告,2023年11月4日至11月12日为申购时间,关注项目的朋友不要错过机会,抓紧时间先上车!
在深圳,华侨城就等于深圳的一张名片:东部华侨城、欢乐谷、世界之窗、锦绣中华、欢乐海岸、OCT创意园等,都是华侨城在深圳深耕数十年打造出来的代表性地标。
其打造的住宅项目也一脉相承,以创想“宜居”生活,在这座城市立下了多个标杆作品:波托菲诺、新天鹅堡、香山美墅等。而作为华侨城安居房首作,也接下了这份传递,在龙岗中心城交出自己的诚意之作——华侨城·东岸雅居。
东岸雅居位于龙岗区龙城街道,宗地号G01019-0042,项目整体为安居房,共规划1栋、2栋400套房源,其中两房268套,三房132套,预售均价2.35w/㎡。层高分别为35、34层,两梯六户,01、02、03、04户型为两房约70平(整体得房率约77-79%),05、06户型为三房约90平(整体得房率约77-79%),机动车位350个,开发商及物业为华侨城,项目预计交楼时间是2025年5月30日前。

项目户型设计上的亮点在这边重点提一下,一般市面上的安居房三房产品为两厅一卫,本次华侨城规划的是三房两厅两卫,两个卫生间,为多人家庭的空间使用性上便利了不少,至少不会拥挤或者催促使用,这点还是十分细节的!
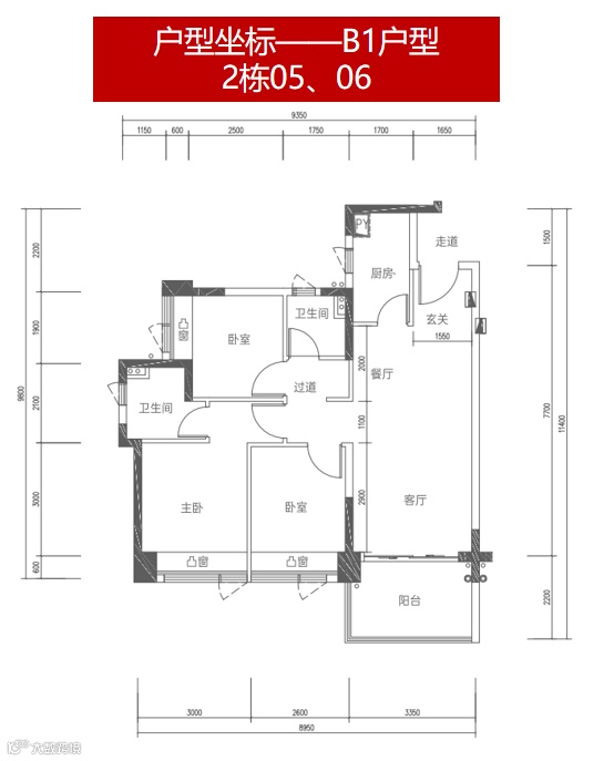
建筑面积约90㎡三房两厅两卫
三房户型正南/东南朝向,户型方正,全明通透且采光充足,阳台为3.35m*2.2m,视野十分宽绰,空间利用率也很高。


两房共5个户型,空间设计上动静分区,户型方正实用,且阳台进深约1.9-2.2m,视野采光不错。





交通方面,项目邻近16号线双地铁口,距离尚景站地铁口步行约600米,距离回龙埔站步行约700米,五站即达大运枢纽站,转乘14号线可达福田岗厦北;驾车出行的话周边有盐龙大道、龙平西路两大主干道,可快速通行水官高速、武深高速等交通干道;

休闲娱乐方面,项目位于中心区,且周边皆为成熟住宅项目,除了依靠住宅的基础底商外,临近项目还有小型的华润万家超市可供日常生活消费所需,且周围还有宝能all city、沃尔玛、盒马鲜生、仁恒梦中心等购物中心;

项目背靠回龙埔公园,周边还有龙潭公园、龙城公园等环境纯粹的市政公园,环境舒适、家庭出游、散步都很不错,另外距离项目1.5公里处还有在建的深圳市最大的龙岗区儿童乐园,预计2024年开放,届时也是一处不错的游玩打卡地!

教育方面,与项目隔条马路的深圳中学龙岗学校(集团)兰著学校为九年制义务学校,周边更有依山郡小学、清林小学等学校,基本满足片区居民上学需求,具体的入学条件可在龙岗区教育官网查询;

对于目前所出的安居房来说,东岸雅居的位置是十分不错的,龙岗中心城,无论是配套还是地段都不亚于很多板块的住宅区,而且项目周边居住环境纯粹,是十分成熟的住宅片区,在这个片区是足以畅想未来美好可期的生活!
目前项目已经发布申购通告,关注项目的朋友抓紧时间进行申购,错过再无!
项目最新信息会第一时间发在群里,小伙伴们也可以在群里沟通交流!

-广告-
声明:本文为推广,文章内容、产品、服务均由品牌方提供,不代表本公众号观点。如有违规、侵权请联系我们,我们将及时处理。