
欢迎关注环保监理!微信号:hbjl666(长按复制)


哥斯达黎加的建筑师CésarOreamuno设计了一个模块化的胶囊,其适应社会的紧急情况或灾害后的基本需要。这些单元是适应性的,易于组合,以解决各种情况,并对一系列独特的功能作出反应,虽然该项目的主要主题的重点是提高质量的关注,对危机受害者的基本需求,以及鼓励社区的发展。
Costa Rican architect César Oreamuno has designed a modular capsule that accommodates to the basic needs of a community after a state of emergency or disaster. The units are adaptable and easily assembled in order to account for a variety of situations and respond to a series of unique functions, although the main theme of the project is focused on improving the quality of attention towards the basic needs of crisis victims, as well as encouraging the development of the community.



哥斯达黎加的全国风险预防和应急反应委员会将大规模灾害定义为普通社会功能的破坏。除了死亡和伤害的数量外,后果包括物质货物的损失,供应线的中断和经济不稳定。每一个受危机局势影响的社会都经历生活条件的恶化。
The National Commission of Risk Prevention and Emergency Response of Costa Rica defines mass disasters as the disruption of ordinary societal functions. In addition to the number of deaths and injuries, consequences include the loss of material goods, the interruption of supply lines and economic instability. Every society that has been affected by a situation of crisis experiences a degradation of living conditions.

当限于自己的手段时,个人常常遇到困难,无法满足其最基本的需要,呼吁人道主义组织和机构予以注意。在大多数情况下,这种援助通过避难所,通常是社区会堂或学校,可能没有个人卫生和卫生所需的必要基础设施,也没有适当的储存或烹饪区域。
When restricted to their own means, individuals often experience difficulties in satisfying their most basic needs, calling for the attention of humanitarian organizations and institutions. In most cases this aid is found through shelters, usually community halls or schools, that may not have the necessary infrastructure required for personal hygiene and sanitation, nor adequate areas for storage or cooking.

如果人类居住在洞穴或树木中,就不需要建筑。建筑是必要的,以创造可居住性的条件,不依赖于一天的时间或一年的时间,或在区域内任何地方的环境气候条件。 - Guallart,2009
There would be no need for architecture if human beings were content to live in caves or in trees. Architecture is necessary to create conditions of habitability that are not dependent on the time of day or the time of year, or on the climatic conditions of the environment anywhere in the territory. – Guallart, 2009

这就是Oreamuno设计这些临时避难所模块的原由,概念从瑞士军刀的想法;架构能够同时解决多个问题,使用户能够在相对较短的时间内克服危机状态。
This is why Oreamuno has designed these temporary refuge modules, conceptualized from the idea of a Swiss army knife; architecture capable of solving multiple problems simultaneously, allowing users to overcome a state of crisis within a relatively short amount of time.

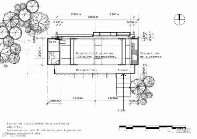
庇护所由5个隔间组成,其中3个是可移动的(内部家具)和2个刚性(结构支撑)。模块,了解附件的功能,运输方法,装配手册和技术支持的特性在设计过程中是最重要的,以便创建一个功能的命题,满足一系列基本特性,例如:
模块化系统
情境适应性
不同的使用方式
安装方便
重量轻
可移动
无专门的体力劳动
没有机械
高电阻
能够包装和堆叠
The shelter unit constitutes of 5 cubicles, 3 of which are mobile (internal furniture) and 2 rigid (structural support). The modules, the understanding the accessories’ functions, the methods of transportation, the assembly manual and the characteristics of technical support were of highest importance during the design process in order to create a functional proposition that fulfils a series of basic characteristics, such as:
Modular systems
Situational adaptability
Different options of usage
Easy installation
Light-weight
Transportable
No specialized manual labor
No machinery
High resistance
Ability to be packed and stacked













【声明】文章来源于网络,如有侵权,请留言给我们,我们会及时删除。


