点击上方“公租安居人才房”,选择“关注”
实时获取深圳公租房、安居房、人才房消息!
...选择“设为星标”,关键时刻,不会错过!




秋冬暖阳,幸福“家”速
11月21日
随着最后一铲混凝土落地
福田区安居景贤阁顺利封顶
项目正式迈入新阶段
离打造幸福生活更近一步!
▲ 安居景贤阁项目效果图
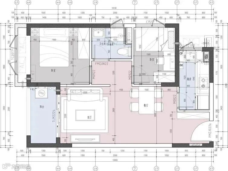
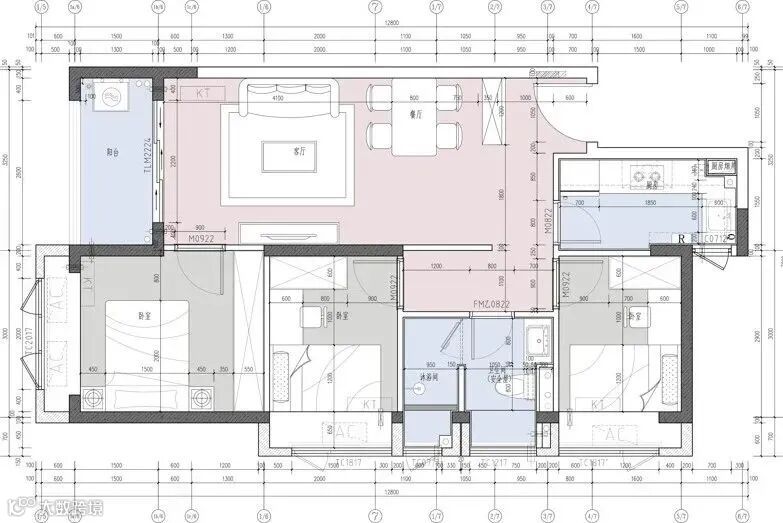
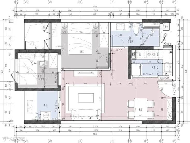
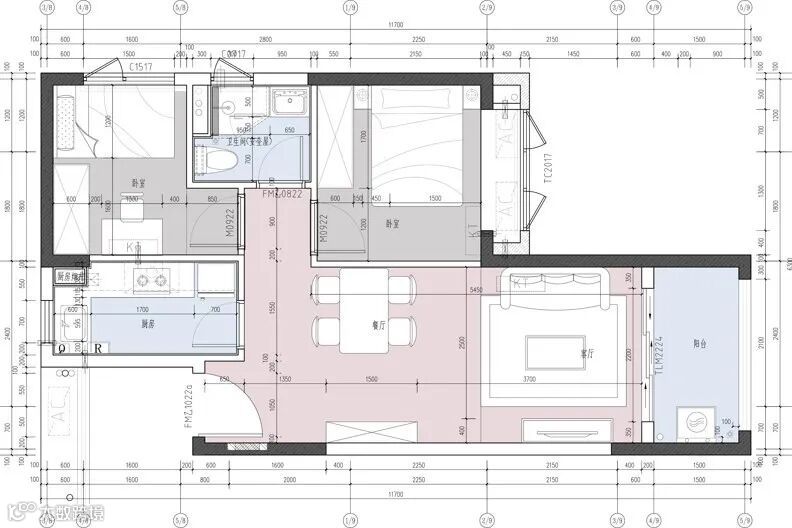
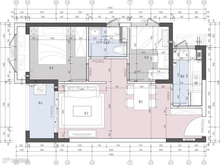
安居景贤阁项目位于福田区莲花街道景田北四街北侧,由人才安居集团旗下福田人才安居公司投资建设。项目总用地面积3084.22㎡,总建筑面积21213.52㎡,共提供150套保障性住房,有65㎡两房户型100套,80㎡三房户型50套,可满足单身或家庭需求,预计于2024年8月底完成竣工备案。
户型图首次公开



< 左右滑动查看更多 >
项目于2021年4月28日开工,为高标准建设该项目,福田人才安居公司多次组织监理、施工单位学习第三方质量、安全和交付评估细则,不断强化项目人员对质量、安全管理和评估标准的认识,运用智慧工地APP进行监督,实时掌握项目建设情况。该项目曾获得福田区“十静十净工地”及“深圳市建设工程安全生产与文明施工优良工地”称号。



近几年
福田人才安居公司
立足“首善之区”市民幸福需要
筹集建设保障性住房近1.9万套
下一步,将继续拓宽项目筹集渠道
为福田高质量发展提供安居保障
教育资讯深圳市 (楼盘学校、教育补贴,新增学校、招生办法,学区划分,积分办法,录取积分等)
特别说明:本文由【公众号•公租安居人才房】编辑整理发布,转载请注明!
—————————————————————
来源:深圳市住建局教育局等政府网站和媒体
(如属原创侵权,请联系编辑删除相关内容)

深圳人才房地图


加群互动都是公益免费的。如果你想加入深圳公租房、安居房、人才房群,请关注公众号“公租安居人才房(ID:fengyun_zhidao)”回复关键词加群,或者长按扫码添加微信“小帮手”备注具体群。商务合作也可联系此号。

【土川科技】公租安居人才房,锋哥助你选好房!
点击下方名片,关注公租安居人才房

