点击上方“公租安居人才房”,选择“关注”
实时获取深圳公租房、安居房、人才房消息!
...选择“设为星标”,关键时刻,不会错过!
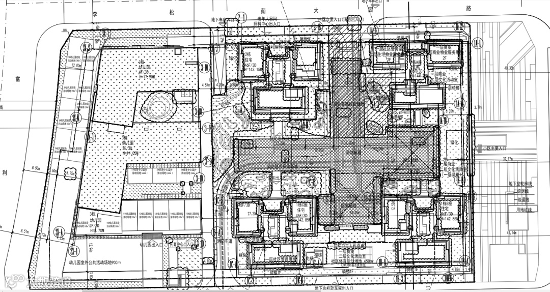
伟城贤德瑞府位于光明区公明街道,宗地号A642-0509,规划名称为鸿大新城城市更新单元,毗邻在建中的13号线二期公明北站。1栋A、B、C座规划安居房736套。从户型图看,安居房每层4套两房,2套三房,共计约两房490套,三房246套,价格可参考同区域2022年金地明峰安居房装修22560元/平。2栋是160套商品房,3栋是10班幼儿园,机动车停车位920套,车位比1.03.主体建设周期为2022-2024年,2022年7月已开工。

深圳市伟城房地产开发有限公司申请变更“伟城贤德瑞府”(宗地号:A642-0509)项目建设工程规划许可。因涉及已批屋顶总平面图调整,现根据《中华人民共和国城乡规划法》《关于城乡规划公开公示的规定》(建规〔2013〕166号)等相关规定予以公示:
一、调整内容
“伟城贤德瑞府”(宗地号:A642-0509)项目位于光明区公明街道炮台路与大园路交汇处西南侧,建设用地面积13958.45平方米。2022年6月取得《建设工程规划许可证》(深规划资源建许字MG-2022-0006号)。本次涉及已批屋顶总平面图调整的主要内容为(具体详见附件《屋顶总平面图》云线圈注部分):
对用地范围内的消防登高面、绿化范围进行优化;对托育中心出入口的无障碍坡道进行优化;对1栋、2栋各屋顶构架轮廓、出屋面核心筒范围及高度进行优化调整,1栋裙房屋顶层电梯机房轮廓调整,2栋入口雨棚轮廓调整;1栋A座屋顶局部增加两户,户型住宅中的户数进行相应修改;用地东侧小区主要入口处的构架南移1.35米,用地北侧车行出入口的范围及尺寸进行优化。主要经济技术指标表中绿地面积由897.8平方米调整为890.85平方米,折算绿地面积由4686.98平方米调整为4694.17平方米;建筑最高高度由143.75米调整为144.25米;架空休闲由1894.86平方米调整为1856.83平方米,架空绿化由1648.85平方米调整为1808.08平方米,消防避难空间由725.52平方米调整为913.71平方米,公用设备用房由4756.95平方米调整为4486.07平方米,共用停车库由29495.3平方米调整为29617.1平方米,核增建筑面积、计容积率建筑面积、不计容积率建筑面积、总建筑面积等进行相应调整。
本次修改后,绿化覆盖率、建筑覆盖率、各分项规定指标等满足《建设用地规划许可证》(地字第440311202200101号)及《土地使用权出让合同书》[深地合字(2022)M001号]的规定要求。







教育资讯深圳市 (楼盘学校、教育补贴,新增学校、招生办法,学区划分,积分办法,录取积分等)
特别说明:本文由【公众号•公租安居人才房】编辑整理发布,转载请注明!
—————————————————————
来源:深圳市住建局教育局等政府网站和媒体
(如属原创侵权,请联系编辑删除相关内容)

深圳安居房地图



加群互动都是公益免费的。如果你想加入深圳公租房、安居房、可售型人才房群,请关注公众号“公租安居人才房(ID:fengyun_zhidao)”回复关键词加群,或者长按扫码添加微信“租住小帮手”备注具体群。商务推广也可联系此号。

每天发布深圳三大公共住房动态:3折公租房、5折安居房、6折人才房
点击下方名片,关注公租安居人才房

