点击上方“公租安居人才房”,选择“关注”
实时获取深圳公租房、安居房、人才房消息!
...选择“设为星标”,关键时刻,不会错过!

官方选房通告来了!
详见后文!






选房地址导航
深圳市龙岗区南湾街道平朗路万国城B座4层
选房注意事项
(一)认购申请家庭应当按照选房通知书规定的时间,携带选房通知书、本人身份证原件以及申请人或共同申请人的储蓄卡(余额超过人民币2万元,用于缴纳2万元认购定金)到达指定地点参加选房。
(二)认购申请家庭选定房号后,应按规定当场缴纳认购定金人民币2万元,并签订认购协议书。
(三)选房期间,每日选房工作结束后,于当日24:00前,认购申请家庭可登录深圳市住房和建设局网站→政务服务→服务主题→住房保障服务→住房保障服务主页→选房结果公示专栏查看选房结果。
(四)认购申请家庭委托其他人选房的,被委托人须提供经公证的选房委托书原件和被委托人身份证原件。
(五)已选房的认购申请家庭应按照认购协议书的约定按时缴纳购房款并签订买卖合同。未在规定时间内签订买卖合同的,视为放弃本次认购。
以上仅是个人的一些选房观点,有需要的朋友可以作为购房参考看看,具体的还是要根据自己的喜好来选啦!
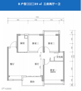
这个项目还是建议大家把握住上车的机会,毕竟最大的优势就是价格,均价1.48万/㎡,两房总价区间为92-110万,三房总价区间为120-140万,月供基本上是3200~4200元左右,对于安家深圳来说再安逸不过了!要选房的朋友或者未来打算入手的朋友有需要的可以加入下方的交流群,随时在群里沟通项目最新消息!
祝各位选房顺利!
以下为住建局官网通告全文:

根据《深圳市住房保障署关于帆湾海寓(第二批次)、东岸雅居、超核紫芸府等三个项目安居型商品房选房的通告》以及《深圳市住房保障署关于帆湾海寓(第二批次)、东岸雅居、超核紫芸府项目安居型商品房认购资格核查结果的公示》相关规定,现决定启动帆湾海寓(第二批次)、东岸雅居、超核紫芸府等三个项目安居型商品的选房签约工作,有关事项通知如下:
一、选房有关事项
按照《深圳市住房保障署关于帆湾海寓(第二批次)、东岸雅居、超核紫芸府等三个项目安居型商品房选房的通告》确定的选房名单,选房时间、场次及地点等事项分别安排如下:
本批次住房A队列(两房)和B队列(三房)同时开展选房。
(一)入围及候补入围认购申请家庭的选房时间
A队列(两房)入围及候补入围认购申请家庭的选房时间为2023年11月29日至2023年12月1日;B队列(三房)入围及候补入围认购申请家庭的选房时间为2023年11月29日和2023年11月30日,房源选完即止,具体选房场次及时间安排详见附件1、2。入围及候补入围认购申请家庭应于2023年11月28日9:00起进入深圳市住房和建设局网站一>“政务服务”一>“服务主题”一>“住房保障服务”一>“住房保障服务主页”一>“打印选房通知书”,在线打印选房通知书。
(二)递补名单中认购申请家庭的选房安排
入围和候补入围认购申请家庭选房结束后,如有剩余房源,将由递补名单中的认购申请家庭按照实际排位顺序依次递补选房,剩余房源选完即止。
A队列(两房)递补认购申请家庭的选房时间为2023年12月2日;B队列(三房)递补认购申请家庭的选房时间为2023年12月1日上午,具体选房场次及时间安排详见附件1、2。递补认购申请家庭可于2023年11月28日9:00起登录深圳市住房和建设局网站—>“政务服务”—>“服务主题”—>“住房保障服务”—>“住房保障服务主页”—>“打印选房通知书”,在线打印选房通知书。
(三)选房地点安排
深圳市龙岗区南湾街道平朗路9号万国城B座4层。选房交通指引详见附件3。
二、选房规则
关于选房规则及有关提示请查阅《深圳市住房保障署关于帆湾海寓(第二批次)、东岸雅居、超核紫芸府等三个项目安居型商品房选房的通告》。
三、注意事项
(一)认购申请家庭应当按照选房通知书规定的时间,携带选房通知书、本人身份证原件以及申请人或共同申请人的储蓄卡(余额超过人民币2万元,用于缴纳2万元认购定金)到达指定地点参加选房。
(二)认购申请家庭选定房号后,应按规定当场缴纳认购定金人民币2万元,并签订认购协议书。
(三)选房期间,每日选房工作结束后,于当日24:00前,认购申请家庭可登录深圳市住房和建设局网站→政务服务→服务主题→住房保障服务→住房保障服务主页→选房结果公示专栏查看选房结果。
(四)认购申请家庭委托其他人选房的,被委托人须提供经公证的选房委托书原件和被委托人身份证原件。
(五)已选房的认购申请家庭应按照认购协议书的约定按时缴纳购房款并签订买卖合同。未在规定时间内签订买卖合同的,视为放弃本次认购。
四、项目咨询电话
帆湾海寓项目咨询电话:0755-86681033,接听时间:9:00-18:00。
东岸雅居项目咨询电话:0755-28233366,接听时间:9:00-18:00。
超核紫芸府项目咨询电话:4006028888,接听时间:9:00-18:00。
附件:
1、帆湾海寓(第二批次)、东岸雅居、超核紫芸府等三个项目A队列入围、候补入围、递补认购申请家庭选房时间安排表

2、帆湾海寓(第二批次)、东岸雅居、超核紫芸府等三个项目B队列入围、候补入围、递补认购申请家庭选房时间安排表

3、帆湾海寓(第二批次)、东岸雅居、超核紫芸府等三个项目安居型商品房选房交通指引和注意事项
深圳市贝添利电子有限责任公司
深圳市华侨城东岸置业有限公司
深圳市润朝房地产有限公司
2023年11月27日

《深圳市贝添利电子有限责任公司、深圳市华侨城东岸置业有限公司、深圳市润朝房地产有限公司关于帆湾海寓(第二批次)、东岸雅居、超核紫芸府等三个项目安居型商品房选房有关事项的通知》已在深圳市住房和建设局网站发布。现就帆湾海寓(第二批次)、东岸雅居、超核紫芸府等三个项目安居型商品房(以下简称“本批次住房”)的选房相关事项通告如下:
一、选房名单和排位
经审核,本批次住房合格认购申请家庭共计6467户。根据《深圳市住房保障署关于帆湾海寓(第二批次)、东岸雅居、超核紫芸府等三个项目安居型商品房配售的通告》,按照1:2比例确定A队列(认购两房户型的选房队列)入围认购申请家庭1307户,候补入围认购申请家庭1307户,递补认购申请家庭2583户;B队列(认购三房户型的选房队列)入围认购申请家庭483户,候补入围认购申请家庭483户,递补认购申请家庭304户。具体名单及排位详见附件1-6。
关于选房场次及时间安排,请查阅《深圳市贝添利电子有限责任公司、深圳市华侨城东岸置业有限公司、深圳市润朝房地产有限公司关于帆湾海寓(第二批次)、东岸雅居、超核紫芸府等三个项目安居型商品房选房有关事项的通知》。
二、选房规则
(一)认购申请家庭如已签订其他保障性住房项目认购协议书,且认购协议书仍有效的,不能参加选房。
(二)认购申请家庭只能选择其所在选房队列及其认购意向项目中的一套住房,不能选择其他队列的房源。
(三)认购申请家庭应在规定的选房场次开场前到达选房现场签到等待选房。已签到的认购申请家庭选房排序到位,经现场呼叫三次仍未到场的,视为放弃其选房顺序。认购申请家庭因未签到错过其选房顺序,但在当日选房结束前到达现场签到,可在签到当场选房结束后按原选房排位的先后顺序依次补选房,房源选完即止。选房排序到位且其所在选房队列及其认购意向项目有待选房源但未选定住房的,均视为主动放弃本次选房。
(四)认购申请家庭已选定住房但未在当日选房结束前签订认购协议书,或已签订认购协议书但在当日选房结束前书面声明放弃所选定住房的,视为主动放弃本次选房。
(五)同一队列选房过程中当日弃选房源的安排:
1.上午场次的认购申请家庭选定住房后,如在当日下午场次开场前书面放弃所选住房,且当日下午场次房源所属项目仍有待选房源的,其所放弃的住房纳入当日下午场次待选房源。
2.除上述第1点情形外,若房源所属项目的住房在当日选房场次未全部被选定,当日选房的认购申请家庭在当日规定选房时间结束前所放弃的住房纳入次日待选房源。
3.若房源所属项目的住房在当场次全部被选定,当日的弃选住房在当日规定选房时间结束后,先由当日排在最后选定住房的家庭之后的无房可选家庭,按照选房排位的先后顺序依次选房,若未被选定,再由错过选房顺序但在当日选房结束前到达现场签到的家庭按原选房排位的先后顺序依次补选房,补选后若仍有剩余房源,纳入次日待选房源。
(六)租住市本级保障性住房的认购申请家庭,在签订安居型商品房认购协议书时,须一并办理租住住房延期退房相关手续。租住区级保障性住房的认购申请家庭,在签订安居型商品房认购协议书后,应及时咨询所在区的住房保障部门办理租住住房延期退房的相关手续。
三、其他提示
(一)选房名单发布后至签订买卖合同前,经复核不再符合认购申请条件的,不得参加选房或签订买卖合同。
(二)认购申请家庭放弃选房达到三次,或认购申请家庭签订认购协议书后未在规定时间内签订买卖合同达到两次的,作退出轮候册处理,原轮候排序作废。
(三)所有安居型商品房集中配售后如有未被选定的房源或认购家庭选定住房后退出的房源(以下统称为“未售出房源”),将采用“常态化受理,批次审核”方式,按照本批次住房配售及选房通告规定的配售对象、配售户型面积标准、选房方式、选房规则等规定,以半年为周期开展常态化配售工作,房源全部选完后,常态化受理工作即止。具体程序如下:
1.在册轮候家庭及领军人才家庭可在每次集中选房结束后,分别在每年的1月和7月第一个工作日9:00后,登录深圳市住房和建设局网站提交未售出房源认购申请,认购受理时间为8个工作日,受理截止时间为当月的第8个工作日18:00,有认购意向的家庭应在认购截止日前提交认购申请。所有安居型商品房首次配售后的未售出房源(包括后续新供应项目的未售出房源)等相关信息可登录深圳市住房和建设局网站查询。
2.认购受理截止后,深圳市住房保障署将对认购申请家庭进行资格审核、公示及组织选房。认购资格审核结果公示和选房通告将在深圳市住房和建设局网站公布,认购申请家庭须密切留意。
本批次住房选房结束后,未售出房源按照上述常态化受理程序配售。
常态化配售程序及规则如有调整的,将另行通知。
(四)业务咨询地址及电话:
深圳市住房保障署联系地址:福田区红荔西路莲花大厦东面一楼(深圳市住房保障署联系服务群众工作室),业务咨询电话:0755-88631666。
(五)市民如发现违法违规违纪线索,可通过来电、来信、来访等方式向深圳市住房保障部门投诉、举报。
附件:
1、帆湾海寓(第二批次)、东岸雅居、超核紫芸府等三个项目安居型商品房A队列入围认购申请家庭名单及排位
2、帆湾海寓(第二批次)、东岸雅居、超核紫芸府等三个项目安居型商品房A队列候补入围认购申请家庭名单及排位
3、帆湾海寓(第二批次)、东岸雅居、超核紫芸府等三个项目安居型商品房A队列递补认购申请家庭名单及排位
4、帆湾海寓(第二批次)、东岸雅居、超核紫芸府等三个项目安居型商品房B队列入围认购申请家庭名单及排位
5、帆湾海寓(第二批次)、东岸雅居、超核紫芸府等三个项目安居型商品房B队列候补入围认购申请家庭名单及排位
6、帆湾海寓(第二批次)、东岸雅居、超核紫芸府等三个项目安居型商品房B队列递补认购申请家庭名单及排位
深圳市住房保障署
2023年11月27日
教育资讯深圳市 (楼盘学校、教育补贴,新增学校、招生办法,学区划分,积分办法,录取积分等)
特别说明:本文由【公众号•公租安居人才房】编辑整理发布,转载请注明!
—————————————————————
来源:深圳市住建局开发商等主流网站和媒体
(如属原创侵权,请联系编辑删除相关内容)

深圳安居房地图


加群互动都是公益免费的。如果你想加入深圳公租房、安居房、可售型人才房群,请关注公众号“公租安居人才房(ID:fengyun_zhidao)”回复关键词加群,或者长按扫码添加微信“小帮手”备注具体群。商务推广也可联系此号。

【土川科技】公租安居人才房,锋哥助你选好房!
点击下方名片,关注公租安居人才房

