点击上方“公租安居人才房”,选择“关注”
实时获取深圳公租房、安居房、人才房消息!
...选择“设为星标”,关键时刻,不会错过!


♪
官方通告原文

根据《深圳市保障性住房条例》《深圳市公共租赁住房管理办法》(以下简称“第352号令”)等有关规定,龙岗区住房和建设局供应公共租赁住房618套面向龙岗区户籍在册轮候人进行配租,本次认租时间为2024年7月2日9:00至2024年7月11日18:00(共10天),现就有关配租事项通告如下:
一、房源概况
(一)荷棠里
1.基本情况
项目位于龙岗区坂田街道布龙路605号,共145套房源,均为二房户型(建筑面积约64-66㎡)。
2.配租标准
三人及以上家庭可选本项目供应的房源。
3.基准租金标准
市场租金标准为55.87元/平方米/月。
按第352号令执行的基准租金标准为16.76元/平方米/月;
按《深圳市公共租赁住房轮候与配租暂行办法》(以下简称“原政策”)执行的基准租金标准为27.94元/平方米/月。
4.物业服务费
物业服务费暂定4.88元/平方米/月。
5.专项维修金
专项维修金为0.25元/平方米/月。
(二)百合世纪广场
1.基本情况
项目位于龙岗区布吉街道龙展路1号,共473套,其中一房258套(建筑面积约46㎡),二房215套(建筑面积约62㎡)。
2.配租标准
二人及以上家庭可认租一房户型,三人及以上家庭可选本项目供应的所有房源。
3.基准租金标准
市场租金标准为63元/平方米/月。
按第352号令执行的基准租金标准为18.9元/平方米/月;
按《深圳市公共租赁住房轮候与配租暂行办法》(以下简称“原政策”)执行的基准租金标准为31.5元/平方米/月。
4.物业服务费
物业服务费暂定4.95元/平方米/月。
5.专项维修金
专项维修金为0.25元/平方米/月。
注:
1.项目暂定2024年11月交付,如有变动,另行通知。房屋均为简装,具体装修情况以现场交楼为准。
2.单套住房的实际建筑面积以竣工测绘报告为准。
3.单套住房的具体租金,在基准租金基础上,考虑楼层、朝向等因素修正确定,最终以合同签订时公共住房租金定价管理服务平台的定价为准。
4.上述公共租赁住房项目周边学校(含幼儿园)学位均处于紧张状态,无法完全满足承租住户适龄儿童入读需求,具体情况以龙岗区教育局或承租小区周边学校发布的信息为准。
5.物业服务费为现行标准,如有变更,按最新标准执行。
6.认租家庭自愿认租低于其家庭人口数对应建筑面积住房的,视为其已按标准享受住房保障。
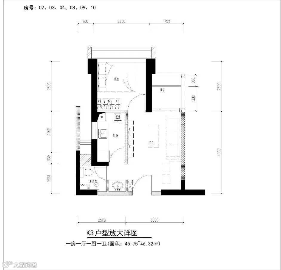
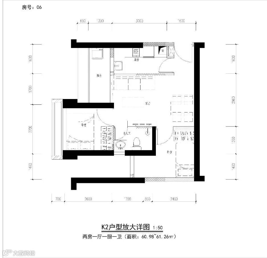
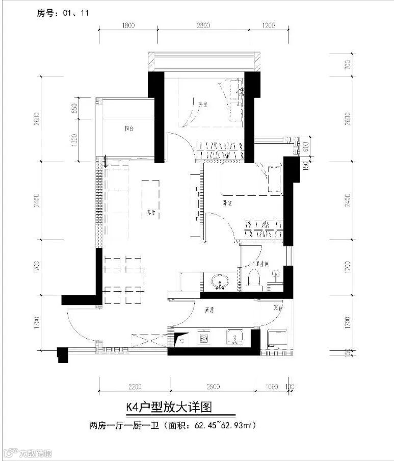
7.具体看房事项将于本批次后续公告中予以通知,项目户型图详见附件2。
二、配租对象
2024年6月28日18:00(含本日)前取得龙岗户籍,且已在深圳市保障性住房统一轮候系统登记为龙岗区户籍的公共租赁住房在册轮候人。
三、选房排位规则
根据户籍在册轮候人在深圳市公共租赁住房轮候库中的轮候排序,确定选房排位顺序。按照“第352号令”相关规定,龙岗户籍在册轮候特困人员、低保或低保边缘家庭,按照“应保尽保,优先保障”原则,优先安排选房,选房顺序依据市公共租赁住房轮候册的轮候排序确定。
第一序位为按我市公共租赁住房轮候册排位确定的特困人员、低保或低保边缘家庭;
第二序位为按我市公共租赁住房轮候册排位确定的入围认租家庭;
第三序位为按我市公共租赁住房轮候册排位确定的候补入围认租家庭;
第四序位为按我市公共租赁住房轮候册排位确定的递补认租家庭。
选房序位顺序依次为第一序位、第二序位、第三序位、第四序位。第二、三、四序位中,认租家庭如为特殊家庭(详见附件1)、有三个以上子女的家庭(至少有一个未满十八周岁的子女),其在相应序位中有优先选房权利,选房排位依据我市公共租赁住房轮候册的轮候排序确定。
四、配租程序
(一)网上认租
1.符合认租条件且有意向认租本批次公共租赁住房的龙岗户籍在册轮候家庭,登录进入深圳市住房和建设局网站—住房保障服务页面(http://zjj.sz.gov.cn/),点击页面的“公共租赁住房认租申请”,进入“广东省统一身份认证平台”页面,凭账号和密码登录轮候系统,确认符合计算配租面积条件的家庭人口数等信息,在线提交认租申请。
认租家庭在选房时只可选择意向户型的房源,意向户型房源将作为判定是否属于放弃选房行为的重要依据,请谨慎选择。
2.网上认租时间为:2024年7月2日9:00至2024年7月11日18:00(共10天)。在此期间未完成网上认租的,视为放弃认租本批次公共租赁住房(不计入实际弃选次数)。
3.认租期间认租家庭的住房、人口、户籍、居住证、婚姻、低保、残疾、抚恤定补优抚、烈士遗属等信息发生变化的,须于认租截止时间(2024年7月11日18:00)前完成信息变更事宜(完成变更指轮候家庭提交信息变更申请并通过主管部门审核,请认租家庭注意截止时间,尽早提交变更申请)。信息变更方式为登录深圳市住房和建设局网站“住房保障服务”在线提交信息变更申请或持变更事项的证明材料于工作日时间到龙岗区龙城街道飞扬路天昊华庭西门服务大厅提交变更申请。逾期不予受理。
注:本次认租资格的户籍核查时点为2024年6月28日18:00,其它信息核查时点为2024年7月11日18:00。
4.如经审核认租家庭计算配租面积的家庭人口数不符合意向房源配租条件且不存在异议的,视为放弃本次认租(不计入实际弃选次数)。
(二)认租时申请收入财产核对指引
认租家庭在提交认租申请阶段时,可自主选择按“第352号令”或“原政策”两类办法其中一类规定的轮候配租条件执行。
申请选择按“第352号令”进行轮候配租的,认租家庭需同步提交收入财产状况审核申请,通过收入财产状况审核的家庭,可按正文房源项目“第352号令”的基准租金执行,如为特殊家庭可按“第352号令”规定的情形减缴、全额免缴租金。未能通过收入财产状况审核的或选择按原政策的认租家庭,按正文房源项目“原政策”的基准租金执行。经民政部门认定,符合在保的特困人员、低保、低保边缘家庭、支出型困难家庭无需提交收入财产状况审核申请,自主选择两类办法其中一类即可。
选择按“第352号令”认租的家庭,应在认租截止时间2024年7月11日18:00前进入轮候系统提交家庭收入财产核对申请,系统完成填报后,可自行打印《深圳市公共租赁住房申请家庭经济状况申报表》及《承诺和授权书》,其中《承诺和授权书》需申请人、配偶、成年共同申请人携带身份证至业务受理窗口现场签署,受理地址:龙岗区龙城街道飞扬路天昊华庭西门服务大厅提交。受理时间:工作日9:00-12:00,14:00-18:00。逾期未提交系统申请、未按要求到上述地址提交材料、选择适用“第352号令”但不通过收入财产限额审核的认租家庭均视为选择适用原政策相关规定执行。
认租提交收入财产审核时,如发现信息瞒报、漏报、错报等情形导致被民政部门中止收入财产核对的认租家庭,在认租截止时间结束后不再受理补充申报,请认租家庭高度重视申报信息的真实性、准确性、合法性,并对申报信息内容负责。
(三)认租资格核查
认租结束后,我局将会同有关部门对认租家庭的资格进行核查,核查结果将在龙岗政府在线区住房和建设局子网站公示。
(四)公布认租名单和选房排位
核查结果公示结束后,合格家庭按照房源数1:2的比例,分别确定入围认租家庭(含第一序位)、候补入围认租家庭名单。选房排位1~618位的认租家庭作为入围认租家庭,排名619~1236位的认租家庭作为候补入围认租家庭,1237位及以后的认租家庭作为递补认租家庭。上述入围名单、候补入围名单、递补名单以及选房排位,将在选房通告发布时予以公布。
(五)选房和签约
对合格的认租家庭,由房源运营管理单位安排选房和签订租赁合同,具体事项和时间安排在后续选房通告发布时予以公布。
(六)政策咨询
地址:龙岗区住房保障管理中心210室(龙城街道如意路486号)
时间:工作日9:00-12:00,14:00-18:00
政策咨询电话:0755-28589935,0755-28589937
轮候系统操作咨询电话:0755-83679045
特殊家庭解析详见附件1。
五、投诉举报和监督
市民可通过来电、来信、来访方式向我局或区纪检监察部门投诉举报。为了便于调查核实,鼓励实名反映问题并提供联系方式,有关部门将按规定予以严格保密。
龙岗区住房和建设局地址:龙岗区中心城行政路2号建设大厦1402室,投诉举报电话:0755-28589851。
区纪检监察部门投诉举报电话以其公开的信息为准。
六、重要提示
(一)轮候人数众多,供应房源按照轮候排序选完即止,通知短信只作为辅助提醒,可能会因手机号码未及时更新、手机信号、短信屏蔽等因素导致未接收或延迟等现象,请认租家庭密切关注龙岗政府在线区住房和建设局子网站发布的相关信息,及时办理认租、选房、签约等事项,如未在规定时限内办理相关手续,视为自行放弃本次认租。
(二)认租家庭排序到位,其认租意向中有所选意向房源但未选房的,或者虽选定住房但未在选房当日结束前交付保证金并签订租赁合同的,按放弃本批次选房处理。累计放弃选房行为达到三次的,退出轮候册,原轮候排序作废;仍需申请公共租赁住房的,应当按照“第352号令”规定重新递交轮候申请。
(三)认租期间,请各认租家庭仔细核对家庭信息是否与现状维持一致,例如:非深户配偶的居住证是否为有效状态,如临近签注日期,可提前办理续签;作为共同申请人的成年子女是否具有深户;婚姻信息是否已更新等。本次认租受理截止后至签订租赁合同前,认租家庭的家庭人口数、住房、婚姻、户籍等情况发生变化的,仍应当如实申报;如不再符合申请条件的,将取消配租资格。
(四)申请人对申报信息的真实性、准确性、合法性负责。如提供虚假信息,无论在公示期间还是公示之后,一经发现,我局将依据《深圳市保障性住房条例》、第352号令等相关规定进行处理。
(五)本次配租房源的学区划分及学位、落户及办理居住证问题,请咨询龙岗区教育局及项目所属派出所意见。
(六)合格认租家庭选定住房并签订租赁合同的,视为已了解所选项目的项目交付时间、租金等信息并予以认可。
(七)选择按“第352号令”认租选定住房并签订租赁合同的家庭,续租时不再适用原政策。
(八)若本次配租结束后仍有剩余房源,我局将收回另行分配。
(九)通告未尽事宜由龙岗区住房和建设局负责解释。
附件:
1. 特殊家庭解答



← 左右滑动查看更多户型图 →



← 左右滑动查看更多户型图 →
深圳市龙岗区住房和建设局
2024年6月28日
● 2024年版公租房申请条件、申请流程、租金、配租面积等
教育资讯深圳市 (教育补贴,新增学校、招生办法,学区划分,积分办法,录取积分等)
特别说明:本文由【公众号•公租安居人才房】编辑整理发布,转载请注明!
—————————————————————
来源:深圳市住建局教育局等政府网站和媒体
(如属原创侵权,请联系编辑删除相关内容)
点击下方名片,关注公租安居人才房

光明区公租房群

深圳公租房地图

加群互动都是公益免费的。如果你想加入深圳公租房、安居房、可售型人才房群,请关注公众号“公租安居人才房(ID:fengyun_zhidao)”回复关键词加群(如:宝安区公租房)商务推广也可回复关键词商务合作。
【土川科技】公租安居人才房,锋哥助你选好房!

