点击上方“公租安居人才房”,选择“关注”“设为星标”
实时获取深圳公租房、安居房、人才房、共有产权房消息!
保障房项目对应学位情况请关注公众号“圳先锋”!

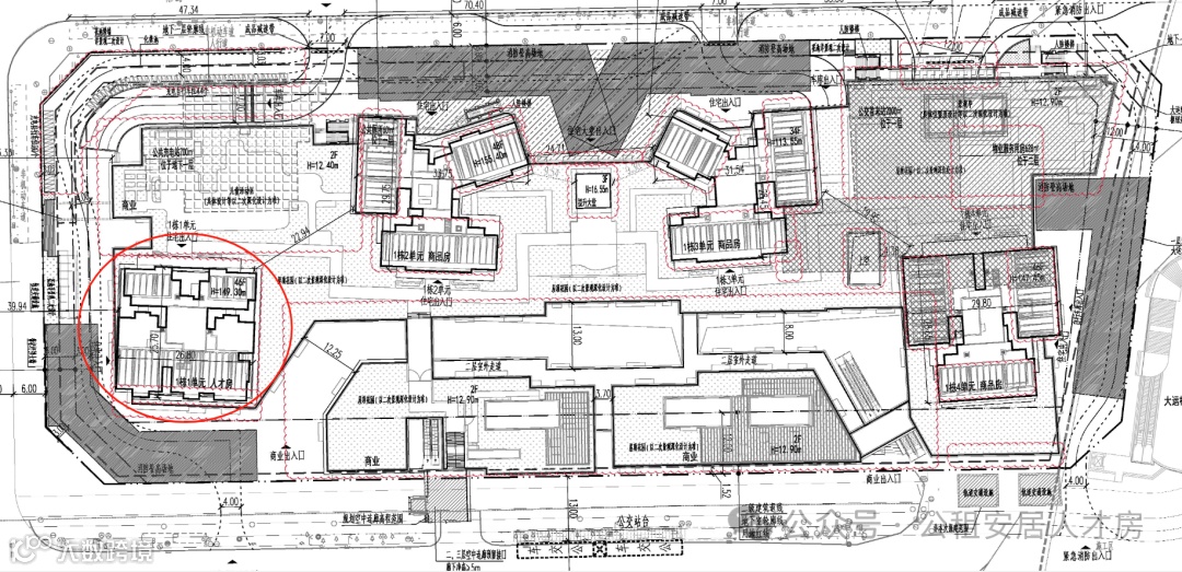
深铁阅云境广场位于龙岗区园山街道,宗地G01063-0264,共864套可售型人才房,两房540套、三房324套,拍地限均价30400元/㎡。
一期北地块(13-07)1栋1单元46层含可售型人才房287套,两房164套,三房123套。2025年1月3日1栋3单元商品房已取证,均价50789.11元/㎡,人才房6折约3w每平;1栋2单元2024年11月已取证。
南地块(13-08)含可售型人才房576套,两房432套,三房144套。

深铁阅云境人才房群






(深铁阅云境1栋2单元商品房)

一期北地块(13-07)人才房






● 2024版深圳可售型人才住房申请条件、申请资料、配售流程
● 安居房人才房取得完全产权计算公式等政策全文
● 教育资讯深圳市
● 配售及配租中的楼盘对应学校
● 学位申请指南
● 转学插班指南
● 学区划分
● 积分办法
● 往年录取积分
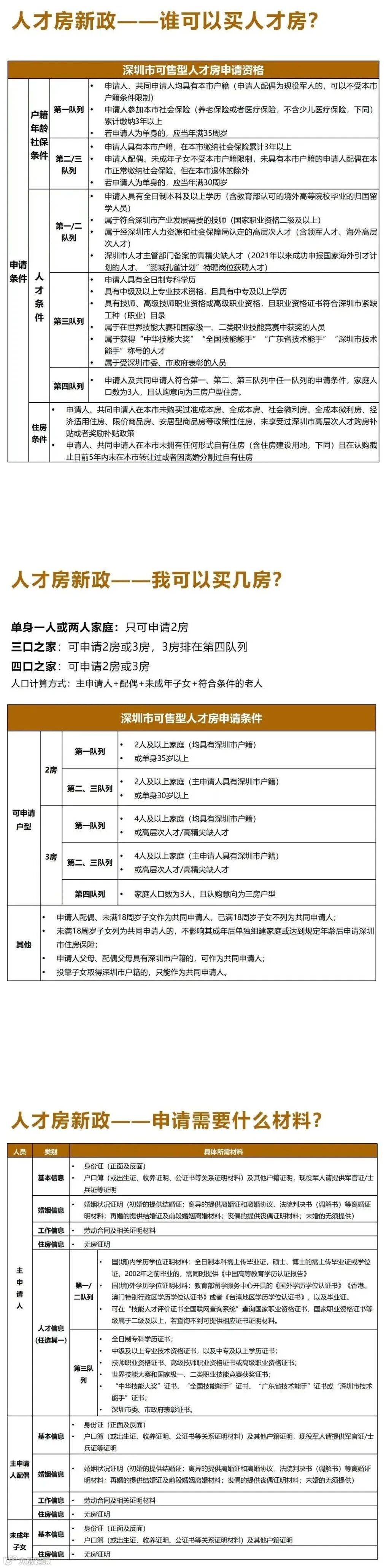
深圳市两房三房可售型人才房申请条件及申请资料

1.不动产查档单(无房证明)
2. 政策性住房信息结果单
3.社保查询
4.个人征信报告
5.学历证书查询
6.专业技术资格证书


—————————————————————
来源:深圳市住建局教育局等政府网站和媒体
(如属原创侵权,请联系编辑删除相关内容)

天萃世纪雅园人才房申购群
深铁璟城人才房群(第二批年后申购)

【土川科技】公租安居人才房,锋哥助你选好房!
点击下方名片,关注公租安居人才房

