点击上方“公租安居人才房”,选择“关注”
实时获取深圳公租房、安居房、人才房消息!
...选择“设为星标”,关键时刻,不会错过!


♪
官方来源
网上认租时间为:2024年10月30日10:00-11月7日18:00

01
众悦家园
一、项目基本情况
(一)地理位置
位于南山区桃源街道龙珠四路 88 号。
(二)交通条件
附近有地铁 7 号线龙井站。

(三)周边配套
众悦家园小区有配建商业。
(四)相关费用
物业服务费目前为 3.5 元/㎡·月,水电费按居民住宅收费标准执行。上述收费为现行标准,如有变更,按最新标准执行。
(五)学位情况
学位信息以南山区教育部门发布的相关信息为准。

二、特别提醒
(一)本次房源为以往入住后的腾退住房,房屋设施设备以实际入住情况为准。
(二)本项目不允许住户自行装修。严禁住户以下行为:改变建筑结构形式和功能布局、改变或影响建筑外立面、改变燃气管道或强电线路、拆除室内隔墙或入户门、原墙地砖、外窗及加装入户防盗门等。
(三)购买家具家电前,为避免出现无法搬进的情况,请先行测量门洞尺寸及实物摆放位置尺寸。
(四)该项目停车较为紧张。
(五)燃气管道已铺装到户,住户初次使用管道燃气时,须向燃气公司申请开通后方可使用。本项目禁止使用瓶装燃气。
(六)楼层较低房源可能有商业等配套设施带来的不便影响。
(七)项目周边市政路有噪音、气味、灯光等环境影响。
三、项目照片(仅供参考,具体以实际为准)

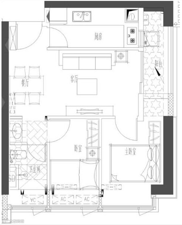
四、项目户型图示例及照片(仅供参考,具体以实际为准)
![]() |
|
|
|
|
|
02
冠铭花园
一、项目基本情况
(一)地理位置
冠铭花园位于南山区西丽街道茶光路 74 号。
2.公交路线:冠铭花园内配备有公交首末站,靠近茶光路有文光村站、茶光石鼓路口站及沙河西路上的茶光 1站等公交站线路。
二、特别提醒
(一)本次房源为入住后的腾退住房,房屋设施设备以实际入住情况为准。
(二)本项目不允许住户自行装修。严禁住户以下行为:改变建筑结构形式和功能布局、改变或影响建筑外立面、改变燃气管道或强电线路、拆除室内隔墙或入户门、原墙地砖、外窗及加装入户防盗门等。
(三)购买家具家电前,为避免出现无法搬进的情况,请先行测量门洞尺寸及实物摆放位置尺寸。
(四)7 栋 C 座住房设计无独立阳台,且二房一厅户型次卧空间较小。
(五)燃气管道已铺装到户,住户初次使用管道燃气时,须向燃气公司申请开通后方可使用。本项目禁止使用瓶装燃气。
三、项目照片(仅供参考,具体以实际为准)
|
|

四、项目户型图示例及照片(仅供参考,具体以实际为准)
(一)单身公寓

(二)二房



03
山海逸居
一、项目基本情况
(一)地理位置
山海逸居位于南山区招商街道赤湾六路 18 号。
(二)交通条件
项目附近有赤湾地铁站,可乘坐地铁2、5、8号线,周边有天后宫公交车站。

(三)周边配套
项目配备底商,基本满足生活购物需求。项目东南侧有天后宫。
(四)相关费用
物业服务费目前为 2.8元/㎡·月,水电费按居民住宅收费标准执行。上述收费为现行标准,如有变更,按最新标准执行。
(五)学位情况
学位信息以南山区教育部门发布的相关信息为准。

二、特别提醒
(一)本次房源为入住后的腾退住房,房屋设施设备以实际入住情况为准。
(二)本项目不允许住户自行装修。严禁住户以下行为:改变建筑结构形式和功能布局、改变或影响建筑外立面、改变燃气管道或强电线路、拆除室内隔墙或入户门、原墙地砖、外窗及加装入户防盗门等。
(三)购买家具家电前,为避免出现无法搬进的情况,请先行测量门洞尺寸及实物摆放位置尺寸。
(四)本项目不利因素提醒:
1.本项目三面临市政路,相应楼栋有噪音、气味、灯光等环境影响。
2.本项目周边道路进出港货车较多,有交通、噪音、灰尘等较为严重的影响。
3.本项目周边存在市政路、其他建筑等施工未完成的情况,可能有交通拥堵、噪音、微震、粉尘等影响,建筑建成后可能对本项目造成视线遮挡、对视情况等影响。
4.本项目停车位紧张。
5.该项目不同房源之间的装修及配置标准不尽相同。
6.本项目禁止使用瓶装燃气。
三、项目照片(仅供参考,具体以实际为准)


四、项目户型图示例(仅供参考,具体以实际为准)
|
|
|
|
04
京基御领公馆
一、项目基本情况
(一)地理位置
京基御领公馆位于南山区桃源街道长源二街 15 号。
(二)交通条件
1.轨道交通:附近有地铁 5号线长岭陂站。
二、特别提醒
(一)本次房源为以往腾退住房,房屋设施设备以实际入住情况为准。
(二)本项目不允许住户自行装修。严禁住户以下行为:改变建筑结构形式和功能布局、改变或影响建筑外立面、改变燃气管道或强电线路、拆除室内隔墙或入户门、原墙地砖、外窗及加装入户防盗门等。
(三)购买家具家电前,为避免出现无法搬进的情况,请先行测量门洞尺寸及实物摆放位置尺寸。
(四)本项目不利因素提醒:
1.关于燃气。本项目单身公寓未设置燃气。一房一厅和二房一厅燃气管道已铺装到户,住户初次使用管道燃气时,须向燃气公司申请开通后方可使用。本项目住房禁止使用瓶装燃气。
2.项目北临留仙大道和 5号线地铁轨道,南靠铁路、东靠福龙路,相隔留仙大道距离约 100 米,可能产生噪音影响。
3.项目东侧、南侧靠塘朗山,山上存在墓地和高压线、变电站。
4.项目周边在建、待建用地,可能产生但不限于噪音、视觉、振动、烟尘、尾气等影响。
5.垃圾转运站位于半地下二层,可能有噪音及异味影响。
6.公交首末站设在半地下二层,将向外部开放使用,可能会有噪声及其他影响。
7.社区健康服务中心位于半地下一、二层,3栋楼下,将向周边居民开放使用,可能会有影响。
8.本项目配置有商业,可能产生噪音影响。
9.本项目车库、机房风井出地面部分,可能对周边住户产生噪音、废气等影响。
10.本项目塔楼电梯机房设置于屋面层,可能对顶层住户造成噪音影响。
三、项目照片(仅供参考,具体以实际为准)

四、项目户型图示例及照片(仅供参考,具体以实际为准)
(一)单身公寓

(二)一房一厅


(三)二房


|
|
|
● 2024年版公租房申请条件、申请流程、租金、配租面积等
● 深圳公租房轮候申请指南
● 深圳公租房轮候申请指南(续1)
● 教育资讯深圳市
● 配售及配租中的楼盘对应学校
● 学位申请指南
● 转学插班指南
● 学区划分
● 积分办法
● 往年录取积分
—————————————————————
来源:深圳市住建局教育局等政府网站和媒体
(如属原创侵权,请联系编辑删除相关内容)
点击下方名片,关注公租安居人才房
初审名单已公示,待签约
11月4日-8日签约,9日-10日递补签约
初审名单已公示,待选房
已选房,待选房结果公示
已截止受理,等候初审名单公示
已截止认租,等候初审名单公示
初审名单已公示,待选房
11月5日-7日签约,8日-10日递补签约
10月24日-11月6日受理
10月30日10:00-11月7日18:00认租
11月4日9:00-11月10日18:00认租
11月4日9:00-11月11日18:00认租
11月2日9:00-11月11日18:00认租
11月2日9:00-11月11日18:00认租

【土川科技】公租安居人才房,锋哥助你选好房!
















