点击上方“圳安居”,选择“关注”,并“设为星标”。土川为圳,圳安居是土川科技专注于深圳公租房、深圳保障性租赁住房、深圳安居房、深圳人才房、深圳共有产权房、及新政配售型保障房。保障房项目对应学位情况请关注公众号“圳先锋”!

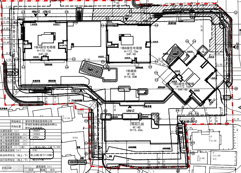
据【土川科技】锋哥获悉,景福花园位于罗湖区莲塘街道,楼下就是地铁 2/8 号线莲塘站,步行3分钟直达地铁站,20分钟直达福田CBD。小区有 1 栋 A、B、C 座,都是 54 层的超高层,共 1089 套房源,其中人才房约337 套(约43-121㎡的一至四房)、回迁房约765套;还有1栋6班幼儿园。小区规划了 1165 个车位,地下 1159 个,地上 6 个,车位比超 1:1.07。项目对面就是罗湖老牌名校——罗湖外国语初中学校(西校区)。2025年3月人才房交付样板房装修工程招标,4月回迁房毛坯选房,人才房预计 2025 年第二季度配售。

核心优势:老牌名校+地铁+配套“三板斧”
1. 学区资源:名校罗湖外国语学校旁
【幼儿园】项目自带幼儿园等
【小学】莲南小学、莲南小学莲馨校区、仙桐实验小学、莲塘小学、安芳小学、罗芳小学、新秀小学、罗外教育集团罗湖外语小学等
【初中】罗外教育集团罗湖外语初中学校等
结语:学区+地铁的“硬通货”,适合“务实派”购房者
景福花园人才房的核心价值在于罗湖外国语学校学区房+地铁口物业+预计4万元/㎡单价,是深圳核心区为数不多的“性价比之选”。若是追求教育质量、通勤便利的刚需家庭,且能接受人才房的流动性限制,该项目值得重点关注。

● 2024版深圳可售型人才住房申请条件、申请资料、配售流程
● 安居房人才房取得完全产权计算公式等政策全文
● 教育资讯深圳市
● 配售及配租中的楼盘对应学校
● 学位申请指南
● 转学插班指南
● 学区划分
● 积分办法
● 往年录取积分



1.不动产查档单(无房证明)
2. 政策性住房信息结果单
3.社保查询
4.个人征信报告
5.学历证书查询
6.专业技术资格证书


人才房系统申请入口: 深圳住建局住房保障页面 https://zjj.sz.gov.cn/ztfw/zfbz/的 “面向人才配售住房申请”




特别说明:本文由【公众号•圳安居】编辑整理发布,转载请注明!
—————————————————————
来源:深圳市住建局教育局等政府网站和媒体
(如属原创侵权,请联系编辑删除相关内容)
深铁璟城人才房744套开放样板房



【土川科技】深圳租房买房,找锋哥更实惠!
点击下方名片,关注

