点击上方“圳安居”,选择“关注”,并“设为星标”。土川为圳,圳安居是土川科技专注于深圳公租房、深圳保障性租赁住房、深圳安居房、深圳人才房、深圳共有产权房、及新政配售型保障房。保障房项目对应学位情况请关注公众号“圳先锋”!

2025年5月8日,有市民咨询市住建局关于安居房“瑞璟湾居” 样品房后续处理问题,市住建局回复“2025年5月12日电话告知市民瑞璟湾居的样板房会根据宝安区住房和建设局的要求,等实际交付以后转为现售再拿出来售卖。”
据悉,瑞璟湾居安居房预计交付使用时间为2026年6月30日前,也就是说样板房(1栋一单元301号房、303号房、304号房和二单元404、 407号房)售卖要等明年了,至于这个项目少量退出房源是否也是现房后再售未知。
一、项目概况
瑞璟湾居位于深圳市宝安区新安街道海秀路以北、金科路以西,地处前海宝安中心区域,与大铲湾隔路相望,是目前为止普遍认为的最好地段安居房。不过要注意,这个项目是独栋地块,自身没什么配套,车位不足,停车比较麻烦,新购房家庭积分不足以上最近的学校。
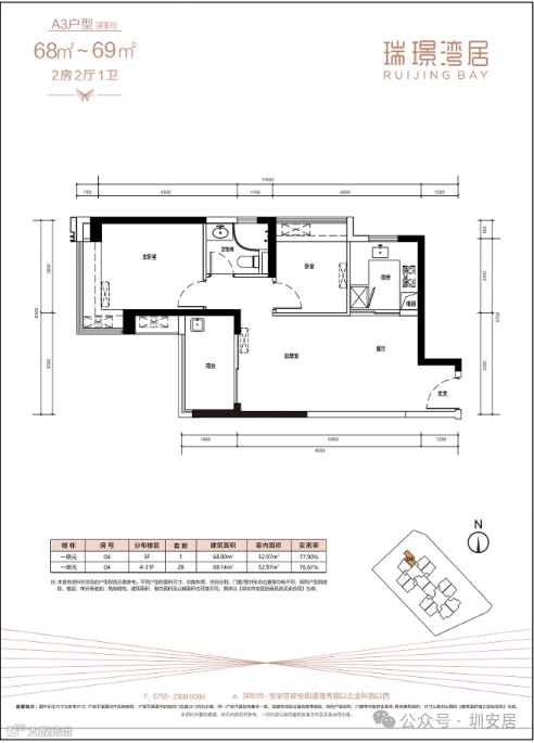
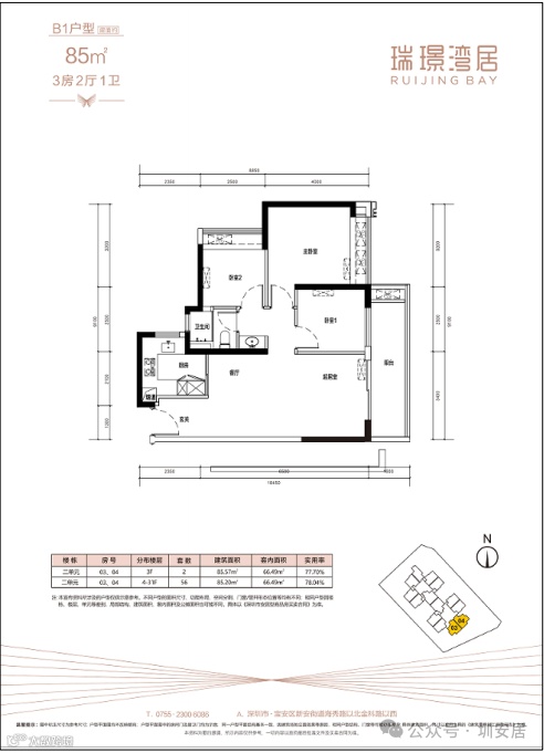
瑞璟湾居项目用地面积5245.23,总建筑面积约4.66万平方米,容积率6.0,绿化率25%,机动车位数328个,3梯7户。由深圳市瑞伦房地产开发有限公司开发,规划住宅共400套,其中395套已售罄,但有少量退出房源待售,剩余5套(两房3套,三房2套)作为样板间等实际交付后转为再房售卖。项目配售均价为45745.43元/㎡(按建筑面积计算,含装修),预计2026年6月30日前交付使用。
二、VR&平面图&户型图
三、配套
1. 交通配套
项目距离11号线宝安地铁站步行距离约925米,距离5号线宝华地铁站约902米。
2. 教育资源
项目未配建幼儿园,2024年学区划分在以下学校的招生范围之内:
【小学】海韵学校(小学部)、滨海小学(集团)海裕小学、宝安小学
【初中】新安中学(集团)第一实验学校(初中部)、海韵学校(初中部)、宝安区实验学校(集团)海旺学校(初中部)、宝安中学(集团)海天学校(初中部)
其中,海韵学校、宝安小学、宝安中学(集团)海天学校(初中部)往年录取积分都是比较高的,新购房家庭不一定上得了。

3. 其他配套
项目自带约3000平的底商,500米范围内有滨海文化公园,1公里内覆盖前海壹方城、前海HOP天地等商业综合体,满足日常购物、娱乐需求。此外,项目邻近规划中的“湾区之眼”文化配套,未来文化资源将进一步丰富。
● 安居房取得完全产权计算公式等政策全文
● 教育资讯深圳市
● 配售及配租中的楼盘对应学校
● 学位申请指南
● 转学插班指南
● 学区划分
● 积分办法
● 往年录取积分
1.不动产查档单(无房证明)
2.社保查询
3.个人征信报告


安居房系统申请入口: 深圳住建局住房保障页面 https://zjj.sz.gov.cn/ztfw/zfbz/的 “安居型商品房”下 “安居型商品房认购申请”



—————————————————————
来源:深圳市住建局开发商等主流网站和媒体
(如属原创侵权,请联系编辑删除相关内容)


预计5月配售,可提前看样板房

预计5月配售,可提前看样板房
点击下方名片,关注

