点击上方“圳安居”,选择“关注”,并“设为星标”。土川为圳,圳安居是土川科技专注于深圳公租房、深圳保障性租赁住房、深圳安居房、深圳人才房、深圳共有产权房、及新政配售型保障房。保障房项目对应学位情况请关注公众号“圳先锋”!

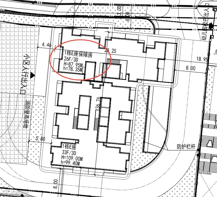
据【土川科技】锋哥获悉,珠光和山悦花园位于南山区桃源街道,原规划名称为珠光村城市更新单元一期A项目03-02地块(曾用名:风格城事花园)。1栋E座共26层规划168套保障房(房源类型暂时未定,保租房公租房都有可能)。1栋A、B、C座是商品房,1栋D座是商业共4层,2栋是9班幼儿园。小区总房源795套,含回迁房627套,停车位地上22辆/地下827辆。项目7 号线珠光站约 400 米,2公里范围内还规划有西丽高铁站。
交通配套:珠光和山悦花园项目距离 7 号线珠光站约 400 米,茶光站约 700 米,从茶光站出发一站可到西丽地铁站(5 号线和 7 号线的换乘站),2 公里范围内还规划有西丽高铁站。位于沙河西路以东、龙珠大道以北,通过沙河西路、龙珠大道等城市主干道,可快速连接北环大道、深南大道等,方便驾车前往福田、罗湖等区域。
商业配套:周边拥有华润万家、天虹商场、半里・花海生活广场、益田假日里、华润万象天地、京基百纳广场等多元商圈,能满足购物、餐饮、娱乐等全维度消费需求。
教育配套:项目自身规划配建幼儿园,周边有南二外平山小学、西丽小学、南山文理实验学校、珠光小学,深圳市南山区文理实验学校等。
其他配套:项目背靠塘朗山,西、南望大沙河绿化带景观,周边还有大沙河生态长廊、喜乐亭等公园,为居民提供了休闲散步、亲近自然的好去处。南侧约 600 米处有在建的大沙河文体中心综合体,建成后将聚集不同类型的娱乐活动室,功能包含健身、体育、娱乐、文化设施。
● 深圳市人才安居办法(2020年3月7日深圳市人民政府令第326号修正)
● 深圳市保障性租赁住房管理办法
● 教育资讯深圳市
● 配售及配租中的楼盘对应学校
● 学位申请指南
● 转学插班指南
● 学区划分
● 积分办法
● 往年录取积分
保租房系统申请入口: 深圳住建局住房保障页面 https://zjj.sz.gov.cn/ztfw/zfbz/的 “保障型租赁住房认租申请”

特别说明:本文由【公众号•圳安居】编辑整理发布,转载请注明!
—————————————————————
来源:深圳市住建局教育局等政府网站和媒体
(如属原创侵权,请联系编辑删除相关内容)


点击下方名片,关注

