
前言
不好好布局,分分钟让你损失10个亿!
超高层写字楼如何合理安排空间布局,使功能的完备性与使用率之间达到最佳契合点是核心需要考虑的问题。
因此需要主要讨论以下几个问题:
核心筒及各个功能空间的占比。
核心筒空间布局原则与方法。
核心筒空间布局实例分析 。
项目选自在建及已完工项目,新规范实施后,防火分区扩大到3000平方米,对于超高层写字楼标准层有利,理论上可减少一部消防楼梯,值得注意。
核心筒及各个功能空间的占比
一 300米以上写字楼数据统计
首先我们先看一组数据统计,统计核心筒中各功能空间的面积大小及所占比例,详见下表1。




从上表的统计数据可见:
(1)核心筒占标准层面积20%~30%,中位数为25%。
(2)电梯井道是核心筒中面积需求最多的功能空间,约占核心筒总面积的30%左右。
(2)各种设备机房和管道竖井是核心筒中面积需求第二的功能空间,约占核心筒总面积的15%;这其中又以空调机房的面积需求最大约占10%。
(3)卫生间、清洁间和茶水间等是核心筒中面积需求第三的功能空间,一般约占核心筒总面积的10%~12%。
(4)疏散楼梯是核心筒中面积需求第四的功能空间,一般约占核心筒总面积的7%。
(5)交通通道作为必要的联系空间,一般约占核心筒总面积的5%。
占比数据分析图如下。

二 200米左右写字楼数据统计
200米左右写字楼从其使用率和经济性上依然是市场的主流,能较好兼顾土地利用效率及功能实用便利性,本文将这类写字楼作为重点讨论。为使数据更有对比性,笔者将同一地区200米左右的写字楼数据进行了对比(均为VAV空调系统)。
表2 200米左右写字楼数据统计

占比数据分析图如下

从上表及图的统计数据可见:各项数据与300米以上建筑并无太大区别,或许和项目样本本身有关系。
核心筒空间布局原则
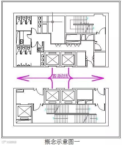
一 实现核心筒向办公区的交通动线通透、直接、高效
根据相关文章的分析,总结出除了要考虑三个基本功能(建筑竖向及水平疏散、结构支撑、机电收纳)之外,还需要考虑项目建成后用户如何使用,通常选择从电梯厅向办公区的通道贯通型如下图(概念示意图一)。

二 使平行于电梯厅的两条通道上没有机电用房的开口
典型核心筒会呈现“日”字形的典型主通道——中间一横是电梯厅,周边是环绕核心筒的环通通道。尽量使平行于电梯厅的两条通道上没有机电用房的开口。
解决物业的痛点:
(1)物业招租或者出售中经常碰到整层出租、半层出租或者购买的情况,如果碰到这种情况,租户或者买家的直接动作就是把除了必须的消防通道让出之外,会把其余的主通道全部并入办公区,用户利益最大化的结果。在这样的情况下,物业如果要检修空调机房、水表间、电气机房等机电用房的时候需要提前和租户进行电话预约,很不方便。
(2)用户不方便,需要忍受工作时间物业人员带着工具进入机电用房检修的不便利,某种程度上拉低了整体建筑的品质和客户的体验,也制造了管理上的不便利。
建议在机电用房及管井的开门规划上,机电专业和建筑专业需要共同努力,尽力避免在平行于电梯厅通道的两条主通道上开设机电用房的开门设置,如下图阴影区域(概念示意图二,根据实际项目略作修改)。

三 机电用房和管井的开门位置开在核心筒内部
(1)物业维护动线尽量和用户动线分开。这是两条基本不相干但是有关联的动线——用户动线是从电梯厅能高效直达办公区,物业动线是从货梯到达机房、管井进行运维,在此过程应力求不对用户造成干扰。
(2)但是两条动线又有联系的地方——卫生间保洁和电梯厅保洁。电梯厅和卫生间是用户最常使用到的空间,但是通常维保的工作都是在物业方面,因此也希望维保人员在不干扰客户的情况下能通过货梯直接到达楼层卫生间和电梯厅。
(3)解决的办法是——借用消防疏散通道。机电用房和管井的开门位置到底要开在哪里?——开在核心筒内部(如不能完全实现,尽量开在垂直于电梯厅通道的主通道上,如下图云线所示(概念示意图三)。

核心筒空间布局方法
一 确定核心筒形式
一般高层办公楼核心筒占标准层面积比20%~30%之间,当高层平面轮廓没有受到诸如用地大小、形状、建筑红线等诸多因素影响时,建议优先采用长宽比接近1的规则建筑,根据相关文章分析,随着核心筒高宽比的增加(对应核心筒占比增加),可以获得更经济的构件尺寸和结构材料用量。《高层建筑混凝土结构技术规程》9.2.1条提出:核心筒的宽度不宜小于筒体总高的1/12,通常高烈度区经济性更好的核心筒高宽比我们建议取值1/8~1/10,不宜超过1/12。

核心筒高宽比变化对应材料用量趋势曲线
二 确定空调机房是否外置
空调机房选择外置还是内置,将直接确定项目选择是“小“核心筒还是“大“核心筒方式,从200米写字楼数据技术经济分析如下
类别 |
优点 |
缺点 |
经济性 |
小核心筒 |
使用率高,灵活性好,中高区电梯取消后,外置机房可回归核心筒内 |
机房噪声大 很难局部走廊出租 |
中高区使用率提高1%~2%点 |
大核心筒 |
布局规整 物业管理便利 噪音小 |
中高区电梯取消后内部空间无法出租 |
偏低1%~2%点 |
三 电梯井道
由于电梯井道在核心筒中所需面积最大,垂直交通系统设计是超高层建筑优化核心筒关键中的关键。
建议电梯模块化设计,数据统计超高层写字楼建筑1600kg电梯为最常用、性价比最高的电梯型号,单台电梯井道净尺寸为L*W=2950mm*2950mm左右,布局以6台并列面对面布置为主,单台电梯井道净尺寸为L*W=8650mm*9500mm左右,可以此模块为基础进行布置。
1 |
2 |
3 |
电梯厅 |
||
4 |
5 |
6 |
4台电梯并排布置模块
1 |
2
|
电梯厅 |
|
3 |
4
|
三 其他区域
(1)设备机房、管道竖井需要结合业态功能、项目定位等进行适配设计,高效利用空间,合理预留。
(2)卫生间、清洁间等需要结合项目定位、客户定位进行适配设计,不建议过分压缩这部分面积,但也不需要过分配置。
(3)建筑体型应尽量方正而规整,避免异型空间带来的浪费(核心筒形状一般与建筑平面相符)。
(4)标准层面积的设置应经济合理,避免出现标准层面积超出规范一点而要多设一部疏散楼梯的情况。
核心筒空间布局实例分析
一 项目A分析
下面我们分析一下比较典型的”小“核心筒的项目A的布局。按照上文布置原则进行了复盘。
动线及区域图例

低区布置图

从中可以看出:
1)核心筒按照电梯6台模块式先确定高中低3个分区,第4个模块为消防电梯和疏散楼梯的组合,基本上做到了最小的核心筒形式。
2)左侧走廊可合并至租区,节省了面积,但是右侧鉴于机房外置开门,小核心筒很难做到有2面走廊可合并至租区。
3)客流动线与物业动线有一定交叉,难以避免。
中区布置图

从中可以看出:
1)中区由于低区电梯厅退出面积,空调机房布置进入核心筒,使使用率进一步提升。
高区布置图。

从中可以看出:
1)高区由于中、低区电梯厅退出面积,空调机房、卫生间布置进入核心筒,使使用率得到极大提高。高区核心筒占标准层的占比19.5%。大大提高了使用效率,如果为整层出租,是有很大优势。
优化建议
项目A是小核心筒比较极致的做法,有比较好的完成度,有一点点小瑕疵。
1)水管井在电梯核心模块内,如果放于核心筒外,或者其他区域,有进一步减小核心筒的可能性。
2)电梯核心模块内有风井道,由于风井道开口面较窄,引出管井后风管存在压低电梯厅净高的风险。如果放于核心筒外,或者其他区域,有进一步减小核心筒的可能性。

二 项目B分析
下面我们分析一下比较典型的”大“核心筒的项目B的布局。按照上文布置原则进行了复盘。
低区布置图

从中可以看出
1)核心筒按照电梯6台模块式先确定高中低2个分区,第4个模块为一个4台电梯单排布局,第4个模块为消防电梯和疏散楼梯的组合,是非常规整的合理布局。
2)平行于电梯厅的上下两侧走廊,没有机电用房开口,可合并至租区,节省了面积。
3)客流动线与物业动线基本分开,在走廊内完成,互不干扰。
4)得到了较高的面积使用率,核心筒占比24.1%。
中区布置图

高区布置图

从中可以看出:
1)中高区由于电梯的退出,面积无法转化为办公出租面积,这是大核心筒布局的痛点。
优化建议
项目B是大核心筒比较典型的做法,有比较好的完成度,基本找不出太多问题,鸡蛋里挑骨头的一点点小瑕疵。
1)疏散楼梯与消防电梯何用前室最小面积为10平方米,图中区域为11.5平方米,可以再优化一下。

项目A、B的比较总结
通过项目A、B的比较可以看出小核心筒项目A低区布置如果加上不能出租的走廊面积基本与大核心筒项目B的核心筒面积占比相差无几,但是优势在于中高区可由于电梯的退出,空调机房可引入核心筒内,使用率会有所提高。
大核心筒项目B无法做到这一点。因此各有利弊,需要取舍。
一 项目C分析
下面我们分析一下项目C的布局。按照上文布置原则进行了复盘。
低区布置图

中区布置图

从文初的数据对比可以看出项目C(含空调机房外置面积)后的核心筒占比31%,大大超过了项目A和B。是什么原因呢?
问题及优化建议
1)核心筒形状不规则。
2)客流动线和物业动线交叉。
3)如图问题1为进入空调机房设置的走廊末端不可合并入租区造成浪费。
4)如图问题2为电梯与疏散楼梯没有合用前室,浪费面积。
5)如图问题3电梯厅有机房开门,造成动线交叉。

总结
一 经济分析
套话就不说了,本人不是建筑师,但是数据不骗人的。
项目ABC以标准层2000平方米计算最大出租面积差值,北京核心地段按照单价10万/平方米计算。

这个数据是惊人的,项目C单层出售损失1368万!50层合计6.84亿!,年租金损失(50层楼计算)2463万,50年损失租金12.3亿,如果啊那后合理布置核心筒是多么的重要。
一句话,千万不要得罪设计师,出来混迟早是要还的,设计费根本就不叫事。
来源:远洋设计汇、地产杂货铺(作者:肖铁军)
本文系转载,文章内容仅代表作者观点,版权归原作者所有,如有侵权,请联系删除,我们会在第一时间处理


