点击上方“圳安居”,选择“关注”,并“设为星标”。土川为圳,圳安居是土川科技专注于深圳公租房、深圳保障性租赁住房、深圳安居房、深圳人才房、深圳共有产权房、及新政配售型保障房。保障房项目对应学位情况请关注公众号“圳先锋”!

据【土川科技】锋哥获悉,宝安汇和苑项目主体结构已于今年8月正式封顶,建成后将提供648套6折保租房,约35平一房492套,约70平两房132套,约90平三房24套。
这个项目距离12号线桥头西站451米左右,周边商业配套也是非常不错的,不过教育资源一般,按进度,有望明年供应。具体配租对象以住建局官方通告为准。
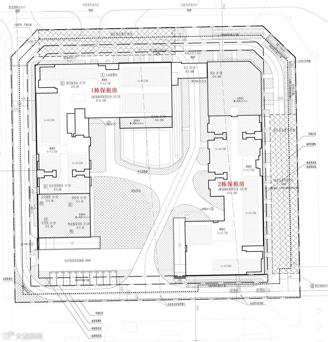
汇和苑位于宝安区福海街道和平社区,由深圳市福永经济发展有限公司开发,中建七局六公司承建。项目总占地面积10801.08平方米,总建筑面积52899.19平方米,规划建设2栋住宅楼,提供648套保障性租赁住房,户型涵盖单房至三房,满足不同家庭结构需求。
项目最大层数13层,容积率3.14,机动车位480个,社区内设有300平方米社区体育活动场地,3班幼儿园,以及2000平方米的商业,满足居民日常需求。
交通配套

● 深圳市人才安居办法(2020年3月7日深圳市人民政府令第326号修正)
● 深圳市保障性租赁住房管理办法
● 教育资讯深圳市
● 配售及配租中的楼盘对应学校
● 学位申请指南
● 转学插班指南
● 学区划分
● 积分办法
● 往年录取积分
保租房系统申请入口: 深圳住建局住房保障页面 https://zjj.sz.gov.cn/ztfw/zfbz/的 “保障型租赁住房认租申请”

特别说明:本文由【公众号•圳安居】编辑整理发布,转载请注明!
—————————————————————
来源:深圳市住建局教育局等政府网站和媒体
(如属原创侵权,请联系编辑删除相关内容)


点击下方名片,关注

