
买房 卖房 阿叔来帮忙!
✅【阿叔找房】栏目上线啦!
✅想要在北海买房但找不到好房源?阿叔在北海筛选了万套真房源,根据您的要求进行精准匹配!想要卖房但难出手?阿叔帮您宣传以及匹配超优质的买房者,助您快速出手!
✅想要买房、卖房,请联系客服微信:13768199149
【阿叔找房·第五期】来了!!
北海人喜欢的精装别墅来了
自带花园、环境优美、周边配套齐全
住着不要太舒服!
看看有没有你喜欢的?
👇👇👇
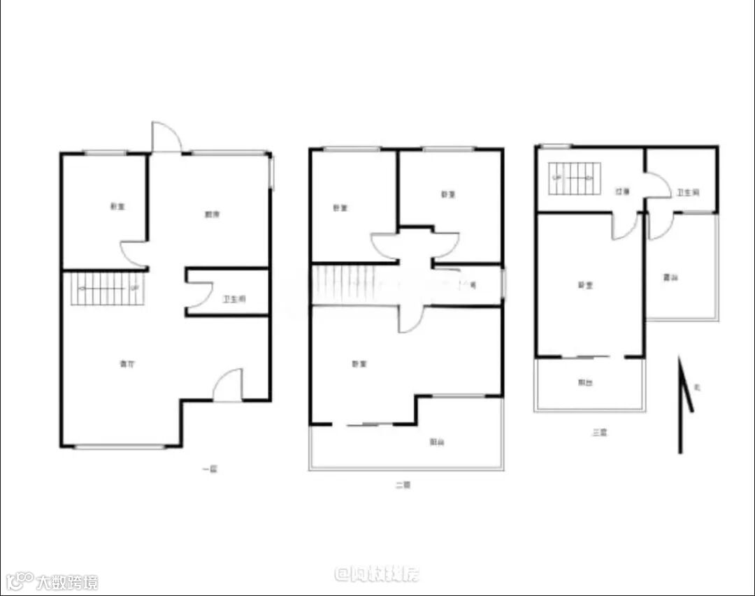
📍定位:银湾花园红河苑
📑户型:5-3-1-3
🔴面积:222.63㎡(+150㎡花园)
🚪朝向:东,南,北 楼层:1/3
💰售价: 238万(单价:10690元/m²)首付:15%
💡物业费:1元/平方
🏠房屋状态:空置
🔥房源特点:无抵押,三面光,满五唯一,精装修
⛲️小区配套:转盘花园,健身器材,休息小亭子
⛲️周边配套:北海第七中学,北海职业学院,博文高级中学,北海第二十六中学,市花公园
⏩平面图:

⏩实拍图:



⏩实拍视频:

🙍添加客服,预约看房
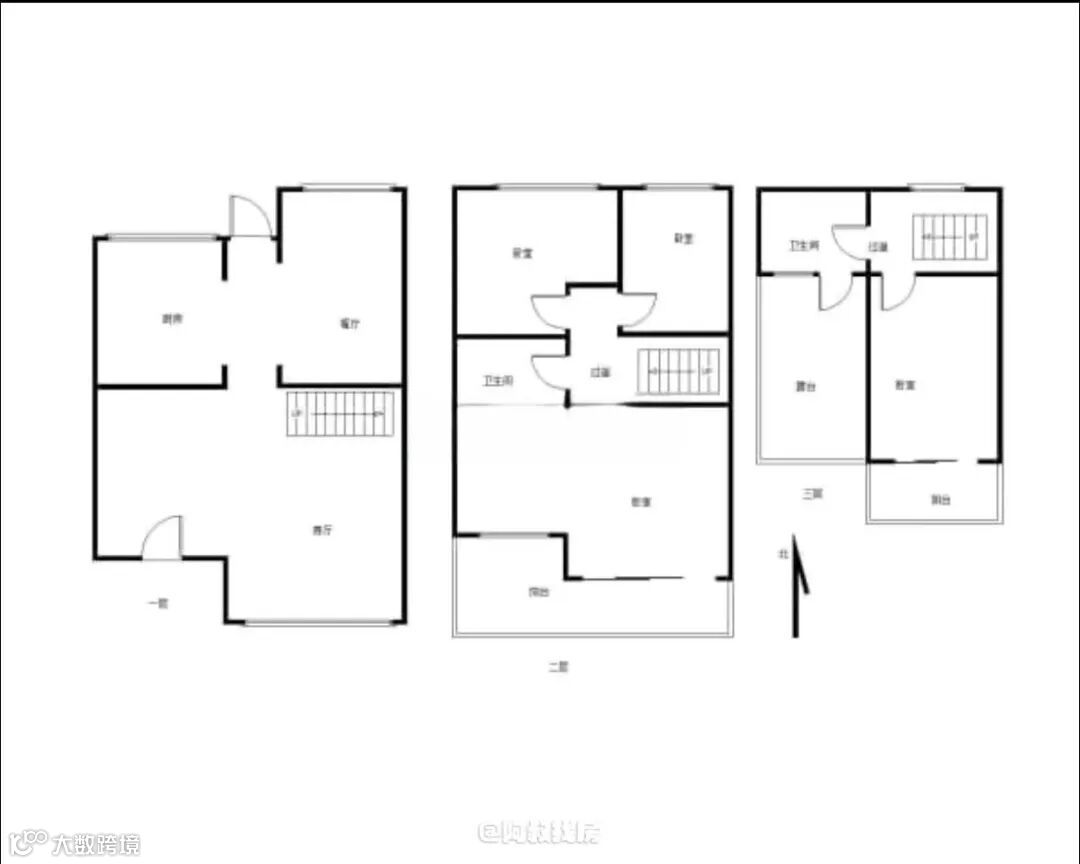
📍定位:银湾花园红河苑
📑户型:5-3-1-3
🔴面积:222.63㎡(+150㎡花园)
🚪朝向:东,南,北 楼层:1/3
💰售价: 238万(单价:10690元/m²)首付:15%
💡物业费:1元/平方
🏠房屋状态:空置
🔥房源特点:无抵押,三面光,满五唯一,精装修
⛲️小区配套:转盘花园,健身器材,休息小亭子
⛲️周边配套:北海第七中学,北海职业学院,博文高级中学,北海第二十六中学,市花公园
⏩平面图:

⏩实拍图:




🙍添加客服,预约看房
📍定位:海天花园(西藏路)
📑户型:9-3-1-3
🔴面积:322.5㎡
🚪朝向:南,西南,北 楼层:1/3
💰售价: 265万(单价:8217元/m²)首付:15%
💡物业费:1.2/平方
🏠房屋状态:空置
🔥房源特点:出入方便,三面光,满五唯一,精装修,自带花园
⛲️小区配套:别墅区,大型小区,物业管理好,占地面积大,出入方便
⛲️周边配套:小区门口就是花园,七中,菜市场,旁边有公交站
⏩平面图:

⏩实拍图:




🙍添加客服,预约看房
📍定位:怡景苑(四川路)
📑户型:8-2-1-4
🔴面积:269.45(赠送+200平方)
🚪朝向:南北 楼层:1/4
💰售价: 468万(单价:17369/m²)首付:15%
💡物业费:0.6元/平方
🏠房屋状态:自住
🔥房源特点:满五不唯一,采光好,精装修,无抵押,三面光,连排别墅
⛲️小区配套:在市中心,位置好
⛲️周边配套:大润发,和佳广场,海洋之窗,贵兴市场,高铁站,宁春城
⏩平面图:

⏩实拍图:



⏩实拍视频:

🙍添加客服,预约看房
📍定位:森海豪庭御景湾
📑户型:5-2-1-3
🔴面积:250㎡
🚪朝向:南北 楼层:1/2
💰售价: 399万(单价:15960元/m²)首付:15%
💡物业费:3元/平方
🏠房屋状态:空置
🔥房源特点:出入方便,两面光,满五唯一,精装修,自带花园
⛲️小区配套:别墅区,大型小区,物业管理好,占地面积大,出入方便
⛲️周边配套:万达广场,银滩,华侨中学,江尾公园,北海国际客运港,侨港风情街
⏩平面图:

⏩实拍图:



🙍添加客服,预约看房
- END -
➤内容来源:北海阿叔综合 | 版权归原作者所有
➤图文编辑:北海阿叔-豆腐|转载请注明
➤北海阿叔 商业推广联系:bh9584(请备注店名)

