
响堂山石窟是我国北齐王朝现存最大的石窟雕塑艺术宝库,属于北朝石窟艺术分期的第三期。在雕刻艺术上,上承北魏和东魏的技艺,下启隋唐新风,从而创造了具有我国民族风格和时代特点的石窟艺术。那时中国无名的艺术匠师们在掌握了自己祖先绘画、雕塑、建筑等传统技艺的基础上,吸收并融合了印度、犍驮罗佛教雕塑艺术的技法,经过了前两期的发展而逐渐水乳交融地溶汇于我国传统的雕塑艺术之中。石窟的形制、造像的形象、面目、服饰、花纹等基本上完成了民族化的过程。
响堂山石窟群拥有丰富的佛像,建筑结构,装饰细节以及许多的佛教刻经。这些内容不仅代表了当时多民族社会下的各种宗教思想和文化,而且体现了北齐皇室对佛教给予大力支持的成果。石窟的构思与设计和当时高僧的佛法造诣以及当地的民间宗教信仰有着密切的关系。
水野清一,考古学家,文学博士,日本著名考古学家和佛教美术史学者。他于1905年出生在日本兵库县神户市,1925年考入日本京都帝国大学文学部史学科选科,专业是东洋史,并跟随日本考古学的创始人滨田耕作先生学习考古学。1928年,毕业于京都帝国大学史学科,并于1929年作为东亚考古学会第二批留学生到北京留学。
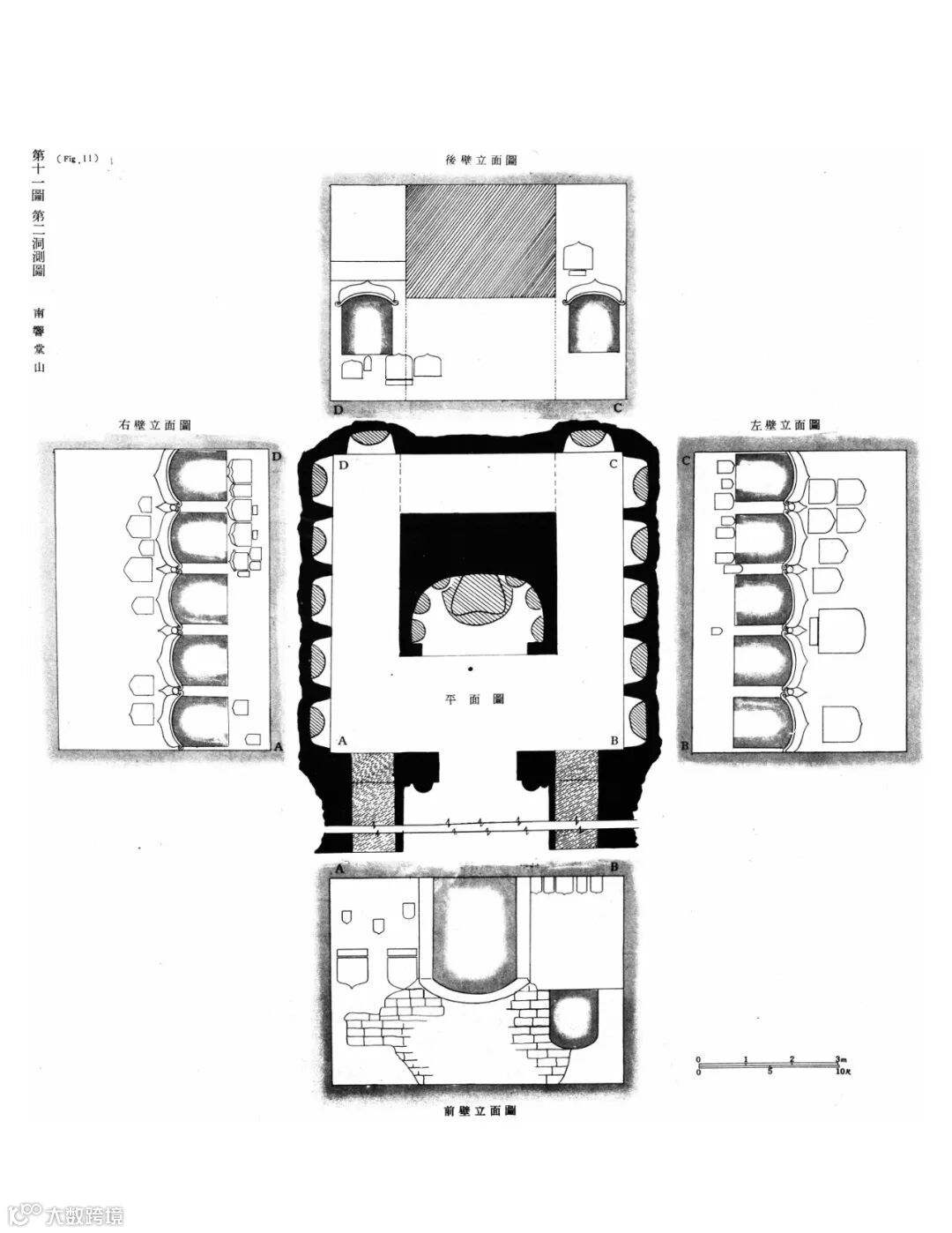
1936年3月水野清一、长广敏雄组成搭档,对洞窟进行了为期一周的实地测量、测绘和拍摄。河北磁县河南武安响堂山石窟》,水野清一,长广敏雄,1937年出版,本书为日本世界级考古专家水野、长广代表作之一,作为其仅为期一周响堂山石窟踏查活动之学术成果,《响堂山石窟》一书实可谓面面俱到、图文并茂、翔实严谨,此二位学者工作效率之高,尤令读者称叹、同行汗颜!迄今为止,此书仍为海内外有关响堂山石窟屈指可数之出版物中,唯一严肃性考古专著(报告/简报)!


































































































































来源:石语梵行
- END -

投稿、收藏请加微信↑↑↑
联系电话:13522454081
邮箱:artgeya@163.com
【版权声明】

