内容摘要:木椁墓近年来在河西走廊地区多有发现,分布地域已突破仅在武威东部发现的窘境,也整体提升了该地区汉墓的年代上限。木椁墓整体特征表现出与内地的趋同,但当地文化特色仍较突出,其所反映的人群结构,通过文献的梳理,多来自山东及其周边地区。

棺椁作为葬具,自新石器时代出现,便带有“慎终追远、民德归厚”的朴素伦理。葬者,藏也。商周以来,逐渐纳入到礼制范畴,形成一整套别贵贱、序人伦的棺椁制度,成为了“周制”重要文化内涵。秦汉以降,以“洞室墓、砖券墓”为代表葬制的推广,木椁墓率先在关中、中原地区走向解体。河西走廊地区木椁墓是在汉武帝大破匈奴,置郡设县,徙民戍边这一宏观历史背景下出现的。其特点是带有强烈的政治移民导向,在笔者看来,与山东、江苏等周边地区人群存在密切联系。这是河西走廊地区第一次被纳入到了帝国的郡治之下,成为了编户齐民下“新汉人”。而此次“汉化”进程中明显体现出“以郡治为中心,继而向周边设县、属国”的政策导向,对于我们理解中华民族多元一体的格局形成具有重要借鉴意义。
河西走廊地区汉墓发现数量众多,墓葬形制上呈现出以洞室墓与砖室墓为先后特征,贯穿西汉晚期至整个东汉时期。学者们就其分期、特点及与其它地区汉墓关系等问题进行讨论,成果丰硕。木椁墓在以往考古学资料中仅见于武威古浪峡黑松驿董家台遗址[1],由于出土资料有限,未能引起学界的关注。近年来,随着该地区汉墓相关考古发掘项目有力推进,在玉门白土良[2]、张掖黑水国[3]、民乐八卦营[4]、永昌水泉子[5][6]等汉墓群清理中,发现数量较多木椁墓。分布地域已突破武威东部,西界已达酒泉地区(图1)。年代上限可至西汉中期,诸如黑水国、八卦营汉墓考古新发现,提升了以往河西汉墓的整体年代①。

图1 河西走廊木椁墓分布示意图
河西走廊地区目前已明确发现木椁墓86座。分布地域主要集中在张掖及周边地区,辖属汉张掖郡及武威郡。详见表一。
河西走廊地区木椁墓以竖穴土坑木椁墓为基本形制,即是在事先挖好的长方形墓圹四壁置木椁,墓椁两侧壁及后端挡板通常由横向方木、圆木或木板上下叠压堆砌而成,前端普遍用薄木板、圆木竖向插堵。椁盖用截成半圆的原木、方木或木板横搭,底部为横向的薄板铺垫。民乐八卦营墓群所清理2座洞室木椁墓,在该地区发现极少,应是受到青海上孙家寨一期文化影响的结果②。

除白土良外,其它三处墓群均见斜坡墓道,所占比例较高。墓道平面形状多呈长方形,部分略呈梯形,通向墓室一端较宽。墓道大部分斜坡至底,通向墓室。少数在通向墓室的一端与墓室底部有一定落差,这主要体现在水泉子、黑水国汉墓中,其略差高度十几至几十厘米不等(图2)。较之大致同一时期的长沙马王堆汉墓,诸如一号墓墓道连接墓室的一端竟高出墓室底部3.5米,甚至高出椁顶0.7米[7]。下葬方式是从墓口上部悬吊下棺,即文献称之为“悬封”③。水泉子、黑水国墓道落差虽大为缩减,但仍未脱离“周制”观念[8]。
在葬式上,带斜坡形墓道的墓葬,60%以上为双人合葬。一定程度上反映出自西汉昭、宣时期以来,夫妇同穴合葬从中原地区传播而来。合葬墓的盛行,斜坡墓道的功能发生了转变,原本体现着墓主人身份、地位的一种象征性建筑已逐渐走向时效化——方便取土、二次下葬。这在木椁营建方式上可得到体现,水泉子与八卦营汉墓椁室前端即连接墓道处一般不同于其它三壁,普遍用薄木板竖向插堵,方便二次下葬。另外连接墓道与墓室之间,已出现过洞、甬道、封门等内在元素,以往重视和追求隔绝密闭性能的传统型椁墓亦开始走向解体。反映出竖穴式墓的衰落,向横穴式墓这一演变规律。当然,凡增设坡形墓道的木椁墓,其规模、等级仍是较高,如水泉子汉墓2012M8[6]41-44;黑水国汉墓M16、M23、M25、M57等[3]157-166、193-200、207-213、330-336、339-347,随葬品内涵及出土数量最为丰富。
图2 河西汉墓墓道与墓室底部存在落差现象
1.水泉子汉墓 M8;2. 黑水国汉墓 M16
河西走廊地区部分木椁墓椁室内外发现立柱现象,具有地方特色。如八卦营汉墓M42、M75、M82[4]74-77、139-141、147-150,其利用圆木或方木对椁室内外进行加固。上孙家寨洞室木椁墓M135有类似发现[9]。水泉子汉墓2012M8、2012M14在椁室两壁增设挖槽立柱[6]43(图3),却并非出于加固椁壁之目的,可能更多是某种象征意义。西北农林科技大学秦墓里发现数量较多墓葬,在其墓室四壁、两壁及四角可见立木,部分发现有木槽。发掘者认为此类木椁墓是近年来秦墓发现的一种新的类型,立木象征椁帮,棚木、盖板类似椁盖[10]。另外在咸阳塔尔坡秦墓[11]、西安茅坡邮电学院秦墓有同样发现[12]。水泉子两壁增设挖槽立柱现象,有可能源于以东秦人葬俗西传的结果,其立柱象征椁帮,寓意一重椁。
图3 水泉子汉墓主椁室挖槽立柱
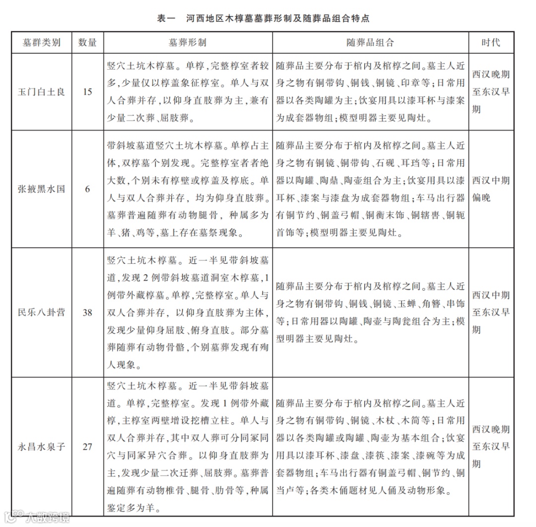
河西走廊地区外藏椁墓发现两例(水泉子2012M8、八卦营M94)。“外藏椁”一词,首见于《汉书.霍光传》记载:“光薨……枞木外藏椁十五具”[13]。从考古材料看,“外藏椁”当包括“婢妾之藏”与“厨、厩之属”三要素。至西汉时期发展为鼎盛阶段,形成了外藏椁的基本模式[14]。水泉子M8为西汉晚期墓,外藏椁有二,皆位于墓圹内(图4:1)。其中外藏椁甲位于墓道内端与正藏间,椁盖有两重。内置木马、木车、木俑、陶器、铜盆等。其木马、木俑象征“马厩”、“马夫”,陶罐、陶盆、铜盆象征“炊厨”,寓意“厨、厩之属”。外藏椁乙位于外藏椁甲南壁以东,椁盖一重。内置木俑、陶器、铜盆等。其中木俑5件,似侍从、杂役,陶器、铜盆象征一货仓。八卦营M94为西汉中晚期墓,仅见一外藏椁,位于墓道内端与正藏间,未构建椁室,正藏与外藏之间以一排竖立圆木隔开,内无任何随葬品出土[4]169-173(图4:2)。上述两案例中水泉子2012M8为典型西汉中期以来外藏椁基本范式,八卦营M94三要素皆无,一定程度上说明自西汉中晚期以来,外藏椁内涵及价值体系已逐渐松动。
图4 河西汉墓存在外藏椁现象
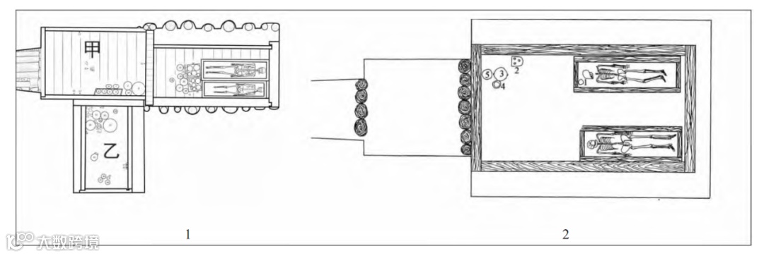
河西走廊地区木椁墓尸骨摆放上,以仰身直肢葬为主,另发现少量二次葬、屈肢葬等葬式。在人数上,分单人葬和双人合葬两类。双人合葬在水泉子汉墓中亦分两类,一类是同冢同穴合葬,共发现14例;一类是同冢异穴合葬,4组8例。其中同冢同穴合葬带墓道的12例,未带墓道的,二次迁葬一同下葬入殓的2例④。同冢异穴合葬墓,有其特点。两墓圹大小相当、方向一致、构建椁室形制亦相似。两墓圹隔梁间隔在0.3—0.5米之间,显示二者紧密关系(图5)。究其源头,西周开始至西汉前期,盛行并穴合葬,但其间隔较远。随着封建宗法观念的加深,自汉武帝开始,流行夫妇同穴合葬。因此,有学者认为,同冢异穴合葬即是夫妇合葬由异穴向同室埋葬诸多变通形式的一种[15]。
图5 水泉子汉墓同冢异穴合葬(M11-M12)
河西走廊地区木椁墓出土器物一般具有相对固定位置,棺前放置漆案、漆盘、漆耳杯等饮宴用具;椁室前端放置车马出行用具;日常生活陶器或放置在木棺一侧或放置在椁室一角。墓主人近身之物常见铜镜、带钩等,饭含多见玉蝉一类器物。日常用器以罐、壶为基本组合,兼有鼎、瓮、灯、盆、熏炉等,其中鼎作为仿铜陶礼器核心,仅出土于黑水国汉墓,彰显墓主一定身份地位。以漆案、漆盘、漆耳杯为固定搭配的饮宴用具,不同于新莽至东汉晚期以来陶质“案、盘、耳杯”为组合祭祀器,在白土良、黑水国及水泉子汉墓多有发现。车马出行器仅见黑水国与水泉子汉墓,前者不仅发现比例高,内涵亦最为丰富。其中有4座墓葬见辖軎、轭首饰、车轙、盖弓帽、衡末饰、节约、当卢等,且车器种类多于马器,其数量寓意一车或一车一马。模型明器仅见灶,发现比例以黑水国为最高,几乎每座墓葬都有发现,白土良及八卦营汉墓发现比例极低,仅有个别墓葬发现,水泉子汉墓甚至尚未发现,分布极不平衡。
这一时期在中原地区流行的仓、井等模型明器却在河西木椁墓中尚未出现,耐人寻味。有关仓缺失的原因,有学者分析指出,这一时段族群多来自移民,出于军事战略考虑,两汉政府普遍实行屯田政策,戍军及家属粮食配给皆由政府统一供应,反映在墓葬内再无需设仓[3]648,这有一定道理。除此之外,移民基本都是底层贫民,西北地区又缺乏农业开发基础,其初期粮食供应必须依靠政府调拨。如元狩四年移民七十万,以平均每人每年需粮十八石计,至少需要一千三百万石,是关东输送关中粮食数量最高年份的六百万石的两倍多[16]。体现在墓葬中亦无设仓必要。
自月氏驱逐,乌孙西迁,匈奴便长期盘踞于河西,“逐水草而居”。武帝大破匈奴后,对于其降众的安置,史家说法上存在分歧。如元狩二年浑邪王率众降汉去向问题上,《史记》,《汉书》一致认为被徙至缘边五郡故塞外,《水经注》卷15却说,“其众置武威县、武威郡。”诚然郦说有失偏颇,不过其降众部分未徙出河西,这是可能的[18]。退一步来说,即使文献有“金城、河西并南山至盐泽,空无匈奴”[19]记载。
然西汉政府无法顷刻间从武力上切断匈奴对当地文化的持久影响。如水泉子2012M8南棺女性墓主留有发辫,明显不同于中原汉族妇女盛行的挽髻习俗,而在匈奴墓中多见妇女梳这种发辫[20]。水泉子随葬木俑,部分头戴尖帽,在斯基泰及塞种民族中比较流行,匈奴民族的尖帽虽有一定差异,但应同属于一类帽子[20]310。水泉子陶罐近底部常见穿有一小孔,此类陶罐普遍在匈奴大中型墓葬中出土,有学者对其功能作了推测,认为用于酿酒、储酒[20]286。八卦营有30座墓葬的木椁或木棺为梯形或近梯形(图6),据学者分析,此类具有高比例的梯形葬具在甘青宁边疆地区汉墓均不见,而在外贝加尔和蒙古地区的一些匈奴墓中可见到。其出土的A型、B型小口瓮、Cd型壶与西汉中晚期匈奴流行的小口深腹罐非常相似[21]。
齐家文化之后,河西走廊地区分化出不同青铜文化支系,即羌支系。在匈奴及西汉政府进驻河西之前,当地居民一直在此繁衍生息。走廊西部为骟马文化的活动区,主要分布于嘉峪关以西石油河、疏勒河流域。学者主要依据器物特征划分为骟马与兔葫芦两个类型,年代下限已至汉代[22]。白土良汉墓发现类似骟马文化器物,诸如M2夹砂灰陶单把罐,M8夹砂灰陶单耳罐,M9夹砂红陶双鋬罐等[2]86-87、105-106、108-109,与汉式陶器存在明显差异,具有浓郁的骟马文化因素(图7)。
走廊中部即黑河流域,青铜时代晚期至早期铁器时代遗存主要为四坝文化,南境为卡约文化辐射区。卡约文化主要分布于青海境内黄河沿岸及湟水流域。依据学者张文立对其青铜器的分期,从早到晚可分四个不同时期,第四期年代大致推断为春秋中晚期至战国时期[23]。八卦营汉墓毗邻扁都口,为青海东部通往走廊最为重要的一条通道。墓葬形制中包含洞室木椁墓,俯身葬等特点,深受大通上孙家寨墓地影响;八卦营出土橙黄陶腹耳壶比例较高,亦是来自上孙家寨墓地的影响,文化内涵属于卡约文化遗存(图8)。
图7 白土良汉墓及骟马文化出土陶器
1.白土良 M2:6 夹砂灰陶单把罐;2. 白土良 M8:3 夹砂灰陶单耳罐;3. 白土良 M9:2 夹砂红陶双鋬罐;4.马圈湾出土骟马文化陶单耳杯
1.八卦营 M9:1;2. 八卦营 M55:5;3. 八卦营 M67:3;4. 八卦营 M82:8;5. 上孙家寨墓地出土陶壶 M158:12
走廊东部为沙井文化分布区,主要位于金昌、民勤乃至武威市辖区一带,年代下限可至西汉中期[24]。水泉子汉墓出土的夹砂陶鬲、单耳罐等来自沙井文化的影响。值得说明的是,水泉子发现一批彩绘陶,纹饰以变体回纹、三角纹等为主,带有甘青地区半山—马厂文化主体纹饰的构图特征[6]46(图9)。
图9 水泉子汉墓及沙井文化出土陶器
1.水泉子 M13∶2 陶鬲;2. 水泉子 M10∶4 单耳罐;3. 水泉子 M9∶4 双耳罐;4. 水泉子 M14∶5 无耳罐;5.永昌西岗沙井文化墓葬 M267:1 单耳罐
出土汉简资料显示,河西走廊地区自纳入到汉帝国统治秩序之后,是依照戍守—屯田—移民过程逐步推进的[25]。西汉政府在具体实施过程中呈现出“先筑城设郡,再屯田移民、充实地方,然后设置新县”等特点。反映在墓葬材料中,黑水国汉墓因所在区域为汉张掖郡治所在,出于“隔绝羌胡”之由,汉政府将大批小月氏或羌人迁至张掖属国,这一区域遂成为了“汉文化特区”,主要安置屯戍移民及其后裔。木椁墓的始讫年代不仅较早,消亡年代亦最快,西汉晚期洞室墓已成为主流,葬制变化速率紧跟中原、关中地区;随葬品组合中汉式鼎、壶及灶等都有高比例的发现。相比较黑水国,水泉子、八卦营汉墓远离郡所,墓葬等级整体偏低,族群多为贫民。其中水泉子汉墓所在区域为张掖郡新置县——蕃和县,一直以来为张掖郡重要屯田区。其木椁墓整体出现年代偏晚,消亡时间已至东汉早期。汉化程度较之黑水国偏低,包含有少量匈奴文化及羌文化因素,体现出西汉河西县治特点。八卦营汉墓所在区域为汉张掖属国,主要安置小月氏或羌人,体现在墓葬材料中羌文化因素高比例的发现。西汉政府也达到了“隔绝羌胡”之目的,在八卦营以外周边汉墓材料中,尚未发现“黄陶腹耳壶”此类遗存。通过对黑水国、水泉子及八卦营汉墓个案分析,对于深化理解西汉政府在以郡治为中心,继而向周边设县、属国的统治格局具有积极意义。
(二)移民来源
按照“戍守—屯田—移民”西部开发战略总体布局,在戍(田)卒垦得土地之后,政府方组织大规模移民。《汉书·武帝纪》中明确记载“元鼎六年,分武威、酒泉地置张掖、敦煌郡,徙民以实之”[26]。至元始二年河西四郡人口已达二十四万。最新考古资料通过对黑水国汉墓人骨DNA检测数据得知,其父系皆来自黄河流域,母系是为当地土著[27],证实了河西戍边移民的事实。河西移民主体为戍卒、贫民及罪犯。其中戍卒来源复杂,据何双全先生考证,来自全国25个郡、140余县、350个乡村[28]。贫民来源相对集中,多因黄河水患而迁徙至此。
从考古材料来看,西汉中期以来,中原、关中等地区盛行小砖券墓或洞室墓。中原地区代表性墓葬材料如洛阳烧沟汉墓[35],在西汉晚期墓葬形制为平顶长单室、弧顶无甬道单室、单穹隆顶双室。至新莽及其稍后阶段演变为弧顶单室、单穹隆顶双室。关中地区代表性墓葬材料诸如《长安汉墓》在宣帝后段至元帝时期墓葬形制表现出单室墓,砖室墓增多,新出子母砖券顶[36]。西汉晚期墓葬形制特点同上,墓室流行前端一排或两排条砖砌券顶。《白鹿原汉墓》昭、宣时期墓葬形制发现无甬道单室土洞墓、少量有甬道土洞、无甬道磗室、竖井墓道土洞[37]。元帝—平帝时期为无甬道单室土洞墓、有甬道单室砖墓。
这一时期山东、苏北等地区却发现大量砖椁墓、木椁墓。如鲁北地区从西汉早期开始流行砖椁墓,西汉中期出现大型砖椁、木椁墓;鲁中南地区西汉中期开始与石椁墓一起流行砖椁墓,一直到东汉晚期之前;胶东地区从西汉中期开始出现砖椁木椁墓,并成为中型墓的主要形式[38];暗合两区域之间存在相关联系。进一步来说,作为山东地区独有特征之一,木椁墓多设有二层台现象,这在黑水国、白土良汉墓中有少量发现;水泉子、八卦营及白土良汉墓陶器基本组合为罐和壶,缺乏或少见这一时期一般汉墓常见的礼器组——鼎、钫、盒等,明器组——灶、仓、井、圈等,相反在鲁北地区找到以罐、壶常见陶器组合;壶又可分为敞口与盘口等类型,在鲁北地区汉墓中都能找到同类器。
黑水国汉墓族群主要为屯戍移民,出土人骨DNA检测来自黄河流域,发掘者进一步通过对出土相关陶器比较,认为移民主要来自中原地区。不过,关中地区毗邻河西,亦发挥了一定程度的影响。如黑水国木椁墓发现的陶灶,不仅有洛阳地区流行的方形灶,亦有关中地区盛行的马蹄形灶。白土良、水泉子、八卦营汉墓族群主要为贫民,通过文献的梳理,考古资料的对比,其移民主要来自山东及其周边地区。
河西走廊地区木椁墓始讫于西汉中期,至东汉中期彻底退出历史舞台,根本原因在于这一时期葬制发生了深刻变革。正如学者指出,传统椁墓追求密封和防腐性能难以满足当下价值诉求,随着儒家学说成为国家理论,反映在丧葬理念上即是对祖先祭祀的重视,椁内祭祀空间的重视和发展最终导致横穴式室墓的确立[39]。
除此之外,河西地区土地资源相对贫瘠,内地移民多数又习惯于单一农业经济,他们定居边区以后多数人仍是开荒种地,所以在移民集中地区往往出现植被破坏,水土流失严重,土地沙化、盐碱化,甚至导致沙漠的扩大。而作为土地重要守护者——林木资源,自西汉中期以来受到了极大的破坏。徙民实边,加强边防,需要大量木材来构筑造城池、修建房屋、打制家具、写作公文、购置棺椁等,发现于敦煌悬泉遗址的《四时月令诏条》及窦融保据河西时发布的政令[32]192-199⑤,从另一侧面反映出西汉时期林木破坏的严重性。出于对林木资源的保护,木椁墓的迅速衰落及消亡也应与东汉政府的政策导向有关。
版权|文章转自公众号《中国社科院考古所中国考古网》。
投稿|欢迎提供原创作品,可发邮箱631458825@qq.com
联系|商务合作与平台事项,请联系18939251610(微信同号)
近期游学
(点击图片,查看详情)
近期讲座
(扫码观看)
近期游学
(点击图片,查看详情)
象 蕴 会 员 卡


往期讲座
(扫码即可观看)
公益讲座:
(点击图片/扫码,即可观看)
图书推荐
(点击图片,查看详情)
*欢迎关注平台其他公众号:
观文博→线上讲座
*欢迎关注以上公众号,欢迎文博话题和动态信息投稿。
*象蕴在各平台链接:
微博
B站
抖音
象蕴文化→线上+线下文博活动
象蕴文化线上小店,扫码进入店铺:
欢迎添加我们客服微信,进群获得更多福利
欢迎喜欢历史文化的朋友加入我们,
一起发现古人智慧、学习古人精神,
欣赏古代之美!
欢迎各种形式商务合作,可加微信
18939251610
欢迎各路英雄投稿,投稿邮箱
447341744@qq.com
关于“象蕴”
●象蕴文化,以深度体验的方式,组织各种形式对我国历史文化为主题的游学
●涉及内容:古建、雕塑、碑刻、青铜玉器、金银瓷器、墓葬遗迹、古典书画等等
●游学形式:主题讲座、公益免费讲座、各地文保项目实地考察、博物馆看展览、非物质遗产 项目课程
●资深的专家讲师,更深更专业的学习体验;
●纯粹的考察游学,专业的领队,细致的服务;
●有共同兴趣的人一起 探索历史;
●团员年龄从9岁-60岁,不同项目,不同深度,不同体验;
●根据不同地区不同项目计划定制,提供定制服务 ;
●专门体验当地社会口碑高的特色餐饮;
●小团行动,每团6-20人






