一套05年的学区房,说不上太新,也算不上很旧,业主一家三代人为了孩子上学居住在这儿。房子本身并无不好,客厅虽然朝北但采光和视觉通透性都算上乘,主卧朝南还自带阳台。
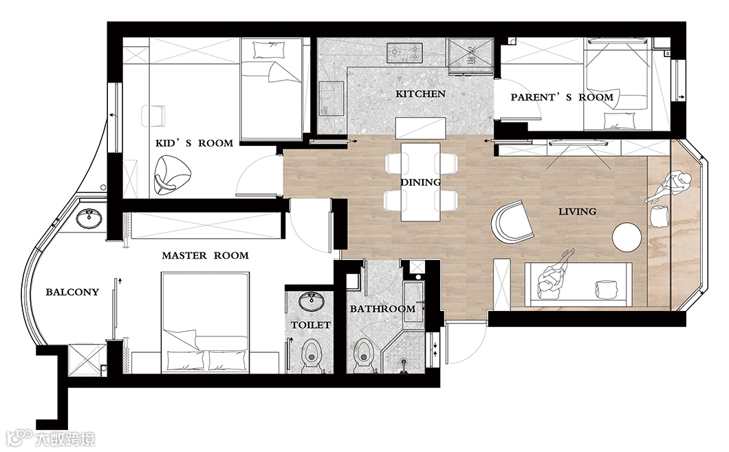
平面布置图
亟待解决的问题是增加一间卧室供老人使用,经过规划,将厨房与餐厅整合在一起,这样就留出原厨房空间改造为老人房。
改造后的厨房与餐厅之间设计可敞开可封闭的隐藏式移门,解决日常烹饪油烟问题。
为了避免日常同时洗漱造成冲突,我们在主卧设计了一个独立的卫生间,采用长虹玻璃移门隔断,保证透光的同时也能起到一些隐私作用。
收纳示意图
方案模型图
尽管如此,要在89㎡的建筑面积里承载三代人的日常起居多少还是显得有些不胜从容,为了让这间房屋更加符合业主及家人的使用需求,通过解构、重组,打破原有格局,塑造这个家的全新性格与表情。
客厅
温柔的触感、自然的光线、贴地的暖意、细腻的居住感,都让人自然联想起寻常生活的柴米油盐和喜怒哀乐,空间中的透与藏组合出更多设计的可能性,也创造出小方圆里的大内容,正如芥子须弥,日月壶中。
客厅有一整面飘窗,飘窗在住宅中可塑性不大,但在这个空间里却起到了极重要的作用。利用这个窗台的结构赋予它木的材质并增加踏步,兼顾其作为地台的功能属性,并预留暗藏灯光,与电视墙、沙发墙连贯成整体。
现场制作的电视柜及滑动柜门,电视墙面装饰柜在不需要看到电视时,可以把移门合起来,以此保持敞开部分的和谐与统一。
这种沙发结合窗台地台的形式,让空间更加灵活更加随性,也更方便家人之间的互动。
餐厨
利用厨房空间做了一个餐边柜与餐桌连接,增加操作台面的同时,反向对厨房做敞开柜形式使用。
墙面使用白色小砖,增强空间的线条感;并用移动滑轨式插座替代传统插座,使墙面更加整洁干净。
改造后的餐厨既为整体也可各自独立,两者之间是可敞开可封闭的隐藏式透明移门,移门产生出绵绵不绝的流动感,声音也好,空气也罢,都在缓缓地传送,于是家中的气息也会变得和谐且融合。
玄关
原入户门位于客厅,进来后所有内部空间尽收眼底一览无余,缺乏心理上的缓冲地带,于是我们在入门处设计了鞋柜,利用鞋柜划分出入户门厅的空间过度,起承转合更加自然。
老人房
老人房的床采用地台形式,在满足使用功能的同时还可以充当换季储藏空间;床边设计了边柜,方便老人随手拿放东西;
地台与衣柜底部预留了暗藏灯带,既增加空间层次也可作为起夜灯使用。
儿童房

在相对有限的空间里,设计师希望把面积最大化留给孩子活动,因此将床设置在空间上半部分,下半部分则留给孩子阅读、娱乐、玩耍。角落虽小,却足够他做很多喜欢的、想做的事。
储物衣柜上的圆形、弧形元素与床的设计细节形成形体上的关联与呼应,既满足功能又充满童趣。
主卧室
卫生间的水泥艺术涂料与床头墙面遥相呼应,给空间以延伸感,不会让人因增加了一个卫生间而感到主卧的空间尺度被压缩变小了。
整墙的衣柜保证了衣物收纳需求,衣柜底部暗藏灯光,光的延伸营造出沉浸式氛围,从而削弱大体量衣柜的平庸厚重感,不但增强视觉层次,还可以作为晚间起夜使用的光源。
现场制作椭圆形镜柜,解决悬挂台盆的储藏问题,背后设计灯带增加光源的同时丰富空间层次感。卫生间采用长虹玻璃移门隔断,保证透光的同时也能起到一些隐私作用。
后记
《住宅读本》里,中村好文这样解读住宅的内在:“所谓住宅,不仅仅是一个让人的身体栖息在内过日常生活的容器,还必须是能让人的内心安稳地、丰富地、融洽地持续住下去的地方。”除此之外,或许还应该要让每一个身处其中的人,无论大小老少,都能在不同的生活状态或情绪里,找到属于自己的归心处。

