艾鼎国际设计大奖(简称:艾鼎奖),由艾鼎智库与中国企业联合馆借助2015米兰世博会平台共同创办。该奖项是自世博会举办一百多年以来唯一一个在世博平台上设立的国际设计大奖。

嘉宾、部分获奖设计师合影
设计说明
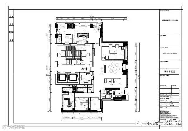
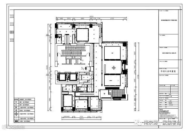
德基世贸住宅 用黑白灰的表现手法,面积270平方。该项目正在施工过程。材料:大理石 砖 木作饰面 烤漆工艺。我们坚持LESS IS MORE。















设计师简介

南京艾荷瑞艺术设计有限公司 创办人
个人爱好: 红酒 旅游 自然 音乐
从业背景:
宁海美术初中高中美术班毕业 8岁开始学习绘画,荷兰2年研究生,在意大利色彩管理专业一年,在英国瑞士从事设计工作学习3年。
擅长 :北欧风格 北欧简约 中式简约
设计格言 : 懂生活懂设计 美的实物无处不在 让生活充满美的感受
代表作:
紫金7号别墅
颐和路别墅
丹麦咖啡店
中北英俊样板间
德基世贸
西宁科信电力
中航科技办公楼
北纬国际办公室
烽火藤仓科技办公室
玄石资本金融
金陵饭店环亚商务楼
中山美庐
意大利餐厅
澳门COD赌场
甲骨文公司办公楼
猫客好维餐饮连锁店
凤凰汇样板间



