


层高4米6,不用怀疑眼睛不用怀疑面积,最后有户型图,进门走廊地上用花砖铺就~

走廊门后风景

镂空调高的客厅,是不是有一种别墅的即时感~

建筑面积82平,实用面积57平,层高4.6米,全部花费30多万~

从客厅看进门处,可以看到楼下卫生间的隐形门~

水晶大吊灯,超大装饰画,一切软装都优雅且霸气~

黑色橱柜门板和白色台面

楼下客卧

楼梯台阶立面也精心设计


黑色橱柜门板和白色台面

楼下客卧



楼梯台阶立面也精心设计





满墙衣柜



充满童趣的软装

主卫的浴桶

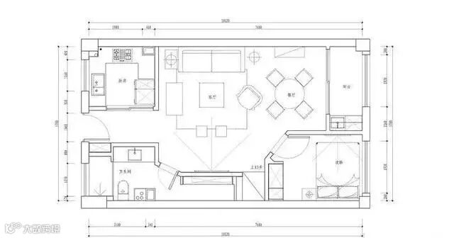
一层平面布置图

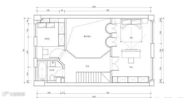
二层平面布置图
END
如果觉得不错
感谢分享到你的朋友圈
0318-2980555
15931388825(可加微信)



