点击上方“宾孚建设工程顾问”关注我们!
随着国内装配式建筑产业化的推广及BIM技术得到越来越广泛的应用。今天小编就跟大家分享一个上海宾孚以BIM技术应用的经典案例。
阳光城集团名下的杨浦区平凉社区大桥街道101街坊商品住宅房就是装配式建筑。据小编所知,阳光城集团“壕”无人性,当时以楼板价49236元/㎡(总价17.3亿)的高价竞拍获得。这难道预示着BIM+装配式建筑的时代来临?
项目介绍
Project Introduction
工程概况
▼ 地理位置
大桥街道101街坊住宅项目位于杨浦区101街坊,占地面积15502.9平方米,建筑面积66956.67平方米,东至眉州路,北至河间路。地块东侧为辽阳中学,东南、东北侧及西侧为居住小区,西北侧为杨浦区人民法院。
容积率2.3,地上计容建筑面积约3.56万方,限高60米。本项目共由5栋高层住宅楼(其中5号楼连接3层的配套建筑)和一栋1层的垃圾房组成,高层住宅楼由西向东依次为1-5号楼。其中:1-5号楼底层按全部架空考虑,所有住宅楼的主入口门厅设置在4.2米层高的架空层,提升入户空间的品质和感受。配套用房由居委会、物业管理用房及业委会用房组成。本项目精装修交房。
▲ 装配式概况
开发商概况
阳光城集团(上市代码:000671)是阳光城控股投资,以房地产开发为主业的全国化品牌企业,业务涵盖地产开发、商业运营、物业服务以及幼儿教育投资和运营管理四大领域,位列2016中国房地产开发企业500强TOP20,连续四年荣获中国“年度最佳雇主”。
项目基本信息
项目名称
entry name
阳光城大桥街道101街坊商品住宅项目(装配式建筑)
建设规模
Construction scale
总建筑面积约为6.7万平米
项目承建
Project construction
装配单体总住宅建筑面积的100%、预制率31%、预制外墙面积占比超50%、精装修交房
▲ 外立面模型
▲ 机电模型
▲ 建筑结构模型
▲ 景观模型
▲ 精装修模型
BIM技术应用
Application of BIM Technology
设计审查
1
门与结构冲突:
解决方案:门位置调整、结构梁调整
2
机械车位车与结构冲突:提前发现车位与结构的冲突避免车位无法使用
解决方案:该结构梁上翻
3
室内机电管线与吊顶冲突:提前发现内装与机电专业之间的冲突,避免现场调整方案,延误工期
解决方案:事前优化吊顶高度至2.4m
4
问题点:预制墙上预留点位与精装点位有偏差,且有遗漏。
解决方案:通过点位验证提前发现,避免预留点位无法使用或导致二次开洞提高成本。
品质提升
车位优化
个别车位数量调整提高地库整体精装效果,满足小业主后期的可能性需求
地下大堂门头位置管线优化
▲ 优化前
▲ 优化后
原管线位置离门头较近可能会遮挡门头,风管位于车位吊顶上方可能影响后期吊顶施工,故调整。
设备平台优化
▲ 优化前
▲ 优化后
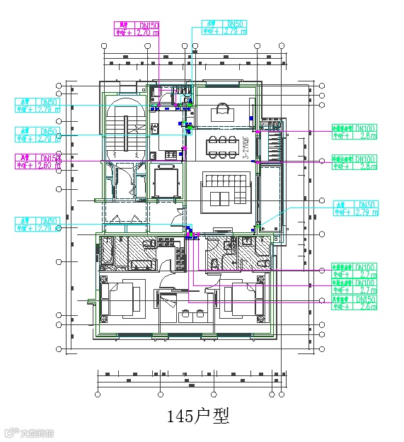
145户型原方案燃气立管放置小业主阳台位置燃气表影响其美观,设备平台侧墙有铝板锅炉无法固定,穿铝板管线较多致施工困难。现方案决定取消铝板,并将燃气立管移至设备平台位置。
机电深化
剖面图:
样板房出图:
▲ 样板房留洞图1:100
▲ 管线综合平面图1:100
室外景观优化
园林景观工程BIM信息模型:
室外管线的综合优化,各类管线,井与硬景碰撞
▲ 管线与井
▲ 景观模型
系统性的可视化信息资源整合,通过平台整合更好的提高整个生产过程的劳动生产效率,降低生产营造成本。
▲ 一层建筑与地下室
▲ 整体局部模型
园林景观工程的情况有所不同,其生命周期可划分为规划、设计、施工、养护、更新。
虚拟仿真应用
▲ 交房模式
样板房模式:让客户直观体验项目建成后的效果。
▲ 样板房模式
交房模式:让客户非常清晰知道交房时的效果。
应用效益
Application Benefit
经济效益分析
项目设计优化价值经济性预测:
问题
类型
数量
单位:个
单价
单位:元
节约
单位:万元
调整管道路由
88
9000
79.2
坡道
楼梯
22
43000
94.6
洞
口
6420
400
256.8
净高
(土建)
28
20000
56
净高(机电)
96
4500
43.2
竖向管道碰撞
80
800
6.4
其他
580
980
56.84
合计
580
980
693.04
品质效益分析
观感度
车库大堂入口处管道排布移位、地库明装箱柜的移位隐蔽道排布整齐、高度统一户内设备平台管道排布优化,提升建筑外立面观感
舒适度
地库车道净空提升至2.8米、大堂入口净空提升至4.2米、电梯前室净空提升至2.6米、户内管道吊顶内预先梁上留洞,保证吊顶安装,充分考虑检修和定期维护的操作便利性
真实度
虚拟仿真(VR)技术应用,客户直观体验项目建成后的实景效果
相关阅读推荐
■ BIM观点 | 建筑“黑科技”?谁掌握BIM,谁就引领房地产未来!
■ 宾孚案例 | 真不敢相信,这些幕墙难点BIM技术轻松搞定!
■ 宾孚案例 | 敢不敢挑战在地下三层的狭小场地里穿越这么多交叉作业?
长按识别二维码关注我们
上海宾孚建设工程顾问有限公司
基于BIM的成本管控专家

