日前,法国总统马克龙成功访华,在此期间,中法双方达成多项重要合作。中国建研院与法国建筑领域内各相关机构、科研单位、企业等的合作交流由来已久。本世纪以来,双方在建筑设计、建筑技术、建筑认证等领域多次“牵手”合作,应用形成了一批具有影响力的成果项目,有力推动了中法建筑领域的技术进步与发展。
合作缘起
早在本世纪初期,
中国建研院就积极探索
与法国知名设计企业的合作。

2009年,中国建研院与
法国NDA-EDDS设计公司的
著名建筑师邓乐路(Delarue)
正式组成“联合体”,
以龙凤呈祥之设计理念中标
安徽广电新中心设计项目。

△安徽广电新中心

△与法国VP建筑设计事务所交流
该事务所是欧洲十大
著名设计事务所之一,
也是法国最大的
建筑设计事务所。
双方表示,将在国际建筑市场、
特别是中国市场建立
更加紧密的友好合作关系,
积极寻求和创造合作机会,
实现优势互补、
资源共享、共同发展。

△签署战略合作协议
2020年,第三届进博会现场,
中国建研院与
法国VP建筑设计事务所
进行了现场签约。

此次签约合作,
将在中国建研院的设计业务中
进一步引入国际先进设计理念,
丰富国际合作经验。
推进项目
基于前期合作基础,
中国建研院与
法国有关机构、企业,
持续推进具体项目建设。
2011年,中国建研院在
法国建筑科学技术中心(CSTB)
完成满足法国标准要求的
钢筋机械连接产品试验,
并成功应用于按法国标准设计
阿尔及利亚国家体育场项目。

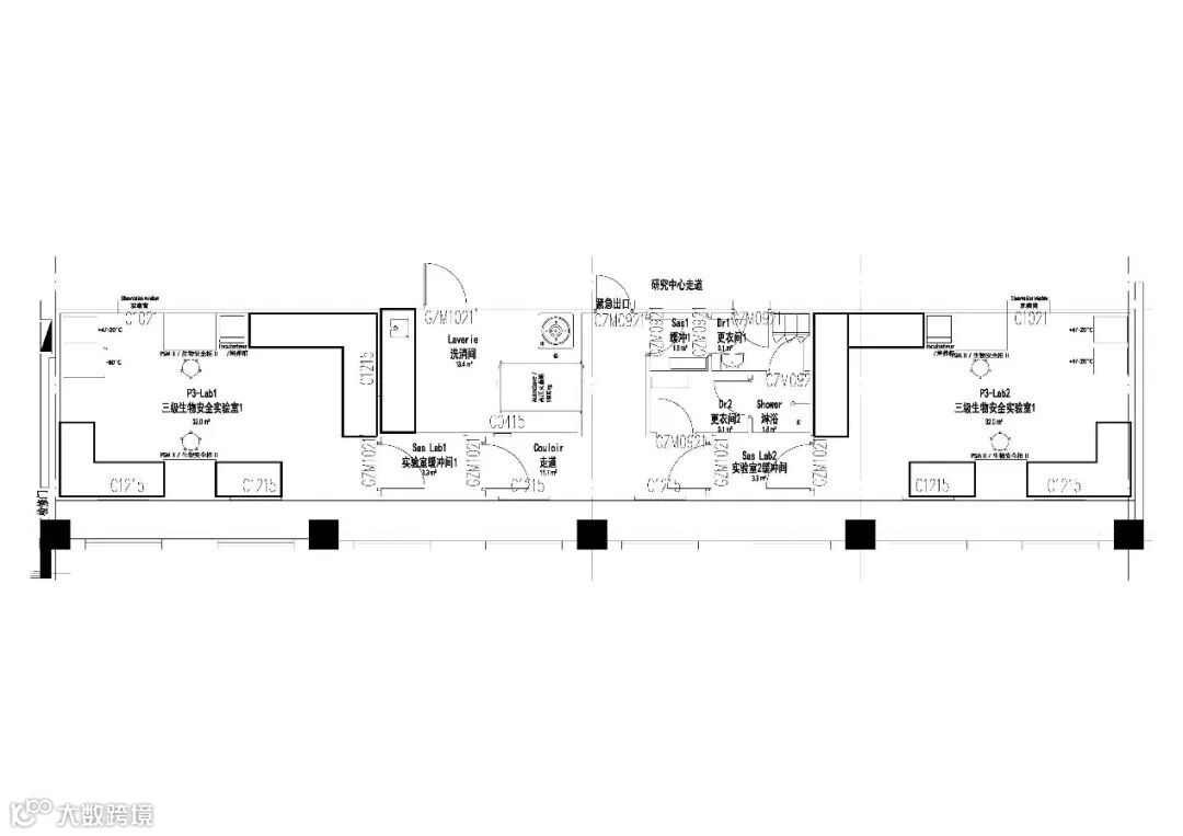
2019年,中国建研院
承建的昆明市
第一人民医院甘美医院
中法联合实验室正式启用。

联合实验室研究团队
由巴黎大学、昆明学院、
昆明市第一人民医院甘美医院
共同组建,
以肿瘤病毒及艾滋病病毒的
临床诊疗为研究方向。

△联合实验室平面图
中国建研院承建团队
多次跨洋进行研讨交流,
最终以国产材料设备为主,
辅以部分进口控制设备,
成功实现了既满足
外方专家提出的使用需求,
又符合中国国家规范的
实验室建设工作,
为中外合作建设符合中国国情的
高等级生物安全实验室
开创了先河、提供了经验。

截至目前,中国建研院与
法国VP建筑设计事务所
联合设计的
海口国际免税城已经开业,
杭州大会展中心一期项目
4号、8号展厅钢结构主体
也正式结顶,
成功谱写中法合作项目新篇章。
△海口国际免税城
△杭州大会展中心
广泛交流
近年来,
中国建研院通过主持
《绿色建筑评价标准》以及
配套标准的编制工作,
形成了具有中国特色的
绿色建筑标准体系。
在此基础上,中国建研院与
法国机构强化交流,
通过开展2019版
《绿色建筑评价标准》与
法国高质量建筑环境体系(HQE)
的标准对比工作,
启动中法绿色建筑
“双认证”评价工作,
极大促进了我国绿色建筑
有关技术和标准在法国推广。

法国作为核电占比最高的国家,
是全球最大的核电技术出口国,
也是全球为数不多的
同时拥有高放、低中放、
极低放废物处置场
及地下实验室的国家,
在放射性废物处置方面
积累了大量实践经验。

为此,中国建研院多次派员
参加中法放射性废物处置
技术交流讨论会,
并赴法开展实地调研
及技术交流。

2019年,中国建研院派员
参加法国HQE-GBC联盟
举办的国际绿建大会边角论坛
及全体大会,
并与HQE相关技术人员就
既有建筑综合性能提升展开研讨。

基于HQE标准交流基础,
2021年,中国建研院牵头主办
“HQE标准培训暨绿色建筑
双认证技术研讨会”,
中法团队互相汇报技术成果、
分享经验、充分交流。

△“HQE标准培训暨绿色建筑双认证技术研讨会”参会代表合影
同年, 法国大使馆
民事安全技术参赞莫兰先生
一行至中国建研院
就高层建筑防火、
防火材料的耐久性、
火灾风险评估、
灾后赔偿机制等方面
进行技术交流,交换诸多意见,
为中法消防安全、
建筑防火领域技术交流
创造了广阔的前景和机遇。

从历史到未来,
我们衷心期待中法双方有更深入的合作!

文章供稿:中建研科技 中技集团
建研防火 科技发展院 建筑设计院
部分历史资料来自建筑科学《建筑设计院发展历程回顾与展望》
可转载,转载需标明图文来源
往期回顾:
3.中国建研院承建的昆明市第一人民医院甘美医院中法联合实验室正式启用
如果需要改进,请联系我们。可通过新浪微博@中国建研院,或发送邮件至ydb@cabr.com.cn。
更多精彩期待您的参与!

