重新整理老房旧的管线和电路,卫浴设备更新
偏爱简约北欧风质感,喜爱柔和色系
指定选用防水耐脏的石塑地板
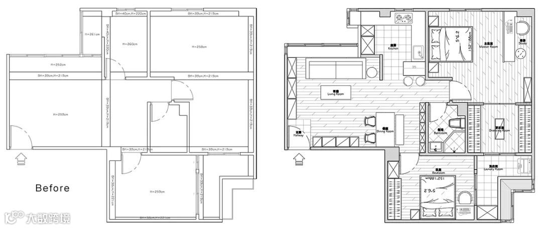
开门即见厅,属于没有玄关的户型。
鉴于客厅面积小,入户处用素雅与花纹六角砖做为空间的分隔。
靠墙位置做了一排收纳柜作为鞋柜,再放上穿衣镜,整个出门动线十分流畅。
两边延续简白调性的多功能衣柜,衣帽间紧挨着的便是阳台。

喜百年装饰集团号
重新整理老房旧的管线和电路,卫浴设备更新
偏爱简约北欧风质感,喜爱柔和色系
指定选用防水耐脏的石塑地板
开门即见厅,属于没有玄关的户型。
鉴于客厅面积小,入户处用素雅与花纹六角砖做为空间的分隔。
靠墙位置做了一排收纳柜作为鞋柜,再放上穿衣镜,整个出门动线十分流畅。
两边延续简白调性的多功能衣柜,衣帽间紧挨着的便是阳台。
