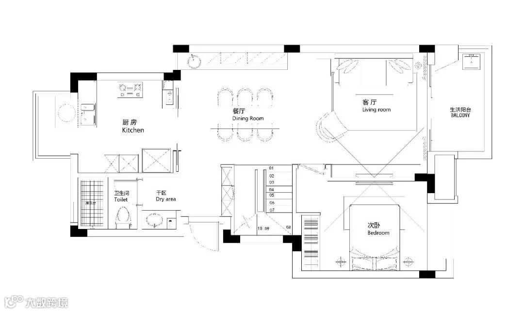
▲户型图
客厅
在室内大面积运用白色提亮,让整体的空间看起来亮堂通透;再辅以巨大的落地窗,把光线引进来,通过白色墙面,让光在屋子里发生折射……
夏天临窗远眺时,满眼诗情画意;冬天视野里一片白雪茫茫,人们的心情自然也会好很多。
当我们看到北欧风格建筑明亮、高大的落地窗时,心情是不是似乎也马上明亮起来了?
整个空间以白色为主点缀原木色,全屋地板鱼骨拼,清新自然的感觉扑面而来。
沙发背景只用了简单的石膏线条,对应纯白的电视背景,再搭配装饰画和旁边的绿植,无形之中为客厅增添了不少活力。
餐厅
餐厅与客厅在同一水平线上, 而且之间也并没有做明显的隔断设计,然而这样的设计能让餐厅与客厅两个空间看起来都更加的宽敞~
西厨放在餐桌旁边不仅满足了操作空间的需求,还可以增加餐厅的收纳,摆放精致的餐具及装饰摆件,好看又实用。
厨房
沿着墙身是长达4.2米的超长台面, 冰箱存取 -> 清洗 -> 处理 -> 煮食 ->配菜 -> 起菜, 6个步骤动线流畅。
父母房
灰白及原木色调,通过床品、窗帘、靠枕,搭毯等织物提升室内的情调,使卧室更趋于温暖。
采用大面积的色块或者凸显纹理的元素,展现明快而简洁的视觉效果,看似简单却十分宜居,素净又不张扬,可以让空间多出几分精致的感觉。
把自己喜欢的小物品摆在外面,每天看见它们心情都会不一样。
卫生间
干区墙面用的是经典百搭的小白砖,搭配金边圆镜,小巧而精致。
洗手间的开门方式和格局亦做了调整。
平移谷仓门让原本狭小的洗手间出入不再局促。
新做了半墙藏起挂墙水箱,上部空间做层板储物。
另增加了一个毛巾架,加快毛巾晾干,让洗手间保持干爽。
楼梯
楼梯设计采用了玻璃+木质包边,白色和木色的结合再加上玻璃的通透,再次提升了空间层次感。
二楼主卧
灰色调的硬包背景墙搭配咖色皮质的床靠背,更突出家具的质感,卧室的另一侧是独立的卫生间,用隐藏式的吊轨门作为隔断。
主卫干区有超大的台面作为梳妆台也是绰绰有余,旁边还有超大的储物柜,女生看了都无法自拔吧~
儿童房
女孩房更强调实用性。装饰去繁就简,保持清爽、整洁的面貌,但收纳功能可是一点都不少哦。
收纳的诀窍是墙面,搭配浅色的隐藏式收纳柜,让杂物统统“消失不见”。
二楼书房
木色书柜和黑色的搭配经典又更显质感,百叶窗的设计保证了充足的光线。
二楼卫生间
想要一个整洁的公卫环境,就要提升空间的利用率,不再用一些复杂的物件来破坏整洁的空间。
END
点“阅读原文”
预约报名 可以领1688元装修红包哦
↓↓↓

