
——
设计是一种追求完美的生活态度
设计是一种追求品味的生活概念
LIVING ROOM
「轻奢与质感相融」
-
简洁利落的线条,木石组建的空间,使客厅有高级大气之感。棕色竖纹格栅墙板和云纹大理石的组合,三重框线的组合,给视觉以层次感。
作为家庭的核心区域,需要温馨的家居氛围,围合式布局的布艺沙发,大面积落地窗将四时美景与良好的采光一并引入,赋予空间以温暖怡人的舒适之感,居住者社交、生活或独处的需求均得到了浪漫的承接。
家庭悠然的午后生活由此开启,一杯红酒或一壶香茶,坐在阳光暖人的沙发上,与家人共享美好时光。

DINING ROOM
「实用与品味相融」
-

餐厅厨房常是公共区域的中转站,开放中保有着秩序,规整中亦能完整释放,不负精心烹制的美食,也不负一天里,最为珍贵的相聚时光。
通排的柜体带来稳重的视觉效果,既作为生活品位的展示,又确保收纳的井然有序。
BEDROOM
「温馨与精致相融」
-

卧室的细节处理也颇具巧思,床头及顶面以格栅式的木饰面作为背景装饰,配以轻暖光泽感的金属灯具,折射出宜人的温度。
轻奢色调床具,无主灯设计,通顶收纳柜确保整体视野广阔,空间方寸毫不浪费且功能极为融合,搭配延伸而来的跳色,极具品味的现代轻奢风格不言而喻。
CHILDREN'S ROOM
「恬淡与静谧相融」
-
ACTIVITY AREA
「独立与舒适相融」
-
阅读区摆上一张大书桌、一旁靠墙定制上一排的书籍,摆满各式各样的书籍,提供了轻松解压的阅读空间。
独立的钢琴房,将门一关,这里就是完整独立的空间,营造一个舒适的练琴环境。
PROJECT
项目地址:安展蔚然家园
项目面积:433m²
项目类型:联排别墅
INTRODCTION
设计团队:蔡健设计团队
木作落地:芜湖尚佰高定
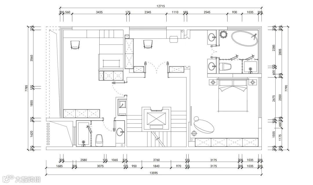
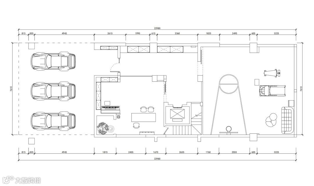
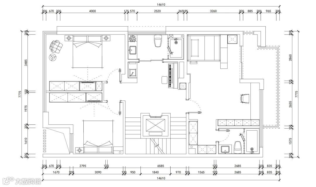
↓平面图
(左右滑动查看)
THE DESIGNER
设计师
蔡健

木作设计师
储志强







