
尚佰高定唐山一号店以美好而富含艺术质感的造型设计、极简精湛的工艺与品质,除了体现产品选择的丰富性与实物的体验感以外,营造整体空间的舒适性及品牌文化的一致性,通过空间内的产品互动,打造当代精致生活。
让我们近距离的去看一看这个展厅到底有多少值得大家记忆的,或者是跟其他展厅不一样的地方。
入户设计,以矩形通道作为入口空间,强化仪式感的游走体验。花园景观营造空间的自然性和舒适性,打破了空间的沉闷。
意式美学总是能在优雅奢华与温馨极简中,寻求一种绝妙平衡,开阔而通透,营造人与空间互动的舒适氛围。细腻高级的肤感幻彩系列与低奢内敛的意式北美黑胡桃,温润的木作交相呼应,呈现出恰到好处的意式极简客厅。


将西厨与客厅规划在同一轴线上,根据功能的划分各尽其责又遵循整体调性上做到和谐且统一。内嵌入墙体的西厨高柜线条流畅,材质严选高档的进口板材,全面彰显其精致和现代时尚感,让西厨系统的体验感更舒适。
木作混搭岩板的形式,在灯光的映衬下巧妙地呈现出一种极度舒适的自然艺术感,没有色彩的介入,而是利用材质本身的特性,提高西厨空间的整体调性。
品茗区以直线及矩形元素为主,简练纯粹,以框景手法构写空间诗意,木作产品与空间结构进行巧妙结合,相互交错穿插,制造视觉波动,扩大空间张力。
走进内部,一体式茶台整体线条简洁利落,而正因其“空””,方可载物。

背景墙用PU石皮做分割,搭配法式护墙板,新型材料与自然材质相互碰撞,圆弧型床头护墙加上暖黄色的灯光,艺术格调的氛围和调性油然而生,让人想卸下所有的疲惫与之相拥,感受它的静谧和美好。

衣帽间材质加上玻璃和灯光的巧妙应用,带来精致有序的视觉感受,高颜值的功能性衣帽间令人爱不释手。

现代立柱式衣帽柜拥有结构的美感,在灯光照耀下交相辉映,空间变得更加奢华炫目,开敞式模块,无背板设计,开放格与封闭模块配合使用,收纳功能强大,让衣帽自由自在地呼吸。

用隔断进行分割的洽谈区,主要功能是提供一个交流洽谈的场所,客户也可在这了解相关产品,增强使用者与环境的互动,让交流更有成效是一个洽谈区的最终目的。

No. 1
尚佰高定唐山一号店
━━━
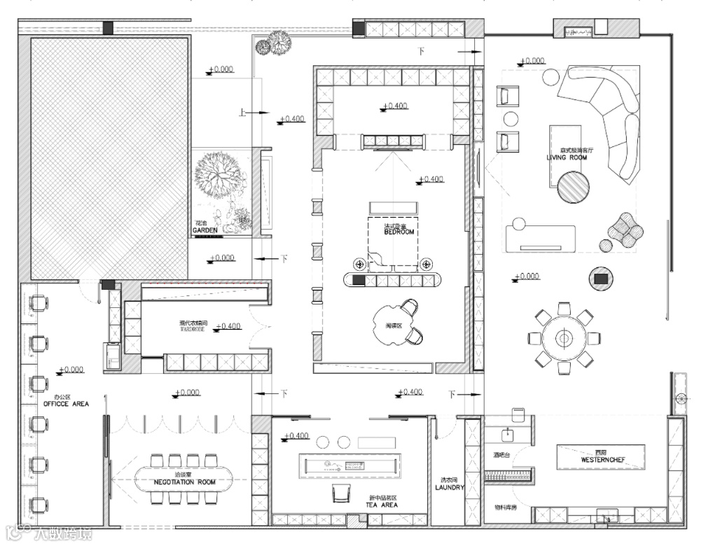
↓平面图
THE DESIGNER
设计师
张自然

己造设计创始人
中国国际室内设计联合会常务理事
澳门国际设计联合会理事
布局设计师
聂静静

产品设计师
张勇

软装设计师







