
这是一套面积为91平米的精装房改造,在不破坏大框架结构与室内原有成品的前提下,以设计进行雕琢,让空间从平凡到煜煜生辉。

▲原始结构图

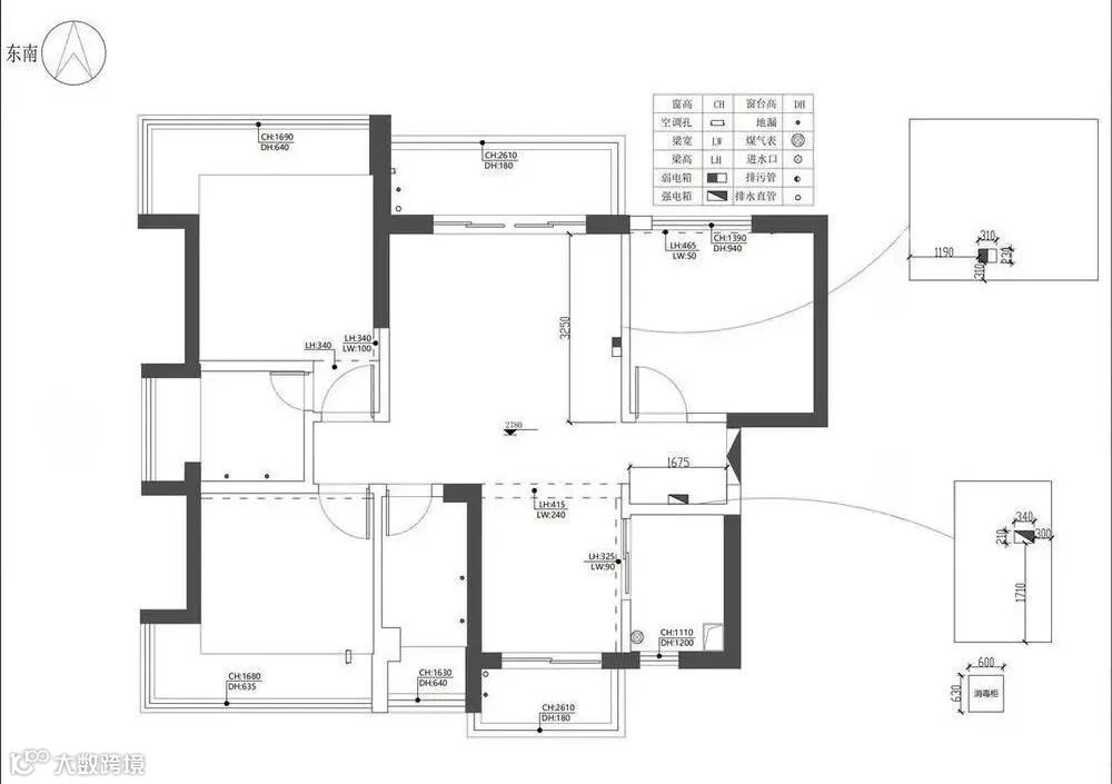
▲平面布置图
| 玄关 |
入户的鞋柜中间及底部留空,回到家灯光会感应开启。走入家的那一刻,就能感受到个性温馨的专属感。
进门第一眼可以看到走道尽头的装饰画,作为端景, 带来了视觉的艺术享受。
电视墙做了一面墙的定制柜,底部留空,使用深色KD板饰面,以及仿岩板的电视柜及柜门,在上下暗藏的灯光映照下,生成亲切的视觉反馈。
设计师在客厅与餐厅天花四周增加了黑色线条点缀,平衡出空间向内生长的气度、向外延伸的审美张力。
透过沙发墙上极窄的黑色装饰窗看书房,如观赏一副画卷,书房内人的活动以一种剪影的方式呈现在画卷里。
一盏灯、一束光、一颗绿植都是那么的相得益彰,木质的墙面与棕橘色的皮质沙发,形成风格上的反差。
一体式电视背景墙,不仅更加立体有层次感,更是使客厅有了更多的隐藏空间,让一些细碎的杂物有了栖身之所。
设计师根据生活需求预留了小电器柜和餐边储物柜,包括日常饮用水都一并进行了考虑,打造高品质就餐空间。
定制的蓝丝绒卡座软包内嵌线性灯,见光而不见灯,灯光温和而不刺眼,丰富了用餐氛围。
书房胡桃色桌面与橘色的单椅,还有玻璃窗外的客厅一景,伴随着视线推移出现的景观传递,空间的转换与整合,创造更多层次感与穿透力。
设计师不忘在备用的书房沙发床顶部预留了可调光的阅读灯,除了正襟危坐的阅读,还有更好的舒服躺。
主卧的床头背景护墙板背后巧妙隐藏了一个储物柜,不但解决了L型飘窗浪费空间的问题。
同时还营造了卧室空间不同的光氛围,提高生活情调。
不可拆除的飘窗也不能空闲,增加了抽屉及梳妆功能,开放格可防止女主人大量化妆品,抽屉台面向上打开秒变梳妆镜。
儿童房考虑到安全性等因素,放弃了飘窗作为榻榻米的方案。
在衣柜部分采用了三角斜面留空设计,悬浮热气球装饰宝宝的私有空间,同时预留了日后的学习书桌。
