项目类别:住宅空间设计
项目名称:莱茵华庭
面积:120
设计师:衰人bb
1.客厅
本方案是围绕现代简约为主题,适合于三口之家居住,简洁和实用是现代简约风格的基本体点。简洁风格不仅注重居室的实用性,而且还体现出了现代社会的精致与个性,符合现代人的生活品位。在总体布局上满足了业主的生活需求,为业主创造了一个温馨,健康的家庭生活环境。
2.小孩房
针对小孩房的局限性将墙面设计成蓝色为主调,满足了孩子对海阔天空的幻想。书架和床遥相呼应,增强视觉的平衡感。

3.厨房

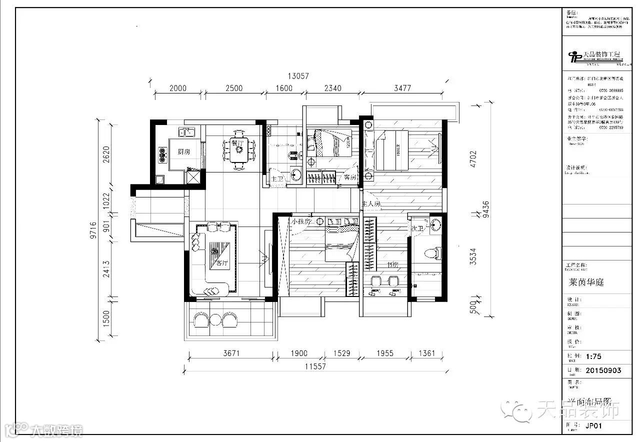
4.平面布置图

天品装饰项目类别:住宅空间设计
项目名称:莱茵华庭
面积:120
设计师:衰人bb
1.客厅
本方案是围绕现代简约为主题,适合于三口之家居住,简洁和实用是现代简约风格的基本体点。简洁风格不仅注重居室的实用性,而且还体现出了现代社会的精致与个性,符合现代人的生活品位。在总体布局上满足了业主的生活需求,为业主创造了一个温馨,健康的家庭生活环境。
2.小孩房
针对小孩房的局限性将墙面设计成蓝色为主调,满足了孩子对海阔天空的幻想。书架和床遥相呼应,增强视觉的平衡感。

3.厨房

4.平面布置图
