
DESIGN
CASE
01
ENTRANCE LOBBY
入户前厅
当纯粹的冷灰色蔓延开来
简美与美式轻奢
自然而然弥漫在公共空间
在这个视觉温度适宜的空间内
生活不疾不徐
一切值得期待
_
02
LIVING ROOM
客厅
_

03
RESTAURANT
餐厅
配色上
餐椅的配色与客厅沙发配色呼应
餐桌背景墙也充盈着轻奢气息
忙碌一天后
家人聚在一起
褪去疲惫
在这里尽情享受美食
感受家的治愈能力
_
04
STUDY
书房
书房功能上当做藏书
与储存空间存在
深灰色背景书柜
搭配轻奢书桌椅
彩色背景挂画与墨绿色墙面
打破空间的稳重
增添一丝摩登气息
_
05
BEDROOM
卧室
低雅舒柔的视感基调
散发着
深沉与不羁
展现着舒适的质感

06
CHILDREN'S ROOM
儿童房
儿童房配色采用豆绿和薄荷绿色调
营造了清新雅致的色彩气氛
墙面采用轻法式弧形设计
和整体风格完美呼应
_
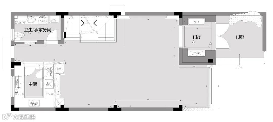
↓一楼平面图
↓二楼平面图
↓三楼平面图
THE DESIGNER
设计师
张亮

安徽树屋设计主案设计师
高级室内设计师
中国建筑学会室内设计分会会员
关注我们 更多精彩
• 微信号|sunbuywood •
• 微信视频号|尚佰高定 •
• 抖音号|尚佰智能家居 •

