
对于居住空间的理解,质感与舒适缺一不可。客厅作为重要的交流和会客空间,在功能和美学上都达到了统一。干净简洁的自然纹理护墙,搭配造型简约配色绅士的家具,家居生活、接人待客更加舒适。


品茗区作为深层次交流空间,以茶会友,茶香韵味,自然纹理作为空间的主背景,不对称式高定多功能柜造型简洁,不过度装饰,随意而自由。
开放式收纳格局提供大量收纳空间的同时将材质造型精细刻画,金属线条勾勒让空间的美好不止于流露出艺术的视觉表象,更在于重塑一种属于当代人的诗意慢生活。
西厨采用的意式俄罗斯榆木提升了整个空间的品质,考究的材料质地与高级的设色比例,升华生活的质感,在喧嚣现代都市中予人温暖而细腻的慰藉。

一个兼具颜值与实用的活动区,当然不能止步于单一的产品展示,视觉体验、理念输出、空间演绎都是设计中不能忽略的重要维度。



线条感十足的床头背景,空间张弛有度,通过格栅和电视背景墙将空间分割,带来耳目一新的私属观景效果,艺术格调的氛围感染而生。
卧室自然舒旷,时尚而经典,开放式衣帽间尽显雅奢,释放出暖意,赋予空间鲜明的活力。休息区和衣帽间,把握住了最恰当的平衡,功能区之间可以相互连接,却又不被打扰。

衣帽间不止是精致女士对理想家的幻想,同样也是精英男士展示品位和魅力的空间。通过材质、色彩的运用将轻奢风打造得淋漓尽致,让时尚、轻奢成为空间的一大亮点。
独立且开放的壁挂系统衣帽空间,多单元的储存空间设计满足了多元的储物的需求。无论是硬朗的线条,还是区域的划分与配色都在层层深化着衣帽间的实用性与艺术性,从结构到细节都透露着高端生活的品味。

办公区的设计以经典简约为主,最终回归于空间最原始的秩序和品牌本身的美学主张。

将设计融于生活
将家居带入精致自在的情境
No. 1
尚佰高定慈溪一号店
━━━
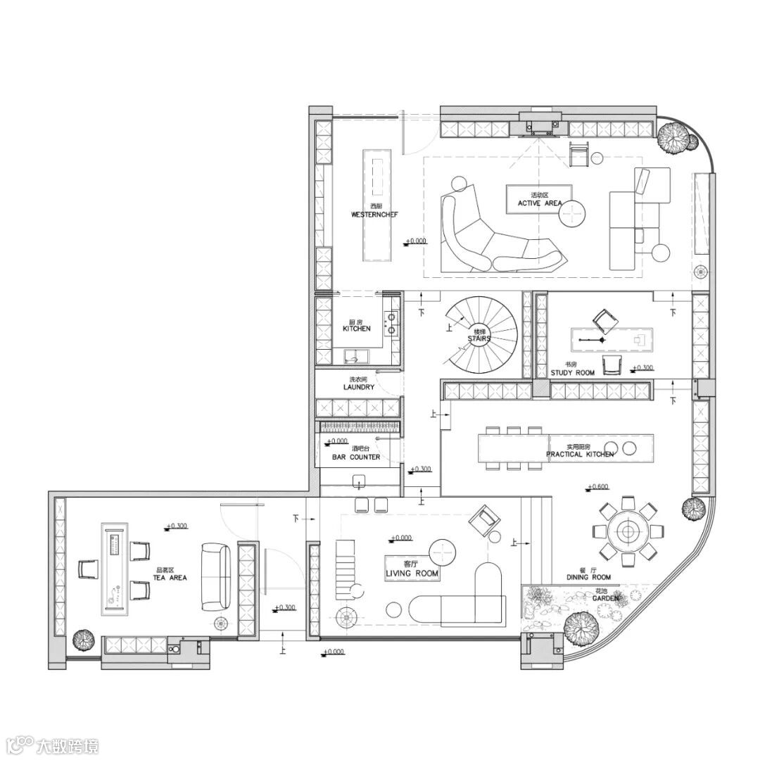
↓1F平面图
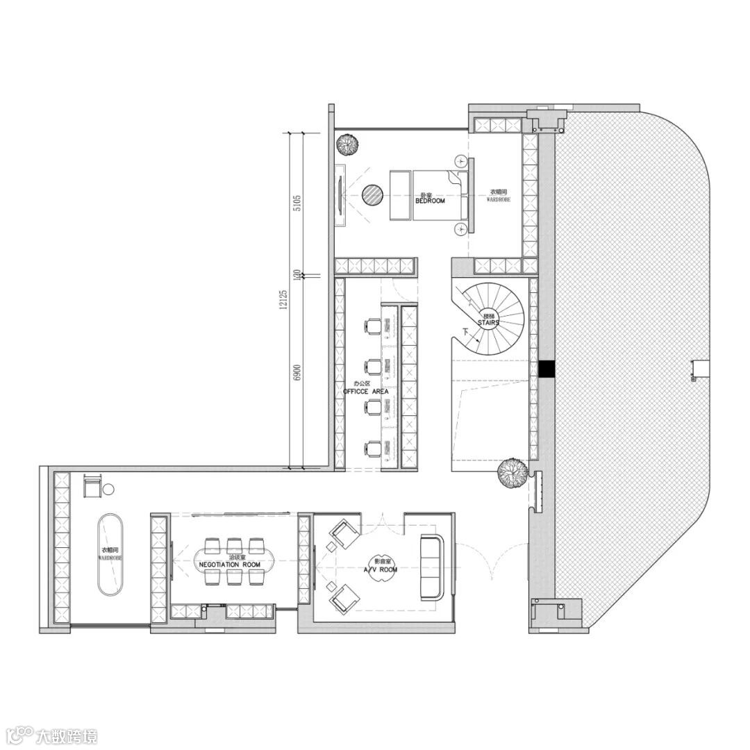
↓2F平面图
THE DESIGNER
设计师
张自然

己造设计创始人
中国国际室内设计联合会常务理事
澳门国际设计联合会理事
布局设计师
龚玉彬

产品设计师
许向东

软装设计师







