

斯卡帕叠级是一种有趣的建筑设计技巧,它不仅限于建筑本身,也可以用于室内空间的设计。
鲜明解构,错落有致,融入其中,启迪对空间想象。独特而富有创意的设计,制造出多层次的空间,对室内空间带来丰富的视觉效果。
温馨提示▷视频请在WiFi环境下进行观看
●
01
living room
客厅
—
客厅注重空间的开放和流动性,采用开放式布局,使不同功能的区域相互连接,营造明亮而宽敞的空间。电视背景墙通过点线面叠级的空间结构营造出极简的节奏感,诠释了纯净而清新的现代风格。


为了让空间更具特色,在沙发背景上采用圆弧拼接设计。这种设计不仅具有很强的立体感,还能为整个空间带来柔和的弧度,让居住者感受到更加舒适、温馨的氛围。还能与其他家具、配饰形成良好的呼应。例如,可以在沙发上放置一些圆润的抱枕,或者在背景墙上挂上一幅圆形的画作,这样不仅可以增强整体的设计感,还能让空间更加和谐、统一。
总之,现代风和混搭美学的结合,为家居设计带来了更多的可能性和创新。如果您想让自己的客厅更具特色和质感,不妨尝试一下这种设计。



●
02
Dining room
餐厅
—
餐厨区域,整面收纳柜的设计,可以有效地增加餐厅的储物空间,将电器嵌入其中,使整个空间更加整体、整洁,解决日常生活中的收纳问题,为餐厅增添一分时尚、简约的美感。


整面收纳柜的设计可以采用多种形式,例如可以设置多层开放式置物架,用来放置装饰品、酒杯等物品;也可以设置一些封闭式的柜子,用来收纳家中的杂物。同时,可以将一些电器嵌入到柜子中,例如微波炉、烤箱等,这样不仅可以方便日常使用,还可以让整个空间更加整洁。



●
03
Bedroom
主卧
—
极简卧室浅色系搭配绝对能满足你的审美。就像清晨的第一缕阳光,它温暖而柔和,给人一种舒适宁静的感觉。带来一种纯净与清爽的氛围,让你仿佛置身于云端,舒适到让人忍不住沉醉其中。



PROJECT
尚佰高定11周年 · 全国优秀设计师作品展
项目名称:桐乡-星都会
项目面积:180m²
项目风格:现代
设计师:曹杰
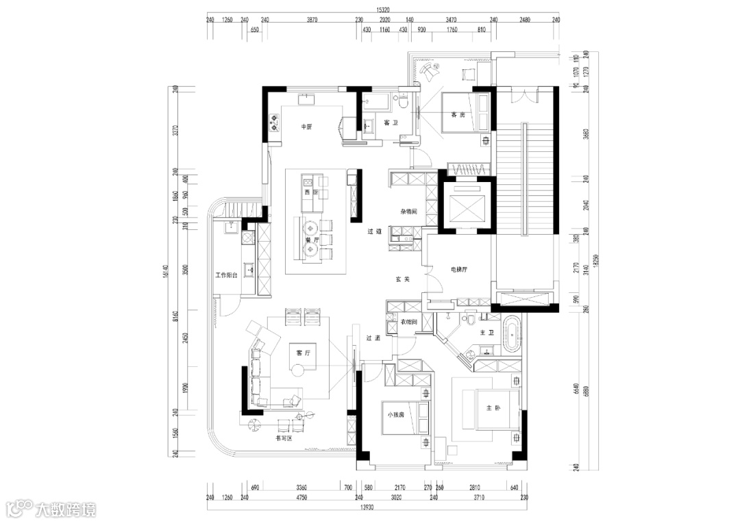
↓平面图
2021嘉兴第四届室内设计精英赛 实景类-住宅 金奖
2022嘉兴第五届室内设计精英赛 方案类-大宅 金奖
浙江设计星2021-2022 12强
2022 40under40嘉兴城市榜
2022 金住奖
2022升华云峰莫干山杯专业组铜奖


