
很多人说刚刚过去的这个国庆节像过年,团圆成主题、家人聚起来、出游频高涨、消费情绪旺盛,加倍“买买买”成为常态。
功能齐全、商品丰富的大型购物中心,成为了很多居民假期消费休闲的首选。然而,逛街是个“体力活”,休息区是一个商业项目必不可少的配套,大部分消费者会有需要且使用率很高。
休息区不仅是购物中心里一个简单配套,里面蕴藏了商业运营中的诸多细节。休息区的设计细节可以直接反映出经营者是站在顾客立场还是以自我为中心,不同的出发点为商场带来的效果也会天壤之别。
本期,派小沃就和大家一起来看看,那些逛街不怕遛断腿 ,号称消费者“加油站”的休息区该如何合理打造。
01
购物中心里的休息区现状
02
那些既吸客又聚客的休息区设计!
一个设计合理,平衡功能性、美学与商业运营效率的休息区,既要综合考虑消费者的感受,又要顾虑开发商的运营成本,其间的门道值得深思。
那么,这样的休息区应该怎样打造?
过道处休息区
购物中心提供的休息区,奢简各异,形式不一,因此不同的场所,让消费者得到的感受也不尽相同。但当消费者切实体验时,整体环境越好,配套越齐全的休息区,越容易赢得消费者的口碑。
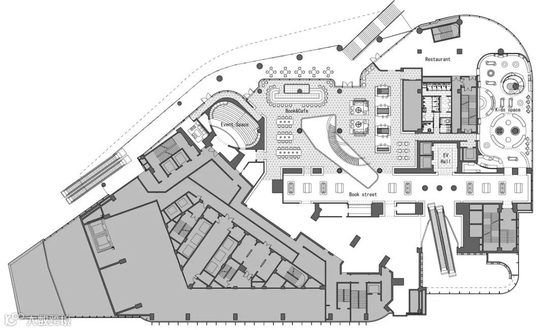
位于深圳湾万象城L3层的“前檐YAN”,定位是阅读+展览+休憩+购物为一体,并以图书串联整个动线,业态方面则有16个偏零售品牌,整个空间调性属精致的日式设计风格。
前檐最大的特点就是开放式布局,与整个购物中心的动线融为一体,书店内及附近有购物中心的扶梯和垂直电梯,休息区与书店阅读区也交互共享。
所有的商业业态布置在图书动线的两侧,并用书架道具进行了一定程度的遮挡。

“前檐”空间的出入口没有任何遮挡,也没有任何传统书店所使用的防盗措施。

出入口之一,通道即购物中心动线

动线交汇处的小阅读区

书架之后的周生生珠宝
作为购物中心的休息空间,这个格调也是无敌。
卫生间区域休息区
公共区域最能体现人文关怀及情感温度的就是母婴休息室。
以日本三宫的 OPA2 购物中心为例,其在设施及私密环境的营造上最大限度地满足了婴儿及父母的需要。
OPA2 购物中心的母婴室位于8层,爸爸和妈妈都可进入,哺乳室仅为妈妈和婴儿开放,在保证全家出行便利的同时保证了使用者对私密空间的要求。
OPA2 购物中心母婴室分三个功能区:休息等候区、奶粉调配区和纸尿裤更换区。休息区和纸尿裤更换区的座椅皆为柔软的皮质座椅,棱角皆被皮质覆盖,以保证安全性,在能接触到热水的奶粉调配区则不设置婴儿可以停留的座椅。
相较于其他区域的休息区,卫生间区域的休息区对卫生、私密性和安全性要求更高,对设施及配套的齐全和舒适性、实用性要求也区别于普通休息区。
对于数目庞大的“遛娃一族”而言,购物中心提供更齐全的生活服务,解决实质问题,对该购物中心的好感度自然会随之上升,从而提升商业价值。
儿童娱乐休息区
如果说吸引客流是第一步,那么休息区就是“留住”客流的重要一步,只有以舒适的休息环境留住消费者才能刺激消费,购物中心相应才有更好的业绩。
亲子休息区域则是购物中心最容易转化为消费性的休息区域,对于带娃家庭来说是必备空间,甚至是低龄亲子家庭首要考虑的因素。
亲子区可以放置图画书、卡通海报等动画元素,设置座椅、饮水点和功能齐全的卫生区域,加配孩子可以独立玩耍的轻型娱乐项目,父母们既可以关注孩子也能够自主休闲娱乐,一举两得。
创意休息区
哈德逊广场购物中心创新性地推出了灵活休憩空间——3DEN,设立完全独立的休闲空间。
集合灵活办公、咖啡轻食、即刻休息、午睡舱甚至是淋浴间等多种放松场景,人们可以通过app随用随预订。
“老公寄存处”是购物中心最有话题的休息区,专门的服务人员,可以提供免费咖啡等饮品。
同时,还有桌球、按摩座椅、古典留声机、宽屏电视机、游戏机等设施,深受男性顾客欢迎。女士们在商场内逛街逛得酣畅淋漓之时,老公们也正在这里玩得不亦乐乎,大家各得其乐。
03
聚客又吸睛的休息区设计
需要哪些要素?
通过观察以上案例,我们可以将购物中心休息区的设计从以下维度考量:
首先,从需求角度出发,将休息区以满足消费者购物需要为基础进行早期规划,考虑客群分层以打造功能不同的休息区。
在进行细节设计时,考虑座椅材质,即座椅的舒适度,周围环境(灯光,餐饮等基础设施)给消费者带来的心理及生理因素的影响。
其次,从美学角度考虑休息区的视觉呈现效果。
与周围环境的和谐、对景观与场景的合理打造等都能衬托购物中心的氛围以满足消费者追求舒适的需求。
再者,从设计原则来说,购物中心的休息区应占总面积的1%-1.4%(不含超市),现在这个数字显然不够用。
购物中心提供的休息区过少,会降低消费者的体验感。但如果提供的休息区过多,对购物中心而言,除了运营及维护成本会随之增高,还会减弱消费者的二次消费。因此,如何平衡购物中心的休息区数量,对项目方而言,需慎重考量。
04
最后
在购物中心品牌、规模、环境、位置都趋于同质化的今天,竞争开始向体验、服务靠近。而打造更加舒适、温馨、便利的休息区,是商业运营中不可或缺的部分。
休息区虽然没有被直接用于商品展示,但休息区的打造能让消费者在消费之余得到充分的放松和休息,不仅仅是提高盈利的方式之一,更能让消费者感受到项目的用心,成为购物中心形象的最佳代言人。
因此,如何为消费者创造一个舒适、方便的购物休息环境,将消费者的“闲适感”提升,用开敞舒适的公共空间,创造使人们任何时间都能享受的氛围,则是购物中心吸引人气的致胜法宝。
end
来源:商业设计周刊/RET睿意德/商智库/筑梦师/ziRetail热点/网络


