△ 杭州同理轩美术馆 ©陶磊
设计单位 陶磊建筑TAOA
项目地点 浙江杭州
建成时间 2025年
建筑面积 1628平方米
本文文字由设计单位提供。
这是一个在未施工完成的社区项目基础上改建而成的社区美术馆,未来的展览内容将以现当代艺术为主。建筑的前身包含地下和地上两个部分,地下是已施工完成的社区地下停车场,地上则是一处独立但尚未动工的570平方米社区公共空间。为满足美术馆的实际需求,需将部分地下停车空间改造为展厅,并与地上待建的独立空间相连。
△ 原始结构和新建建筑 ©TAOA
原本的设计任务为美术馆的室内空间设计,因地上原规划建筑尚未动工,随着方案推进,室内设计逐渐延伸为整体建筑的改建设计——这是一次由内而外的创作:内部空间需求逐渐改变了建筑原有的结构、空间与外立面,使其蜕变为一座全新建筑,也彻底重新定义了这座建筑。
但建筑的基本外形需遵循原有审批的规划要求,即一个被正圆柱体切削的立方体,同时必须顺应已施工完成的地下结构。这些既定条件也成为了新设计的核心切入点,显然这如同一个命题作文。
△ 形体由来与演变 ©TAOA
这栋面积不大的美术馆正前方面对着一条穿城河流,侧边紧邻城市主干道,因此它不仅属于社区,也属于城市的一部分。建筑朝向城市的一面被“掀开”,将原本被包裹完整的空间打破,撕裂的外壳让这座建筑变得既独立又开放。
△ 隔河而望 ©陶磊
△ 建筑近景 ©陶磊
整个正面采用不锈钢板冲孔处理,使室内空间完全开放,一览无余地朝向城市;而从外部看来,建筑仍保持着独立完整的形态。室内透过完整的落地玻璃与冲孔不锈钢板看向城市,一幅巨幅城市画卷经冲孔板过滤后变得模糊而抽象;外界光线经过筛选,柔和地渗入室内。

△ 建筑近景 ©陶磊
被“掀开”的立面不同于普通开窗,它将室内空间更彻底地打开——这不仅是开启面积比例的问题,更是对空间开放性的直接感官表达。二层的立面因掀起角度不同,同时充当了一层掀开式雨棚的拉结结构,雨棚向下倾斜的出挑形态,让人联想起传统的檐下空间。
△ 掀开立面形成的雨棚空间 ©陶磊
透明连续的弧面板形成的波浪形态赋予建筑自身秩序,光线借助不锈钢曲面形成的反射,产生出微妙变化,唤起了建筑体量如雕塑般的柔情感受,使其呈现出优雅的姿态。

不锈钢材料的选择具有时代性,其工艺特征契合当今的加工便利性。材料本身的光泽与冲孔设计带来的光线丰富变化,既契合当代的精神需求,也是为了更好地融入日益快节奏的现代城市。
△ 立面近景 ©陶磊
立面采用弧形钢板,不仅与半圆形的基础体量取得一致性,也借用弧形板自身的张力达到所需强度,省去了通常需在背后设置的龙骨。
△ 冲孔网后若隐若现的楼梯 ©陶磊
这使得室内透过网孔向外眺望时,看不到多余的构件。这不仅在视觉上形成纯净的韵律,也符合内在的建造逻辑,无论从外看向室内还是从室内望向室外,都保持了空间的单纯性。
△ 冲孔板过滤后的朦胧视野 ©陶磊
入口设于半圆形内凹处,这一选择不仅基于建筑的基本形态,更意在借用原始设计中半圆形所塑造的场所向心性,更好地将美术馆与社区联结起来。从半圆一侧将立面掀开一道缝隙,顶部天光倾泻而入,照亮这个三层高的“空间峡谷”,由此完成观众从社区空间进入艺术空间的心境转换。入口如蜿蜒峡谷,是一处柔化的礼仪性空间,这里并不同于大型美术馆的宏大叙事,更强调人身体的具体体验。
△ 入口“峡谷” ©陶磊
自然光从高处的缝隙中渗入,顶部的光线、侧墙的弧线与金属墙面材料的半透明性所带来的感受相互叠加,形成一瞬间超自然的体验,是进入建筑前的精神礼遇。


△ 阳光随着空间洒下 ©陶磊
在建筑体弧形的一角,将地上三个楼层空间打通,挑空并逐层收缩,顶部天光穿越整个楼体,照亮了建筑最深处的角落,化解了此处原本锐角空间的窘迫,将这里塑造为垂直高耸的精神性空间,在建筑最深处将地上三层空间联结起来。
△ 蜿蜒盘旋的楼梯 ©陶磊
楼梯顺着侧墙向上爬升,在这里不仅是功能性交通,更是上下空间连续与转换的重要装置。因消防规范要求而设置的隔断防火墙,使得楼梯成为相对独立的空间。蜿蜒曲折的爬升途中,路径的关键片段反映在了外墙采光窗洞上,透过冲孔金属板隐约可见,在日常交通的过程中,也可以透过外窗体会移步换景的乐趣,同时从城市的视角也可以感受到建筑内部的活力。

△ 贯穿地上地下的楼梯 ©陶磊
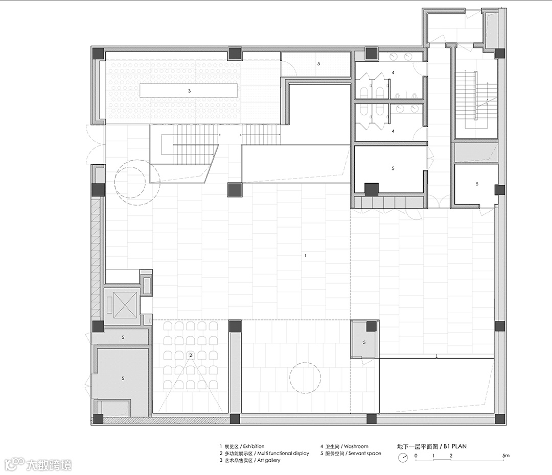
大部分展厅被设置在地下室空间,为使这一纯地下空间获得与地上部分的联系,在靠近外墙的位置拆除了部分原有楼板,室外的自然光得以从这里引入至地下空间。
△ 展厅空间 ©陶磊
交通顺势而为,回旋转折的楼梯由此引入,将这条路径穿越地上与地下,自然光透过空间的转换,将上下楼层的空间联系在一起,地上和地下被整合成了一个连续的整体。在地下空间的另一角,通过拆除部分的楼板将原本地上的景观下沉到地下的室内,为地下展厅带来一片静谧的自然。
△ 阳光随着空间洒下 ©陶磊
对于当代艺术而言,与大众的融合是当下的趋势,也是当代艺术价值的内涵,这更需要美术馆与城市融合,与社区融合。艺术不应只停留在庙堂之上,更应该成为日常生活的一部分。
△ 一层空间 ©陶磊
这一内在的变化,也赋予美术馆建筑双重身份——它不仅是社区的一部分,也是城市的一部分。它应该是亲切而优雅的,并保持着对城市空间的开放,安静地置身于城市一隅。不同于大型美术馆或艺术区美术馆,它作为都市生活的一部分,始终保持向城市空间的延续。
△ 二层三层空间 ©陶磊
为了更符合现代都市的精神需要,建筑保持着精确性和清晰的秩序,也是为了从喧嚣的城市生活中开辟出一片自在自由的精神栖息地。
△ 美术馆夜景 ©陶磊
完整项目信息
项目名称:杭州同理轩美术馆
项目类型:建筑、室内、景观、改造
项目地点:浙江杭州萧山区
建成状态:建成
设计时间:2022—2024
建设时间:2024—2025
用地面积:1180平方米
建筑面积:1628平方米
业主:同理文化传播有限公司
设计单位:陶磊建筑TAOA
主创建筑师:陶磊
设计团队:陶磊、陈真、崔翔、陶冶、孟祥瑞、王淑晨、何晓甜
建筑:陶磊建筑TAOA
幕墙:浙江亚厦装饰
结构:浙江省建筑设计研究院
景观:杭州木杉景观设计
室内:陶磊建筑TAOA
照明:TS倘思照明设计
施工:杭州精亦装饰工程有限公司
材料:不锈钢、上海安美特阳极氧化铝板、迈饰新材料铝拉网、星空灰石材、德利丰岩板、BEEYE彼易极窄门窗
摄影师:陶磊




