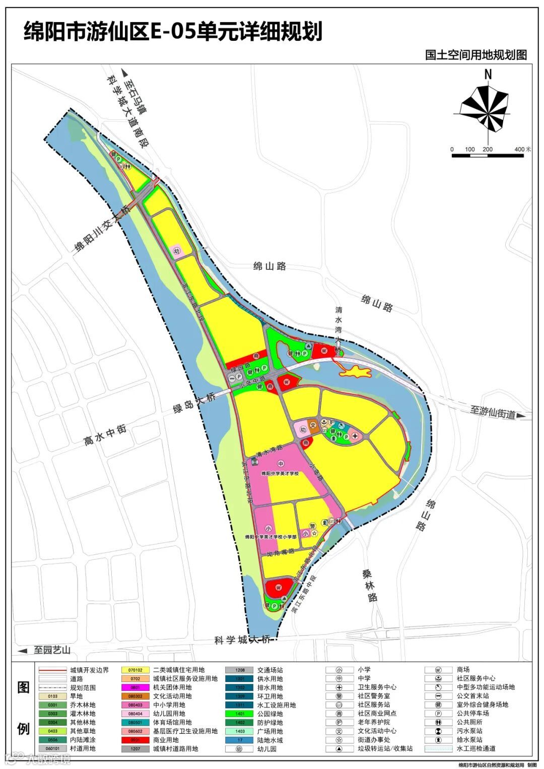
本次规划位于涪江东岸,北至开元电站引水闸,南接东原板块,西抵涪江东岸,东至开元电站现状水渠。涉及《绵阳市国土空间总体规划(2021-2035)》E-05详细规划单元,总用地面积约198.88公顷,其中城镇开发边界范围内用地面积约109.97公顷。

规划内容
规划定位
高质量教育示范区,高品质公园宜居区。
规划规模
规划城市建设用地约109.97公顷,规划人口约1.4万人,服务人口约1.55万人。
功能结构
规划形成“一轴两心、两廊三区”结构布局。
●“一轴”:南北向串联岛内各功能片区的优居生活轴。
●“两心”:湿地绿心、公服核心。
●“两廊”:东部沿开元电站水渠的山水生态绿廊、西部沿涪江滨水绿廊。
●“三区”:北部滨水宜居区、东部滨水宜居区及南部文化教育区。
公共配套设施规划
依据《城市居住区规划设计标准》(GB50180-2018) 、《社区生活圈规划技术指南》(TD/T 1062-2021),规划形成1个十五分钟生活圈, 3个五分钟生活圈, 配置满足居民日常生活所需的健康管理、为老服务、终生教育、文化活动、体育健康、 商业服务、行政管理和其他设施。
道路系统规划
规划形成“两横两纵”的主次干路网,两横:川交大桥、小岛中路,两纵:小岛路、滨江东路北段。依托涪江亲水空间、道路两侧绿化隔离带、巡检通道设置慢行交通网络,串联主要公共绿地公园、居住区。
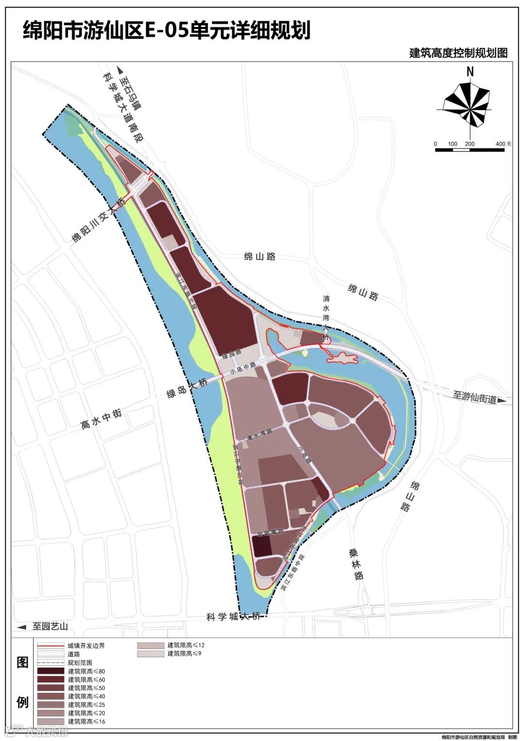
开发强度
规划新建居住用地容积率上限控制在1.5-2.4;商业服务业用地容积率上限控制在2.5;其他各类配套设施(公共服务设施和市政基础设施)容积率上限控制在0.5-1.8。
控制高度
本次规划对新建居住建筑高度控制在54米以下;新建公共建筑 高度控制在36米以下。
本次规划方案公告期限为
2024年11月15日
至2024年12月15日
欢迎广大市民
提出宝贵意见
▼
对此方案有异议者,请将附有姓名、联系方式的书面意见投递到游仙区自然资源局(绵阳市游仙区沈家坝街15号—附1号)。
咨询电话:游仙区自然资源局 0816-2858235
有你家附近吗?
转发 扩散
点击下方卡片
关注绵阳发布微信
更多精彩视频,欢迎关注绵阳发布视频号
内容来源:绵阳自然资源
编辑:熊燕 审核:谭汝江
如需转载,请注明以上内容


