
Slabs Handling
/ 岩板搬运 /
FIND YOUR WAY
安装地址位于高层时,需要用吊机高空运输已装订好的岩板木托。质量良好的木托才能支撑起厚重的岩板重量,并在运输过程中确保安全。
安全到达相应楼层后,再由安装人员搬运至具体位置,等待施工安装。
Construction method
/ 岩板安装施工方法 /
FIND YOUR WAY
①岩板铺贴施工方法
岩板的施工上目前最常用的是胶粘工艺,使用专门的器械工具可以很好的解决岩板板幅大难搬运,安装不稳固等问题。
1、基层处理
2、弹线分格
3、调制岩板胶
4、涂抹岩板胶
5、搬运铺贴
6、铺平压紧
7、找平处理
8、空鼓检查
9、清洁及填缝
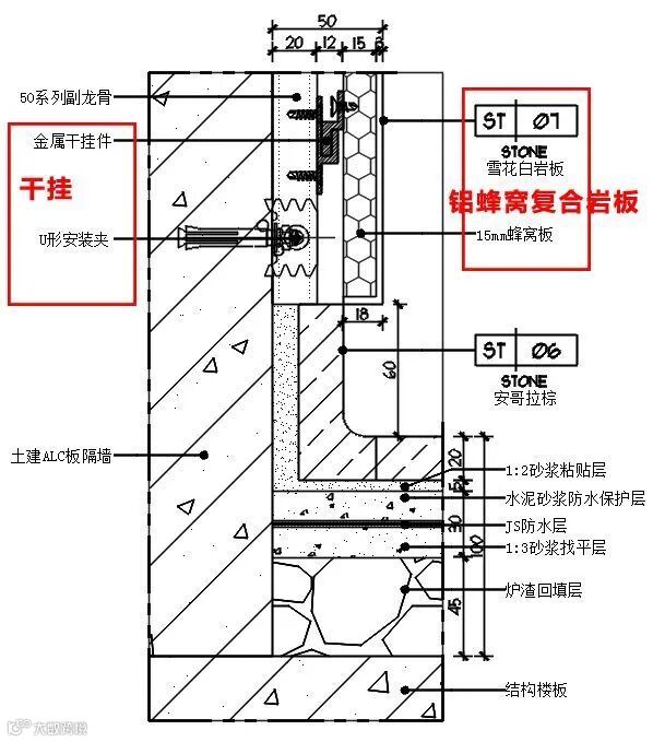
②岩板干挂施工方法
1、铝蜂窝复合岩板干挂
岩板干挂横剖▲
岩板干挂竖剖▲
2、胶粘法+不锈钢角片固定
与地面安装方法相同,可加粘不锈钢角片,使安装更加安全,两块角片间距不得超过 600mm。
钻孔
固定不锈钢角片
Protection and acceptance
/ 保护与验收 /
施工完成后,岩板施工方负责完成面、角、边等保护措施,客户根据图纸及现场实际完成面,进行验收。
现场验收合格后,岩板施工方即刻撤场,完成此项目。
FIND YOUR WAY
保护措施展示
声 明:文章内容转载自陶瓷人在路上,仅作分享,不代表本号立场,如有侵权,请联系小编删除,谢谢!
推荐阅读

